Prodej rodinného domu, Praha - Kolovraty, Lolkova, 159 m2

Lolkova, Praha, Kolovraty

Rezervováno
20 990 000 Kč /za nemovitost HYPOTÉKA od 93 813 Kč /za měsíc

(včetně provize realitní kanceláře)

Prémioví partneři v Praze 10

Stěhovací služby

Výkup a prodej starého nábytku

Informace k domu

Exklusivně nabízíme k prodeji velmi pěkný rodinný dům v ulici Lolkova v Praze-Kolovratech.
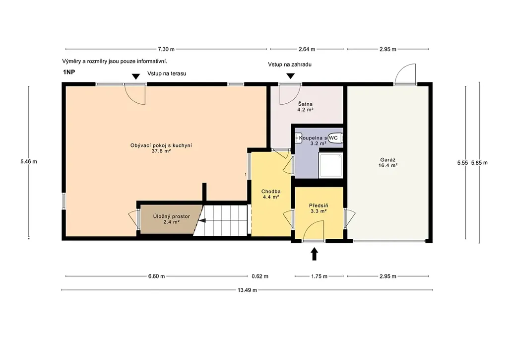
Dům je dispozičně řešen jako 4KK s garáží, technickou místností a dvěma terasami o užitné ploše 159m2, přičemž velikost teras činí 31m2. Dům se nachází na pozemku 751m2 a byl kolaudován v roce 2006, je ve velmi dobrém stavu s pěknou se zahradou zaručující naprosté soukromí. Velkou výhodou je rovněž možnost rozšíření domu v 1 n.p, neb to umožňuje ÚP a stávající majitel si v minulosti nechal zpracovat technickou studii k této možnosti. Dům je napojen na veškeré IS, vytápění je zajištěno plynovým kotlem s radiátory. Dům je v zachovalém stavu a doporučuji osobní prohlídku. Kolovraty jsou moderní pražská městská čtvrť, jež má kompletní občanskou vybavenost a to včetně základní a mateřské školy. Kolovraty mají rovněž vlakové spojení do centra města(5. minut pěšky od domu) a velmi dobré napojení na dálnici D1 a v budoucnu i na městský okruh, který je již v procesu stavby. Kolovraty, díky své poloze na jihovýchodě metropole mají ideální polohu pro každodenní spojení s centrem města, avšak nedaleko přírody s množstvím zajímavých přírodních lokalit.

Parametry domu

Stav
Rezervováno
Cena
20 990 000 Kč /za nemovitost Spočítat hypotéku
Poznámka k ceně
včetně provize realitní kanceláře
Aktualizováno
18. 4. 2026
Adresa
Lolkova, Praha, Kolovraty
Stavba
Smíšená
Stav objektu
Velmi dobrý
Užitná plocha
159 m2
Plocha pozemku
751 m2
Elektřina
230V
Plyn
Plynovod
Odpad
Veřejná kanalizace
Komunikace
Asfaltová
Voda
Vodovod
Garáž

Kontaktovat makléře

Realitní kancelář

PFP Real, s.r.o.

Opletalova 1015/55, Praha, Nové Město

Chystáte se prodat nemovitost?
Pomůžeme Vám!

Máte zájem o tento dům?

Tímto, v souladu s nařízením Evropského parlamentu a Rady (EU) 2016/679, v platném znění, prohlašuji, že mi je alespoň 16 let a uděluji tak svůj souhlas se zpracováním zadaných údajů (jméno, telefon, e-mail, ip adresa) společnosti B3 Technology, s.r.o., IČ: 07330600, se sídlem Novostavby 126/23, 435 11 Lom (správce dat), za účelem předání dotazu z tohoto formuláře Vámi vybranému inzerentovi a zpětného kontaktování mé osoby. Osobní údaje bude správce zpracovávat manuálně i automaticky přímo prostřednictvím svých zaměstnanců. Informace předané tímto formulářem budou uloženy v databázi správce maximálně po dobu 10 let. Odvolání souhlasu s uložením a zpracováním poskytnutých dat lze e-mailem na info@videobydleni.cz. V případě podezření na neoprávněné použití Vámi poskytnutých údajů máte právo předat podnět k šetření Úřadu pro ochranu osobních údajů. Více informací
Chystáte se prodat nemovitost?
Pomůžeme Vám!

Inzerát si prohlédlo 17 lidí

Prodejce

Pavel Foukal

Pavel Foukal

Hlídací pes

Chcete dostávat emailem podobné nabídky prodeje rodinných domů v Praze 10?

Podobné nemovitosti


Nevyhovuje Vám typ domu? Podívejte se na jiné kategorie domů.


Vybrané články z našeho blogu