Pronájem bytu 1+kk, Praha - Stodůlky, Holýšovská, 12052 m2

Holýšovská, Praha 5

16 000 Kč /za měsíc Získejte výhodnou HYPOTÉKU
Prémioví partneři v Praze 5

Stěhovací služby

Výkup a prodej starého nábytku

Informace k bytu

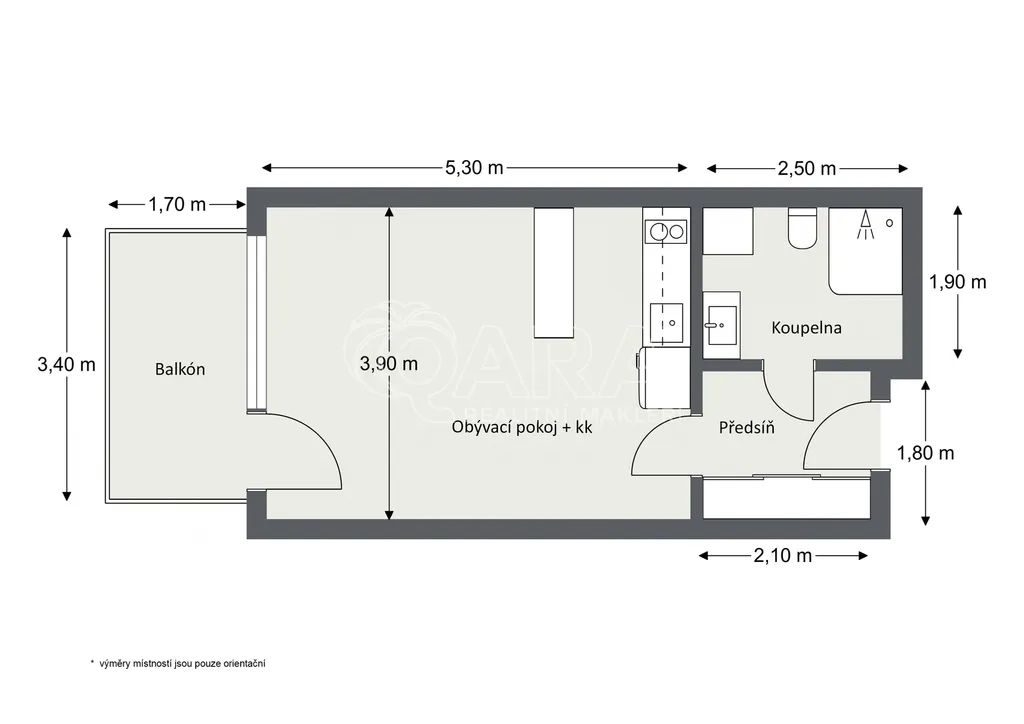
Nabízím k pronájmu světlý byt 1+kk s balkonem. Podlahová plocha bytu je 30 m2 a další rozšíření životního prostoru Vám nabízí balkon o rozloze 6m2.
Byt se nachází v 9. patře moderního domu ve Stodůlkách. V domě máte k dispozici 2 výtahy. Součástí vybavení bytu je kuchyňská linka, lednice, pračka a velká šatní skříň.

Byt má vlastní vodoměr i elektroměr, výši spotřeby si tedy určujete sami. Poplatky za energie si majitelé ponechají přepsané na sebe, platit budete zálohové platby a vyúčtování proběhne jednou ročně. K bytu patří také sklepní komora vhodná k uložení kola nebo lyží.
Majitelé preferují klidné nájemníky – jednoznačně nekuřáky. Zvířecí mazlíčci zde nejsou vítáni. Pro majitele hledám nájemníky, kteří budou schopni dodržovat zásady klidného sousedského soužití. Stejně tak majitelé očekávají ohleduplnost vůči pronajímanému zařízení bytu.

Měsíční nájemné je ve výši 16 000 Kč + poplatky včetně zálohy za elektřinu ve výši 4000 Kč. Byt je připravený k okamžitému nastěhování.
Do 5 minut chůze najdete kompletní občanskou vybavenost – obchody, fitness, kavárny, lékárnu. To vše je u stanice metra Luka. Dobré dopravní spojení s centrem vám zajišťují i nedaleké autobusové zastávky.

Počáteční platba se skládá z vratné kauce 16 000 Kč + nájemné 16 000 Kč + poplatky 4000 Kč + provize zprostředkovatele 16 000 Kč.
Pro jakékoli další dotazy mi kdykoli zavolejte.

Parametry bytu

Cena
16 000 Kč /za měsíc
Aktualizováno
13. 1. 2026
Adresa
Holýšovská, Praha 5
ID
18448
Stavba
Smíšená
Stav objektu
Velmi dobrý
Patro
10. z 13
Vybaveno
Částečně
Lokalita objektu
Sídliště
Vlastnictví
Osobní
Užitná plocha
12052 m2
Zastavěná plocha
1504 m2
Podlahová plocha
12052 m2
Třída energetické náročnosti
G - Mimořádně nehospodárná
Elektřina
230V
Plyn
Plynovod
Odpad
Veřejná kanalizace
Komunikace
Asfaltová
Doprava
Dálnice, Silnice, MHD, Autobus
Voda
Vodovod
Balkon
Sklep
Výtah

Kontaktovat makléře

Máte zájem o tento byt?

Tímto, v souladu s nařízením Evropského parlamentu a Rady (EU) 2016/679, v platném znění, prohlašuji, že mi je alespoň 16 let a uděluji tak svůj souhlas se zpracováním zadaných údajů (jméno, telefon, e-mail, ip adresa) společnosti B3 Technology, s.r.o., IČ: 07330600, se sídlem Novostavby 126/23, 435 11 Lom (správce dat), za účelem předání dotazu z tohoto formuláře Vámi vybranému inzerentovi a zpětného kontaktování mé osoby. Osobní údaje bude správce zpracovávat manuálně i automaticky přímo prostřednictvím svých zaměstnanců. Informace předané tímto formulářem budou uloženy v databázi správce maximálně po dobu 10 let. Odvolání souhlasu s uložením a zpracováním poskytnutých dat lze e-mailem na info@videobydleni.cz. V případě podezření na neoprávněné použití Vámi poskytnutých údajů máte právo předat podnět k šetření Úřadu pro ochranu osobních údajů. Více informací
Chystáte se prodat nemovitost?
Pomůžeme Vám!

Inzerát si prohlédlo 0 lidí

Prodejce

Mgr. Romana Trešlová

Mgr. Romana Trešlová

Hlídací pes

Chcete dostávat emailem podobné nabídky pronájmu bytů 1+kk v Praze 5?

Podobné nemovitosti


Nevyhovuje Vám typ bytu? Podívejte se na jiné kategorie bytů.


Vybrané články z našeho blogu