Prodej bytu 4+kk, Brno, Hvozdecká, 75 m2

Hvozdecká, Brno, Žebětín

11 750 000 Kč /za nemovitost HYPOTÉKA od 52 515 Kč /za měsíc

(včetně provize, včetně právního servisu)

Prémioví partneři v Brně

Informace k bytu

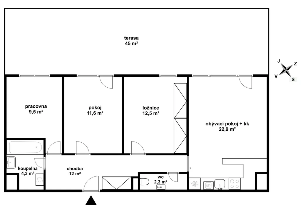
Nabízíme Vám ke koupi výjimečnou jednotku o velikosti 4+kk světlý slunný byt v osobním vlastnictví o výměře 75 m2 orientovaný na jihozápad s terasou 45 m2 a sklepem 4.5 m2 (komorou) umístěný na stejném patře jako je byt s možností přikoupení až 3 parkovacích míst (jedno přímo v domě - na videu bytový dům vlevo a dvě ve vedlejším domě - na videu bytový dům vpravo) nacházející se v přízemí moderního cihlového domu na adrese Brno, Žebětín, ulice Hvozdecká (Kamechy) - kolaudováno v r. 2012, bezbariérový vstup do domu na čipy, kamerový systém, čistý a udržovaný dům s pravidelným řádným týdenním úklidem, druhé nadzemní podlaží z pohledu od terasy - vyšší pocit soukromí a bezpečí, výhled do vnitrobloku, trávníky se zavlažováním, okrasné keře, dálkové ovládání garážových sekčních vrat.

Dispozice (přibližné výměry):

vstupní chodba 12.0, obývací pokoj 22.9 s jídelnou a kuchyňským koutem s výstupem na terasu 45.0 s markýzou, ložnice 12.5, pokoj 11.6 také s výstupem na terasu, pracovna 9.5, toaleta 2.3 se skříní a umyvadlem, koupelna 4.3 s umyvadlem, vanou se zástěnou (sprchový kout) a místem na pračku, sklep (komora) 4.5 na chodbě před bytem

Velmi vkusně řešený pro standardní rodinu plně vyhovující byt umístěný v pěkné lokalitě na dosah přírody a Brněnské přehrady. Plné zázemí - MHD, obchody, lékař, školka, škola, dětská hřiště, multifunkční sportoviště, cyklostezky. Uvolnění dohodou.

Neváhejte a o termín Vaší prohlídky kontaktujte makléře ještě dnes.

Parametry bytu

Cena
11 750 000 Kč /za nemovitost Spočítat hypotéku
Poznámka k ceně
včetně provize, včetně právního servisu
Náklady na bydlení
6.950 Kč
Aktualizováno
6. 3. 2026
Adresa
Hvozdecká, Brno, Žebětín
ID
00250
Stavba
Cihlová
Stav objektu
Velmi dobrý
Patro
2.
Vybaveno
Částečně
Druh objektu
V bloku
Lokalita objektu
Klidná část obce
Vlastnictví
Osobní
Užitná plocha
75 m2
Podlahová plocha
124 m2
Třída energetické náročnosti
C - Úsporná
Ukazatel energetické náročnosti
100 kWh/m2 za rok
Elektřina
230V
Plyn
Plynovod
Odpad
Veřejná kanalizace
Topení
Ústřední dálkové
Komunikace
Asfaltová
Telekomunikace
Internet, Kabelová televize
Doprava
Dálnice, Silnice, MHD
Voda
Vodovod
Sklep
Terasa
Výtah
Bezbarierový přístup
Parkování

Kontaktovat makléře

Máte zájem o tento byt?

Tímto, v souladu s nařízením Evropského parlamentu a Rady (EU) 2016/679, v platném znění, prohlašuji, že mi je alespoň 16 let a uděluji tak svůj souhlas se zpracováním zadaných údajů (jméno, telefon, e-mail, ip adresa) společnosti B3 Technology, s.r.o., IČ: 07330600, se sídlem Novostavby 126/23, 435 11 Lom (správce dat), za účelem předání dotazu z tohoto formuláře Vámi vybranému inzerentovi a zpětného kontaktování mé osoby. Osobní údaje bude správce zpracovávat manuálně i automaticky přímo prostřednictvím svých zaměstnanců. Informace předané tímto formulářem budou uloženy v databázi správce maximálně po dobu 10 let. Odvolání souhlasu s uložením a zpracováním poskytnutých dat lze e-mailem na info@videobydleni.cz. V případě podezření na neoprávněné použití Vámi poskytnutých údajů máte právo předat podnět k šetření Úřadu pro ochranu osobních údajů. Více informací
Chystáte se prodat nemovitost?
Pomůžeme Vám!

Inzerát si prohlédlo 7 lidí

Prodejce

Bc. Radim Ouředník

Bc. Radim Ouředník

Hlídací pes

Chcete dostávat emailem podobné nabídky prodeje bytů 4+kk v Brně?

Podobné nemovitosti


Nevyhovuje Vám typ bytu? Podívejte se na jiné kategorie bytů.


Vybrané články z našeho blogu