Pronájem bytu 4+kk, Praha - Nusle, Mojmírova, 205 m2

Mojmírova, Praha, Nusle

44 800 Kč /za měsíc Získejte výhodnou HYPOTÉKU
Prémioví partneři v Praze 4

Stěhovací služby

Výkup a prodej starého nábytku

Informace k bytu

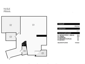
V exkluzivním zastoupení si Vám dovolujeme nabídnout velmi prostorný a moderní byt 4+kk o ploše 205,1 m2 se dvěma balkony, třemi koupelnami a krásným výhledem.

Rádi bychom Vám představili exkluzivní mezonetový byt k pronájmu, který se nachází v klidné a málo frekventované ulici v příjemné rezidenční části Prahy. Díky své poloze nabízí ideální spojení klidného bydlení a snadné dostupnosti centra města – v blízkosti je vlaková stanice, MHD i autobusové spojení.

Prostorný dvoupodlažní mezonet o dispozici 4+kk a podlahové ploše cca 205 m² je situován v 5. (posledním) patře cihlového domu, který je vybaven výtahem. Jedná se o jednotku typu penthouse, která zaujme svým jedinečným charakterem a nádhernými výhledy.

Byt disponuje jak prostornou terasou, tak balkonem, které poskytují příjemné místo k relaxaci a nabízejí pěkný výhled do okolí. K bytu navíc patří sklepní prostor, jenž zajišťuje dostatek úložného místa pro Vaše věci.

Za zmínku stojí také tři koupelny – dvě plnohodnotné a jedna menší, pracovně-technická. Tento nadstandard výrazně zvyšuje komfort bydlení a ocení jej zejména početnější rodina nebo náročnější nájemníci.

Velkou výhodou této nabídky je vstřícnost vůči chovu domácích mazlíčků. Majitel nemá námitky proti žádným zvířatům, takže bez obav si nový domov mohou užít i Vaši čtyřnozí přátelé. Velkou výhodou je pracovně-technická koupelna která je kousek od vstupu do bytu, a lze v ní domácího mazlíčka po procházce umýt, nebo mu i jen otřít tlapky.

Nájemné činí 44 800 Kč měsíčně. Poplatky za veškeré služby spojené s užíváním bytu (vodné, stočné, odvoz odpadu, úklid a osvětlení společných prostor, správa domu a.t.d.) jsou ve výši 4 900 Kč měsíčně. Elektřina a plyn budou převedeny na nájemce a platí se dle skutečné spotřeby (cca 1 800 Kč měsíčně). Společně s prvním nájmem se hradí jistina a provize obě ve výši jednoho nájmu (k provizi DPH v zákonné výši).

Pro více informací nebo sjednání prohlídky nás prosím kontaktujte, můžete volat i o víkendu. Těšíme se na Vás!

Parametry bytu

Cena
44 800 Kč /za měsíc
Aktualizováno
13. 1. 2026
Adresa
Mojmírova, Praha, Nusle
Stavba
Cihlová
Stav objektu
Velmi dobrý
Patro
5. z 5
Vybaveno
Částečně
Lokalita objektu
Klidná část obce
Vlastnictví
Osobní
Užitná plocha
205 m2
Elektřina
230V
Plyn
Plynovod
Odpad
Veřejná kanalizace
Komunikace
Dlážděná
Doprava
Vlak, MHD, Autobus
Voda
Vodovod
Balkon
Sklep
Výtah

Kontaktovat makléře

Máte zájem o tento byt?

Tímto, v souladu s nařízením Evropského parlamentu a Rady (EU) 2016/679, v platném znění, prohlašuji, že mi je alespoň 16 let a uděluji tak svůj souhlas se zpracováním zadaných údajů (jméno, telefon, e-mail, ip adresa) společnosti B3 Technology, s.r.o., IČ: 07330600, se sídlem Novostavby 126/23, 435 11 Lom (správce dat), za účelem předání dotazu z tohoto formuláře Vámi vybranému inzerentovi a zpětného kontaktování mé osoby. Osobní údaje bude správce zpracovávat manuálně i automaticky přímo prostřednictvím svých zaměstnanců. Informace předané tímto formulářem budou uloženy v databázi správce maximálně po dobu 10 let. Odvolání souhlasu s uložením a zpracováním poskytnutých dat lze e-mailem na info@videobydleni.cz. V případě podezření na neoprávněné použití Vámi poskytnutých údajů máte právo předat podnět k šetření Úřadu pro ochranu osobních údajů. Více informací
Chystáte se prodat nemovitost?
Pomůžeme Vám!

Inzerát si prohlédlo 0 lidí

Prodejce

Mgr. Richard Tabach

Mgr. Richard Tabach

Hlídací pes

Chcete dostávat emailem podobné nabídky pronájmu bytů 4+kk v Praze 4?

Podobné nemovitosti


Nevyhovuje Vám typ bytu? Podívejte se na jiné kategorie bytů.


Vybrané články z našeho blogu