Pronájem skladu, Ostrov, 214 m2 (ID: 4153221)

Ostrov, Dolní Žďár

Rezervováno
26 750 Kč /za měsíc Získejte výhodnou HYPOTÉKU

(Záloha na služby a poplatky spojené s užíváním prostoru, dle typu nájemníka, paušální servisní poplatek ve výši 10 Kč/m² pronajímané plochy.)

Prémioví partneři v Ostrově

Informace k nemovitosti

Dovolujeme si Vám nabídnout k pronájmu komerční prostor s účelem využití jako sklad v klidné části obce Ostrov. Objekt je vybudován z cihlové konstrukce a nachází se v průmyslové zástavbě. Nájemníkům poskytuje velmi dobrý stav a je ideální volbou pro firmy hledající efektivní a praktické skladovací řešení.

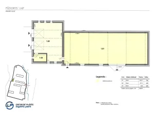
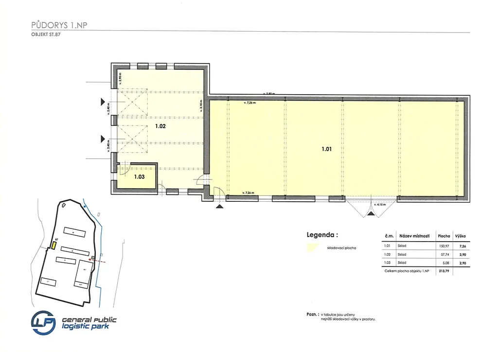
Tento přízemní sklad nabízí užitnou plochu o velikosti 214 m² s bezbariérovým přístupem, což usnadňuje manipulaci s materiály a zbožím jak na podnikatelské, tak každodenní úrovni. Prostor je částečně vybaven, což umožňuje flexibilitu při zařizování a organizaci skladu podle individuálních potřeb nájemce. Díky bezproblémovému přístupu k parkování a výhodné dopravní dostupnosti, která zahrnuje dálnici, silnice, MHD a autobus, je toto místo ideálně situováno pro snadný logistický provoz.

Areál byl zrekonstruovaný v roce 2024, což zajišťuje, že prostor odpovídá moderním standardům a požadavkům kladeným na skladovací prostory. Připojení k internetu a detailnější informace o vytápění a ohřevu vody jsou k dispozici na vyžádání. Cena pronájmu je stanovena na 26 750 Kč měsíčně s paušálním servisním poplatkem 10 Kč/m² pronajímané plochy.

Pokud Vás tento sklad zaujal, neváhejte nám napsat nebo zavolat a rádi Vám vše ukážeme osobně. Prohlídky jsou možné po předchozí domluvě. Pro více informací o této nemovitosti nebo sjednání prohlídky nás prosím kontaktujte nebo vyplňte níže uvedený formulář, rádi Vám pomůžeme.

Parametry nemovitosti

Stav
Rezervováno
Cena
26 750 Kč /za měsíc
Poznámka k ceně
Záloha na služby a poplatky spojené s užíváním prostoru, dle typu nájemníka, paušální servisní poplatek ve výši 10 Kč/m² pronajímané plochy.
Aktualizováno
14. 1. 2026
Adresa
Ostrov, Dolní Žďár
Stavba
Cihlová
Stav objektu
Velmi dobrý
Vybaveno
Částečně
Lokalita objektu
Klidná část obce
Užitná plocha
214 m2
Elektřina
230V
Plyn
Plynovod
Odpad
ČOV pro celý objekt
Komunikace
Dlážděná
Telekomunikace
Internet, Kabelové rozvody
Doprava
Dálnice, Silnice, MHD, Autobus
Voda
Vodovod
Topné těleso
Radiátory
Zdroj topení
Plynový kondenzační kotel
Zdroj teplé vody
Plynový kondenzační kotel
Výtah
Bezbarierový přístup
Parkování

Kontaktovat makléře

Realitní kancelář

Logo General Public, a.s.

General Public, a.s.

Hybešova 167/18, Karlovy Vary, Rybáře

Chystáte se prodat nemovitost?
Pomůžeme Vám!

Máte zájem o tuto nemovistost?

Tímto, v souladu s nařízením Evropského parlamentu a Rady (EU) 2016/679, v platném znění, prohlašuji, že mi je alespoň 16 let a uděluji tak svůj souhlas se zpracováním zadaných údajů (jméno, telefon, e-mail, ip adresa) společnosti B3 Technology, s.r.o., IČ: 07330600, se sídlem Novostavby 126/23, 435 11 Lom (správce dat), za účelem předání dotazu z tohoto formuláře Vámi vybranému inzerentovi a zpětného kontaktování mé osoby. Osobní údaje bude správce zpracovávat manuálně i automaticky přímo prostřednictvím svých zaměstnanců. Informace předané tímto formulářem budou uloženy v databázi správce maximálně po dobu 10 let. Odvolání souhlasu s uložením a zpracováním poskytnutých dat lze e-mailem na info@videobydleni.cz. V případě podezření na neoprávněné použití Vámi poskytnutých údajů máte právo předat podnět k šetření Úřadu pro ochranu osobních údajů. Více informací
Chystáte se prodat nemovitost?
Pomůžeme Vám!

Inzerát si prohlédlo 0 lidí

Prodejce

Jana Kerumová

Jana Kerumová

Hlídací pes

Chcete dostávat emailem podobné nabídky pronájmu skladů v Ostrově (okr. Karlovy Vary)?

Podobné nemovitosti


Nevyhovuje Vám typ nemovitosti? Podívejte se na jiné kategorie komerčních.


Vybrané články z našeho blogu