Prodej bytu 2+kk, Praha - Břevnov, Pod Drinopolem, 45 m2 (ID: 4155231)

Pod Drinopolem, Praha, Břevnov

9 538 000 Kč /za nemovitost HYPOTÉKA od 42 629 Kč /za měsíc
Prémioví partneři v Praze 6

Stěhovací služby

Výkup a prodej starého nábytku

Informace k bytu

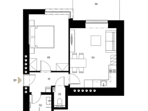
Nabízený byt č. 11 o dispozici 2+kk a celkové ploše 58 m² se nachází v pečlivě zrekonstruovaném činžovním domě, v 1. nadzemním podlaží.
Součástí bytu je terasa o výměře 9,8 m² a sklepní kóje o velikosti 2,8 m².
Byt je dokončen do standardu „fit out“, tedy k nastěhování – včetně finálních povrchů, sanitárního vybavení a přípravy pro instalaci kuchyňské linky. Nechybí dřevěné podlahy, nová okna a moderní koupelna.
Celý dům prošel citlivou rekonstrukcí a rezidenti mohou nově využívat praktické společné prostory jako jsou fitness, sauna, kolárna, kočárkárna nebo klidný vnitroblok určený k odpočinku.
Lokalita nabízí příjemné rezidenční prostředí s kompletní občanskou vybaveností v okolí. V docházkové vzdálenosti jsou kavárny, restaurace, obchody, školy, zdravotnická zařízení i zastávky MHD. Na dosah je také městská zeleň a parky, které vybízejí k odpočinku či sportu.

Parametry bytu

Cena
9 538 000 Kč /za nemovitost Spočítat hypotéku
Aktualizováno
16. 1. 2026
Adresa
Pod Drinopolem, Praha, Břevnov
ID
DRI11
Stavba
Cihlová
Stav objektu
Velmi dobrý
Patro
2. z 7
Lokalita objektu
Centrum obce
Vlastnictví
Osobní
Užitná plocha
45 m2
Zastavěná plocha
58 m2
Podlahová plocha
45 m2
Třída energetické náročnosti
G - Mimořádně nehospodárná
Doprava
Vlak, Silnice, MHD
Sklep
Terasa
Výtah

Kontaktovat makléře

Realitní kancelář

Logo PSN s.r.o.

PSN s.r.o.

Seifertova 823/9, Praha, Žižkov

Chystáte se prodat nemovitost?
Pomůžeme Vám!

Máte zájem o tento byt?

Tímto, v souladu s nařízením Evropského parlamentu a Rady (EU) 2016/679, v platném znění, prohlašuji, že mi je alespoň 16 let a uděluji tak svůj souhlas se zpracováním zadaných údajů (jméno, telefon, e-mail, ip adresa) společnosti B3 Technology, s.r.o., IČ: 07330600, se sídlem Novostavby 126/23, 435 11 Lom (správce dat), za účelem předání dotazu z tohoto formuláře Vámi vybranému inzerentovi a zpětného kontaktování mé osoby. Osobní údaje bude správce zpracovávat manuálně i automaticky přímo prostřednictvím svých zaměstnanců. Informace předané tímto formulářem budou uloženy v databázi správce maximálně po dobu 10 let. Odvolání souhlasu s uložením a zpracováním poskytnutých dat lze e-mailem na info@videobydleni.cz. V případě podezření na neoprávněné použití Vámi poskytnutých údajů máte právo předat podnět k šetření Úřadu pro ochranu osobních údajů. Více informací
Chystáte se prodat nemovitost?
Pomůžeme Vám!

Inzerát si prohlédlo 0 lidí

Prodejce

Simon Lukavský

Simon Lukavský

Hlídací pes

Chcete dostávat emailem podobné nabídky prodeje bytů 2+kk v Praze 6?

Podobné nemovitosti


Nevyhovuje Vám typ bytu? Podívejte se na jiné kategorie bytů.


Vybrané články z našeho blogu