Pronájem bytu 3+kk, Benešov, Ulrichova, 61 m2

Ulrichova, Benešov

22 500 Kč /za měsíc Získejte výhodnou HYPOTÉKU

(+ poplatky za služby)

Prémioví partneři v Benešově

Informace k bytu

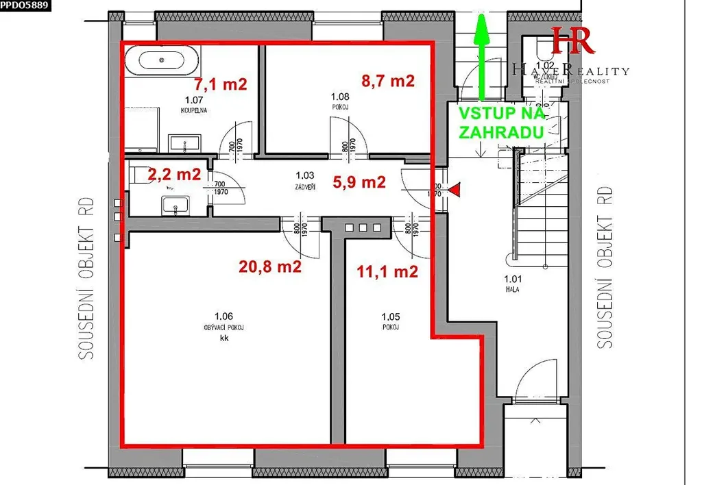
Nabízíme k pronájmu velmi pěkný, zcela nový byt s dispozicí 3+kk, se zahradou a sklepem.
Podlahová plocha bytu je 61 m2, sklepa 7 m2, zahrada má výměru 74 m2.
Byt je umístěn v 1. nadzemním podlaží domu (v tomto podlaží je pouze jeden byt), v ulici Ulrichova. Byt je zcela nový, kolaudovaný v letošním roce. Při jeho výstavbě byly použity výhradně moderní a kvalitní materiály. Dům je cihlový, se zateplenou fasádou (polystyren tl. 18 cm) – předpoklad nízkých nákladů na vytápění. Dispozice bytu: prostorný obývací pokoj se s kuchyňským koutem, vč. kuchyňské linky se spotřebiči (vestavěná myčka, lednice, mrazák, mikrovlnná trouba, trouba, sklokeramická deska), ložnice, pokoj, koupelna s vanou a sprchovým koutem, samostatná toaleta a chodba. Okna jsou plastová, opatřená venkovnímu žaluziemi. Podlahy jsou plovoucí, v koupelně je dlažba. Topení je v celém bytě podlahové, s regulací teploty samostatně pro každou místnost. K dispozici je internet – optický kabel. Nastěhování je možné ihned. K bytu patří samostatná, oplocená zahrada o výměře 74 m2, majitel zahradu na jaře dovybaví zahradním domkem a kompostérem. Parkování je bezproblémové, na ulici u domu. Veškerá občanská vybavenost je v blízkém okolí – MŠ, ZŠ, koupaliště, plavecký, zimní a atletický stadion, lesopark Sladovka, obchody, restaurace, vlakové i autobusové nádraží. Velmi dobré je dopravní spojení do Prahy, autem, vlakem i autobusem. Cena za pronájem: 22.500 Kč měsíčně + záloha na služby: dohodou – cca 4.000 Kč měsíčně včetně elektřiny. Vratná jistota (kauce) – 45.000 Kč. Odměna za zprostředkování: ve výši jednoho nájmu. V případě zájmu o pronájem nás neváhejte kontaktovat na uvedeném telefonním čísle, prohlídky po dohodě kdykoliv, vč. víkendů.

Parametry bytu

Cena
22 500 Kč /za měsíc
Poznámka k ceně
+ poplatky za služby
Aktualizováno
16. 1. 2026
Adresa
Ulrichova, Benešov
ID
PPDO5889
Stavba
Cihlová
Stav objektu
Novostavba
Patro
1. z 3
Lokalita objektu
Klidná část obce
Vlastnictví
Osobní
Užitná plocha
61 m2
Podlahová plocha
68 m2
Plocha zahrady
74 m2
Třída energetické náročnosti
B - Velmi úsporná
Elektřina
230V
Odpad
Veřejná kanalizace
Komunikace
Asfaltová
Telekomunikace
Internet
Doprava
Vlak, Silnice, Autobus
Voda
Vodovod
Topné těleso
Podlahové vytápění
Sklep
Bezbarierový přístup
Převod do OV

Kontaktovat makléře

Máte zájem o tento byt?

Tímto, v souladu s nařízením Evropského parlamentu a Rady (EU) 2016/679, v platném znění, prohlašuji, že mi je alespoň 16 let a uděluji tak svůj souhlas se zpracováním zadaných údajů (jméno, telefon, e-mail, ip adresa) společnosti B3 Technology, s.r.o., IČ: 07330600, se sídlem Novostavby 126/23, 435 11 Lom (správce dat), za účelem předání dotazu z tohoto formuláře Vámi vybranému inzerentovi a zpětného kontaktování mé osoby. Osobní údaje bude správce zpracovávat manuálně i automaticky přímo prostřednictvím svých zaměstnanců. Informace předané tímto formulářem budou uloženy v databázi správce maximálně po dobu 10 let. Odvolání souhlasu s uložením a zpracováním poskytnutých dat lze e-mailem na info@videobydleni.cz. V případě podezření na neoprávněné použití Vámi poskytnutých údajů máte právo předat podnět k šetření Úřadu pro ochranu osobních údajů. Více informací
Chystáte se prodat nemovitost?
Pomůžeme Vám!

Inzerát si prohlédlo 0 lidí

Prodejce

Ing. Petr Doležal

Ing. Petr Doležal

Hlídací pes

Chcete dostávat emailem podobné nabídky pronájmu bytů 3+kk v Benešově?

Podobné nemovitosti


Nevyhovuje Vám typ bytu? Podívejte se na jiné kategorie bytů.


Vybrané články z našeho blogu