Prodej rodinného domu, Kraslice, Dukelská, 650 m2 (ID: 4157189)

Dukelská, Kraslice

3 599 000 Kč /za nemovitost HYPOTÉKA od 16 085 Kč /za měsíc
Prémioví partneři v Kraslicích

Informace k domu

Prodej víceúčelové nemovitosti, Kraslice, ul. Dukelská

Prodej víceúčelové nemovitosti - investice a podnikání, Kraslice

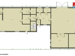
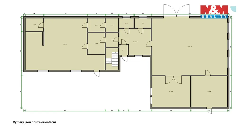
Nabízíme k prodeji soubor dvou budov v klidné části města Kraslice, který představuje atraktivní příležitost pro investory i podnikatele.

První budova je dispozičně řešena jako dům se dvěma bytovými jednotkami, vhodný k okamžitému pronájmu nebo vlastnímu bydlení. Druhá budova je připravena k využití pro podnikání, skladování, dílnu či provozovnu a zároveň nabízí možnost vybudování dalších bytových jednotek, čímž lze významně navýšit investiční potenciál celé nemovitosti.

Objekt byl v minulosti dlouhodobě pronajímán, což potvrzuje jeho schopnost generovat stabilní výnos. Nemovitost je napojena na veřejný vodovod a kanalizaci, vytápění zajišťuje plynový kotel, v jednom z objektů je navíc možnost vytápění krbem.

Tato nabídka spojuje bydlení, podnikání i budoucí zhodnocení v jednom celku.

Pro více informací a sjednání prohlídkového dne kontaktujte makléře. S financováním vám rád pomůže náš hypoteční specialista.

Parametry domu

Cena
3 599 000 Kč /za nemovitost Spočítat hypotéku
Aktualizováno
19. 1. 2026
Adresa
Dukelská, Kraslice
ID
884172
Stavba
Cihlová
Stav objektu
Dobrý
Vybaveno
Částečně
Druh objektu
Samostatný
Lokalita objektu
Klidná část obce
Vlastnictví
Osobní
Užitná plocha
650 m2
Plocha pozemku
460 m2

Kontaktovat makléře

Realitní kancelář

Logo M&M reality

M&M reality

ulice Krakovská 583/9, Praha

Chystáte se prodat nemovitost?
Pomůžeme Vám!

Máte zájem o tento dům?

Tímto, v souladu s nařízením Evropského parlamentu a Rady (EU) 2016/679, v platném znění, prohlašuji, že mi je alespoň 16 let a uděluji tak svůj souhlas se zpracováním zadaných údajů (jméno, telefon, e-mail, ip adresa) společnosti B3 Technology, s.r.o., IČ: 07330600, se sídlem Novostavby 126/23, 435 11 Lom (správce dat), za účelem předání dotazu z tohoto formuláře Vámi vybranému inzerentovi a zpětného kontaktování mé osoby. Osobní údaje bude správce zpracovávat manuálně i automaticky přímo prostřednictvím svých zaměstnanců. Informace předané tímto formulářem budou uloženy v databázi správce maximálně po dobu 10 let. Odvolání souhlasu s uložením a zpracováním poskytnutých dat lze e-mailem na info@videobydleni.cz. V případě podezření na neoprávněné použití Vámi poskytnutých údajů máte právo předat podnět k šetření Úřadu pro ochranu osobních údajů. Více informací
Chystáte se prodat nemovitost?
Pomůžeme Vám!

Inzerát si prohlédlo 0 lidí

Prodejce

Daniel Rédl

Daniel Rédl

Hlídací pes

Chcete dostávat emailem podobné nabídky prodeje rodinných domů v Kraslicích?

Podobné nemovitosti


Nevyhovuje Vám typ domu? Podívejte se na jiné kategorie domů.


Vybrané články z našeho blogu