Pronájem kanceláře, Brno, Vídeňská, 935 m2

Vídeňská, Brno, Dolní Heršpice

215 Kč /za metr čtvereční / měsíc Získejte výhodnou HYPOTÉKU

(+ služby 55Kč/m2 a měsíc + energie měřené dle spotřeby +dph)

Prémioví partneři v Brně

Informace k nemovitosti

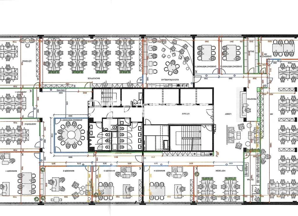
V zastoupení majitele nabízíme k pronájmu moderní nadstandardně vybavené kancelářské podlaží o výměře 935m2 v rámci moderní administrativní budovy na jihu Brna.

Celá jednotka byla ve spolupráci s renomovanou interiérovou firmou vytvořena pro potřeby nájemce dle aktuálních trendů a je možné ji pronajmout i s nábytkem v případě zájmu budoucího nájemce. Jednotka má vytvořenu reprezentativní recepci s přijímací zónou, 4 jednací místnosti (i neformální), větší open space kanceláře i menší kanceláře pro 4 nebo 6 osob případně pro vedení s jednací zónou.

Podlaží umožňuje i dělení na jednotku o velikosti 555m2 nebo 380m2 a je možný i pronájem jen těchto částí. V případě pronájmu jen části podlaží bude cena pronájmu navýšena.

Kancelářská budova, ve které je jednotka umístěna poskytuje veškeré zázemí pro nerušené fungování Vaší společnosti (vstupní lobby s recepcí, klimatizace, restaurace, dostatek parkovacích míst, nabíjecí stanice pro elektro-automobily, školící místnosti různé velikosti k hodinovému pronájmu a další).
Areál disponuje dostatkem parkovacích míst, velkou parkovací zónou pro návštěvy, u objektu je i zastávka MHD. Ideální je dostupnost na D1, Vídeň.

Pro půdorysy a další informace nás prosím kontaktujte v RK.

Parametry nemovitosti

Cena
215 Kč /za metr čtvereční / měsíc
Poznámka k ceně
+ služby 55Kč/m2 a měsíc + energie měřené dle spotřeby +dph
Aktualizováno
19. 1. 2026
Adresa
Vídeňská, Brno, Dolní Heršpice
ID
000066-4
Stavba
Smíšená
Stav objektu
Velmi dobrý
Patro
9. z 11
Vybaveno
Ano
Lokalita objektu
Rušná část obce
Užitná plocha
935 m2
Třída energetické náročnosti
G - Mimořádně nehospodárná
Odpad
Veřejná kanalizace
Komunikace
Dlážděná, Asfaltová
Telekomunikace
Telefon, Internet
Doprava
Dálnice, Silnice, MHD
Voda
Vodovod
Topné těleso
Klimatizace
Garáž
Výtah
Bezbarierový přístup
Parkování

Kontaktovat makléře

Realitní kancelář

BC Commerce

U Leskavy 731/34, Brno, Starý Lískovec

Chystáte se prodat nemovitost?
Pomůžeme Vám!

Máte zájem o tuto nemovistost?

Tímto, v souladu s nařízením Evropského parlamentu a Rady (EU) 2016/679, v platném znění, prohlašuji, že mi je alespoň 16 let a uděluji tak svůj souhlas se zpracováním zadaných údajů (jméno, telefon, e-mail, ip adresa) společnosti B3 Technology, s.r.o., IČ: 07330600, se sídlem Novostavby 126/23, 435 11 Lom (správce dat), za účelem předání dotazu z tohoto formuláře Vámi vybranému inzerentovi a zpětného kontaktování mé osoby. Osobní údaje bude správce zpracovávat manuálně i automaticky přímo prostřednictvím svých zaměstnanců. Informace předané tímto formulářem budou uloženy v databázi správce maximálně po dobu 10 let. Odvolání souhlasu s uložením a zpracováním poskytnutých dat lze e-mailem na info@videobydleni.cz. V případě podezření na neoprávněné použití Vámi poskytnutých údajů máte právo předat podnět k šetření Úřadu pro ochranu osobních údajů. Více informací
Chystáte se prodat nemovitost?
Pomůžeme Vám!

Inzerát si prohlédlo 0 lidí

Prodejce

Mgr. Ilona Van Der Wal

Mgr. Ilona Van Der Wal

Hlídací pes

Chcete dostávat emailem podobné nabídky pronájmu kanceláří v Brně?

Podobné nemovitosti


Nevyhovuje Vám typ nemovitosti? Podívejte se na jiné kategorie komerčních.


Vybrané články z našeho blogu