Prodej bytu 3+1, Slavičín, Okružní, 72 m2

Okružní, Slavičín

3 990 000 Kč /za nemovitost HYPOTÉKA od 17 833 Kč /za měsíc

(cena za nemovitost)

Prémioví partneři v Slavičíně

Informace k bytu

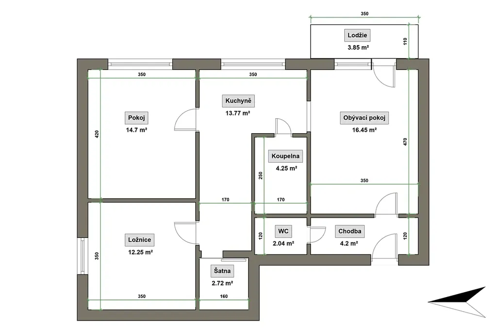
Ráda bych Vám nabídla ke koupi moderní, světlý byt 3+1 po kompletní rekonstrukci se zasklenou lodžií, nacházející se ve vyhledávané a zároveň klidné lokalitě Slavičína – ulice Okružní.

Bytová jednotka o celkové ploše cca 72 m² je umístěna v 1. nadzemním podlaží panelového domu s výtahem. Díky své dispozici a rozloze působí velmi prostorně, vzdušně a nabízí komfortní bydlení bez nutnosti dalších investic.

Hlavní přednosti bytu:

• kompletní a zdařilá rekonstrukce
• celková plocha cca 72 m²
• moderní kuchyňská linka na míru včetně spotřebičů
• zděná koupelna a samostatné WC
• praktická šatna v bytě (cca 2 m²)
• dostatek úložných prostor na chodbě
• nové podlahy v celém bytě
• elektroinstalace v mědi, rozvody vody v plastu
• vnitřní stínění
• zasklená lodžie

Byt nabízí příjemný výhled do okolní zeleně, což umocňuje pocit klidu a propojení s okolím. Díky své orientaci je byt velmi světlý a působí harmonicky.

Nemovitost je ideální volbou pro jednotlivce, páry i rodiny, které hledají moderní bydlení s minimálními nároky na údržbu a chtějí se ihned nastěhovat bez dalších úprav.

V bezprostřední blízkosti domu se nachází obchody, kavárny, dětská hřiště, škola, školka, lékaři i zastávka MHD, která zajišťuje pohodlné spojení do centra Slavičína.

Tento byt Vám mohu jen doporučit – jedná se o příjemné a komfortní bydlení, které si Vás získá hned při první prohlídce.

Prohlídky jsou možné po předchozí domluvě s makléřkou Martinou.

Parametry bytu

Cena
3 990 000 Kč /za nemovitost Spočítat hypotéku
Poznámka k ceně
cena za nemovitost
Aktualizováno
19. 1. 2026
Adresa
Okružní, Slavičín
Stavba
Panelová
Stav objektu
Po rekonstrukci
Patro
1.
Vybaveno
Částečně
Vlastnictví
Osobní
Užitná plocha
72 m2
Třída energetické náročnosti
G - Mimořádně nehospodárná
Odpad
Veřejná kanalizace
Komunikace
Asfaltová
Doprava
Silnice, MHD, Autobus
Voda
Vodovod
Zdroj topení
Centrální dálkové
Sklep
Lodžie
Výtah
Bezbarierový přístup

Kontaktovat makléře

Realitní kancelář

MS reality

třída Tomáše Bati 385, Zlín

Chystáte se prodat nemovitost?
Pomůžeme Vám!

Máte zájem o tento byt?

Tímto, v souladu s nařízením Evropského parlamentu a Rady (EU) 2016/679, v platném znění, prohlašuji, že mi je alespoň 16 let a uděluji tak svůj souhlas se zpracováním zadaných údajů (jméno, telefon, e-mail, ip adresa) společnosti B3 Technology, s.r.o., IČ: 07330600, se sídlem Novostavby 126/23, 435 11 Lom (správce dat), za účelem předání dotazu z tohoto formuláře Vámi vybranému inzerentovi a zpětného kontaktování mé osoby. Osobní údaje bude správce zpracovávat manuálně i automaticky přímo prostřednictvím svých zaměstnanců. Informace předané tímto formulářem budou uloženy v databázi správce maximálně po dobu 10 let. Odvolání souhlasu s uložením a zpracováním poskytnutých dat lze e-mailem na info@videobydleni.cz. V případě podezření na neoprávněné použití Vámi poskytnutých údajů máte právo předat podnět k šetření Úřadu pro ochranu osobních údajů. Více informací
Chystáte se prodat nemovitost?
Pomůžeme Vám!

Inzerát si prohlédlo 0 lidí

Prodejce

Martina Sušňová

Martina Sušňová

Hlídací pes

Chcete dostávat emailem podobné nabídky prodeje bytů 3+1 v Slavičíně?

Podobné nemovitosti


Nevyhovuje Vám typ bytu? Podívejte se na jiné kategorie bytů.


Vybrané články z našeho blogu