Prodej rodinného domu, Hradištko, 241 m2

Hradištko

12 245 000 Kč HYPOTÉKA od 54 728 Kč /za měsíc

(včetně provize RK)

Prémioví partneři v Hradištku

Informace k domu

Prodej RD 277m², pozemek 1140m², Hradištko

Nabízíme zprostředkování prodeje patrového rodinného domu v klidné části obce Hradištko, s dispozicí 7+1 + garáž, stojícího na pozemku o rozloze 1140 m². Tento cihlový dům byl zkolaudován v roce 2006 a je ve velmi dobrém stavu. Užitná plocha domu činí 241 m² + garáž pro 2 auta 36m² + pergola. Dále je zde praktický zahradní domek a nadzemní bazén vyhřívaný tepelným čerpadlem. Součástí domu je též malý sklípek o ploše 6 m² přístupný z předsíně.

Ráda bych vyzdvihla prostornou zahradu za domem o výměře 655 m², která je ideální pro děti, relaxaci i společenské aktivity. Příjemným bonusem je automatická sekačka, která vám zjednoduší její údržbu.

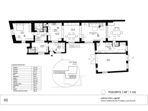
V přízemí domu najdete kromě chodby a předsíně ložnici, obývací pokoj s krbovými kamny, kuchyň, jídelnu, prostornou pergolu, koupelnu, WC a také samostatnou bytovou jednotku (se sprchovým koutem a WC) se samostatným vchodem. Tato jednotka je v současnosti využívána jako pracovna, ale může sloužit jako samostatná garsonka.

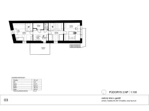
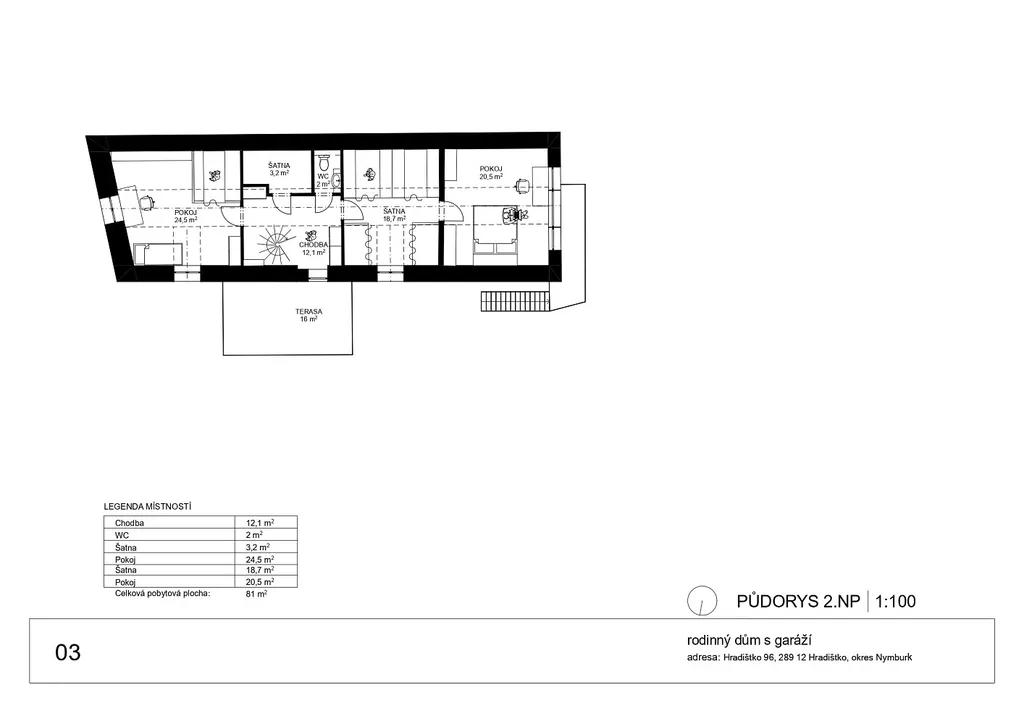
V prvním patře se nachází 2 pokoje, WC, malá šatna a velká průchozí šatna, která může sloužit jako další pokoj.

Vytápění domu je zajištováno tepelným čerpadlem vzduch - vzduch (v pokojích jsou klimatizační jednotky), dále je k dispozici elektrokotel - radiátory, a v obývacím pokoji krbová kamna.


Dům je kompletně zateplený. Energetická třída domu je B, s ukazatelem energetické náročnosti 128 kWh/m²/rok. Pokud by si nový majitel nainstalovat FVT, energetická třída bude A.

Tento dům je ideální volbou pro ty, kteří hledají klidné bydlení v příjemné lokalitě s výhodou blízkosti lesa, řeky (Labe), množstvím cyklostezek, s možnostmi výletů, např. Kersko, vzdálené 3km.

V Hradištku je ZŠ do 5. třídy, MŠ, hospoda. Veškerá infrastruktura je pak s v nedaleké Sadské (5km). Autobusová zastávka s přímými spoji do Sadské a Nymburka je 400m od domu.

Nastěhování od 8/2026. Prohlídky jsou možné po předchozí domluvě. Pro více informací o této nemovitosti nebo sjednání prohlídky nás prosím kontaktujte nebo vyplňte níže uvedený formulář. Rádi vám též pomůžeme s vyřízením hypotéky za výhodných podmínek. Těším se na viděnou s vámi v Hradištku. Vaše makléřka Zdenka Chloubová

Parametry domu

Cena
12 245 000 Kč Spočítat hypotéku
Poznámka k ceně
včetně provize RK
Aktualizováno
21. 1. 2026
Adresa
Hradištko
ID
20261
Stavba
Cihlová
Vybaveno
Částečně
Druh objektu
Samostatný
Lokalita objektu
Klidná část obce
Vlastnictví
Osobní
Užitná plocha
241 m2
Zastavěná plocha
275 m2
Plocha pozemku
1140 m2
Třída energetické náročnosti
B - Velmi úsporná
Ukazatel energetické náročnosti
128 kWh/m2 za rok

Kontaktovat makléře

Máte zájem o tento dům?

Tímto, v souladu s nařízením Evropského parlamentu a Rady (EU) 2016/679, v platném znění, prohlašuji, že mi je alespoň 16 let a uděluji tak svůj souhlas se zpracováním zadaných údajů (jméno, telefon, e-mail, ip adresa) společnosti B3 Technology, s.r.o., IČ: 07330600, se sídlem Novostavby 126/23, 435 11 Lom (správce dat), za účelem předání dotazu z tohoto formuláře Vámi vybranému inzerentovi a zpětného kontaktování mé osoby. Osobní údaje bude správce zpracovávat manuálně i automaticky přímo prostřednictvím svých zaměstnanců. Informace předané tímto formulářem budou uloženy v databázi správce maximálně po dobu 10 let. Odvolání souhlasu s uložením a zpracováním poskytnutých dat lze e-mailem na info@videobydleni.cz. V případě podezření na neoprávněné použití Vámi poskytnutých údajů máte právo předat podnět k šetření Úřadu pro ochranu osobních údajů. Více informací
Chystáte se prodat nemovitost?
Pomůžeme Vám!

Inzerát si prohlédlo 0 lidí

Prodejce

Zdeňka Chloubová

Zdeňka Chloubová

Hlídací pes

Chcete dostávat emailem podobné nabídky prodeje rodinných domů v Hradištku (okr. Nymburk)?

Podobné nemovitosti


Nevyhovuje Vám typ domu? Podívejte se na jiné kategorie domů.


Vybrané články z našeho blogu