Prodej pozemku pro bydlení, Žabčice, Tichá, 972 m2

Tichá, Žabčice

6 200 000 Kč /za nemovitost HYPOTÉKA od 27 710 Kč /za měsíc
Prémioví partneři v Žabčicích

Informace k pozemku

Prodej stavebního pozemku v Žabčicích na klidné ulici Tichá, katastrální území Žabčice, okres Brno – venkov.

Pozemek parc.č. 1104/1 o výměře 972 m2 je určen k výstavbě rodinného domu.
Jedná se o rovinatý zasíťovaný pozemek obdélníkového tvaru s šířkou 18 m a délkou 54 m, který se nachází na hranici katastru obce Žabčice a Přísnotice a tvoří čtvrť, které se říká Malé Žabčice.
Všechny sítě (kanalizace, vodovod, elektřina, plyn, optika) jsou na hranici pozemku.
Je tedy možné využít občanskou vybavenost i dopravní spojení obou obcí.

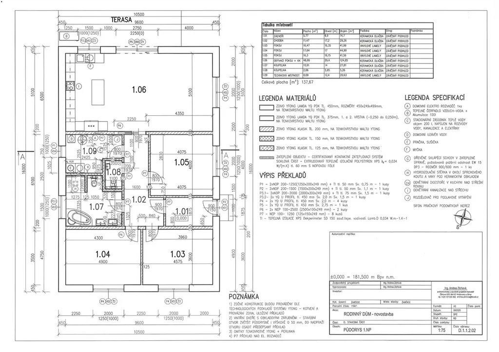
Na výstavbu rodinného domu je vypracovaná projektová dokumentace a bylo zažádáno o stavební povolení. Přízemní rodinný dům o velikosti 4+kk s užitnou plochou 138 m2 (zádveří, chodba, 3x ložnice, obývací pokoj s kuchyňským koutem, koupelna, WC s umyvadlem, technická místnost).
Projektová dokumentace je k nahlédnutí k dispozici a je součástí kupní ceny.

Občanská vybavenost v Žabčicích je na dobré úrovni a zahrnuje základní školu, mateřskou školu, samoobsluhu, poštu, knihovnu, dům s pečovatelskou službou, benzinku, sokolovnu, restaurace a sportoviště, koupaliště, což pokrývá většinu potřeb místních obyvatel.

Autem jsou Žabčice z Brna vzdálené cca 30 km (25 min).
Město Židlochovice se nachází cca 5 km (7 min) a město Pohořelice cca 8 km (9 min).

Dopravní spojení:
Žabčice – vlak Brno,
Přísnotice – autobus Žabčice – přestup vlak Brno,
Žabčice, Přísnotice – autobus Židlochovice, přestup autobus Brno.

Odměna zprostředkovatele není zahrnuta v uvedené ceně.

Parametry pozemku

Cena
6 200 000 Kč /za nemovitost Spočítat hypotéku
Aktualizováno
23. 1. 2026
Adresa
Tichá, Žabčice
ID
53313
Plocha pozemku
972 m2

Kontaktovat makléře

Máte zájem o tento pozemek?

Tímto, v souladu s nařízením Evropského parlamentu a Rady (EU) 2016/679, v platném znění, prohlašuji, že mi je alespoň 16 let a uděluji tak svůj souhlas se zpracováním zadaných údajů (jméno, telefon, e-mail, ip adresa) společnosti B3 Technology, s.r.o., IČ: 07330600, se sídlem Novostavby 126/23, 435 11 Lom (správce dat), za účelem předání dotazu z tohoto formuláře Vámi vybranému inzerentovi a zpětného kontaktování mé osoby. Osobní údaje bude správce zpracovávat manuálně i automaticky přímo prostřednictvím svých zaměstnanců. Informace předané tímto formulářem budou uloženy v databázi správce maximálně po dobu 10 let. Odvolání souhlasu s uložením a zpracováním poskytnutých dat lze e-mailem na info@videobydleni.cz. V případě podezření na neoprávněné použití Vámi poskytnutých údajů máte právo předat podnět k šetření Úřadu pro ochranu osobních údajů. Více informací
Chystáte se prodat nemovitost?
Pomůžeme Vám!

Inzerát si prohlédlo 1 lidí

Prodejce

Nikola Charvátová

Nikola Charvátová

Hlídací pes

Chcete dostávat emailem podobné nabídky prodeje pozemků pro bydlení v Žabčicích?

Podobné nemovitosti


Nevyhovuje Vám typ pozemku? Podívejte se na jiné kategorie pozemků.


Vybrané články z našeho blogu