Soccer reality

Pronájem bytu 1+kk, Praha - Hloubětín, Za černým mostem, 36 m2 (ID: 4161273)

Za černým mostem, Praha, Hloubětín

17 200 Kč /za měsíc Získejte výhodnou HYPOTÉKU

(vratná kauce ve výši dvou měsíčních nájmů + provize za zprostředkování ve výši jednoho nájmu + DPH)

Prémioví partneři v Praze 9

Stěhovací služby

Výkup a prodej starého nábytku

Informace k bytu

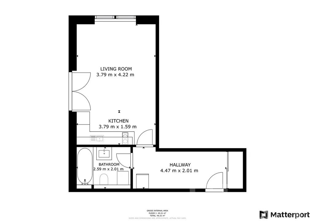
Máte v plánu se přestěhovat, ale vaší podmínkou je balkón a bydlení v novostavbě? Pak právě pro vás máme tuto jedinečnou nabídku v podobě pronájmu bytu o dispozici 1+kk v oblíbené lokalitě pražského Hloubětína.

Při vstupu do něj vás uvítá prostorná předsíň s vestavěnými skříněmi, ze které se dále dostanete do koupelny a do hlavní místnosti. Pokoj je vybaven krásným, moderním kuchyňským koutem, jehož součástí je trouba, varná deska i myčka nádobí a je zde dostatek prostoru i pro obývací část. V té vás již čeká pohodlný gauč i televize. Z této místnosti se také dostanete na balkón. Díky velkým oknům je v místnosti dostatek denního světla. Díky světlým a přírodním barvám použitým v interiéru se vám meze při jeho zařizování klást nebudou. Koupelna je opatřena vanou, toaletou a také pračkou.
Součástí bytu je i sklep, který vám zajistí další úložné prostory.

Geografická poloha této novostavby je též naprosto skvělá. Veškerou občanskou vybavenost, dostupnost na MHD a přírodu budete mít v docházkové vzdálenosti od vašeho budoucího bydliště.
Byt je k nastěhování od března, ale na prohlídku můžete již nyní.

Poplatky vč. elektřiny činí 3 919 Kč měsíčně a jsou zúčtovatelné.
Provize za zprostředkování ve výši jednoho nájmu + DPH.
Vratná kauce ve výši dvou měsíčních nájmů.

Bojíte se, aby vám tato nabídka neunikla? Nyní už nemusíte. Nabízíme vám možnost si byt pronajmout plně online.
Pokud ovšem dáváte přednost osobnímu setkání, neváhejte a domluvte si prohlídku. Těšíme se na setkání s vámi.

Kontaktovat nás můžete v pracovní dny od 9:00 do 17:30.

Parametry bytu

Cena
17 200 Kč /za měsíc
Poznámka k ceně
vratná kauce ve výši dvou měsíčních nájmů + provize za zprostředkování ve výši jednoho nájmu + DPH
Náklady na bydlení
3919 Kč
Aktualizováno
11. 3. 2026
Adresa
Za černým mostem, Praha, Hloubětín
ID
20260122-2
Stavba
Smíšená
Stav objektu
Novostavba
Patro
2. z 8
Vybaveno
Částečně
Lokalita objektu
Klidná část obce
Vlastnictví
Osobní
Užitná plocha
36 m2
Třída energetické náročnosti
B - Velmi úsporná
Ukazatel energetické náročnosti
78 kWh/m2 za rok
Elektřina
230V
Odpad
Veřejná kanalizace
Komunikace
Betonová
Doprava
Vlak, Silnice, MHD, Autobus
Voda
Vodovod
Topné těleso
Radiátory
Zdroj topení
Centrální dálkové
Zdroj teplé vody
Centrální dálkový ohřev
Balkon
Sklep
Výtah
Bezbarierový přístup

Kontaktovat makléře

Máte zájem o tento byt?

Tímto, v souladu s nařízením Evropského parlamentu a Rady (EU) 2016/679, v platném znění, prohlašuji, že mi je alespoň 16 let a uděluji tak svůj souhlas se zpracováním zadaných údajů (jméno, telefon, e-mail, ip adresa) společnosti B3 Technology, s.r.o., IČ: 07330600, se sídlem Novostavby 126/23, 435 11 Lom (správce dat), za účelem předání dotazu z tohoto formuláře Vámi vybranému inzerentovi a zpětného kontaktování mé osoby. Osobní údaje bude správce zpracovávat manuálně i automaticky přímo prostřednictvím svých zaměstnanců. Informace předané tímto formulářem budou uloženy v databázi správce maximálně po dobu 10 let. Odvolání souhlasu s uložením a zpracováním poskytnutých dat lze e-mailem na info@videobydleni.cz. V případě podezření na neoprávněné použití Vámi poskytnutých údajů máte právo předat podnět k šetření Úřadu pro ochranu osobních údajů. Více informací
Chystáte se prodat nemovitost?
Pomůžeme Vám!

Inzerát si prohlédlo 11 lidí

Prodejce

FLET Pronájem

FLET Pronájem

Hlídací pes

Chcete dostávat emailem podobné nabídky pronájmu bytů 1+kk v Praze 9?

Podobné nemovitosti


Nevyhovuje Vám typ bytu? Podívejte se na jiné kategorie bytů.


Vybrané články z našeho blogu