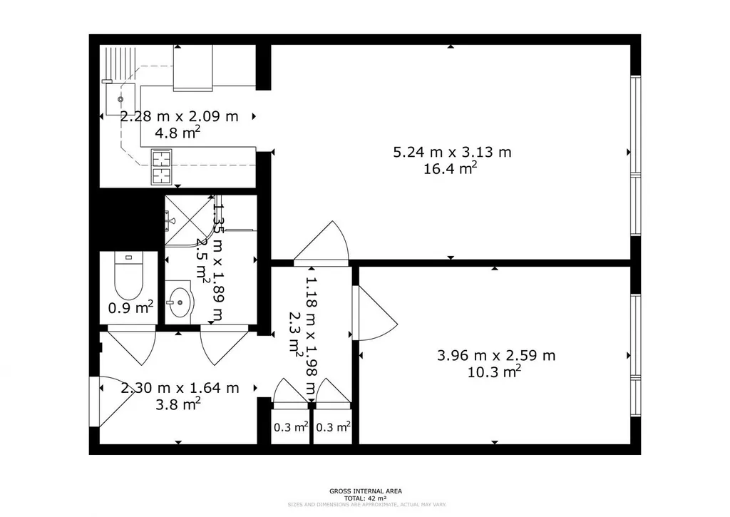
Prodej bytu 2+1, Praha - Ruzyně, Ciolkovského, 42 m2

Ciolkovského, Praha 6 - Ruzyně

5 850 000 Kč HYPOTÉKA od 26 146 Kč /za měsíc

(měsíční poplatky včetně provize RK)

Prémioví partneři v Praze 6

Stěhovací služby

Výkup a prodej starého nábytku

Informace k bytu

Byt 2+1 Ciolkovského, Praha 6 - Ruzyně

Nabízíme Vám jedinečnou příležitost koupit byt 2+1 v klidné části obce Ruzyně, v oblíbené lokalitě Prahy 6. Byt se nachází na 4. podlaží panelového domu, který je ve velmi dobrém stavu. Jeho poloha na úpatí krásného přírodního parku a nedaleko od letiště Václava Havla poskytuje skvělou dostupnost do centra Prahy i do okolních obcí.

Tento byt je ideální pro páry, rodiny s jedním dítětem nebo pro ty, kteří hledají klidný a příjemný domov v blízkosti přírody.

V bytě je koupelna se sprchovým koutem a samostatné WC . Na topení si díky termoregulačním ventilům si můžete snadno nastavit teplotu v jednotlivých místnostech podle svých preferencí.

Podlahy jsou v bytě pokryty linoleem a koberci, které poskytují příjemný pocit pro chůzi. Součástí bytu je také sklep, který vám nabízí dostatek místa pro uložení sezónního vybavení.

Tento byt je nabízen včetně veškerého vybavení. Majitel si však vyhrazuje právo vybrat zájemce na základě vlastních preferencí a případně vyšší nabídky. Výhodné financování můžeme zajistit.

V domě je bezbariérový vstup a dva výtahy, takže se nemusíte obávat o přístup do bytu pro osoby s omezenou pohyblivostí. V okolí najdete veškerou občanskou vybavenost, včetně škol, školek, obchodů a restaurací. Přírodní park vám poskytne možnost procházek a relaxace, a přesto jste jen krátkou jízdou od ruchu velkoměsta.

Nenechte si ujít tuto jedinečnou příležitost a staňte se majitelem tohoto útulného bytu v klidné části Ruzyně. Kontaktujte nás pro více informací a domluvte si prohlídku. Těšíme se na Vás.

Parametry bytu

Cena
5 850 000 Kč Spočítat hypotéku
Poznámka k ceně
měsíční poplatky včetně provize RK
Aktualizováno
23. 1. 2026
Adresa
Ciolkovského, Praha 6 - Ruzyně
ID
32
Stavba
Panelová
Vybaveno
Ne
Vlastnictví
Osobní
Užitná plocha
42 m2
Třída energetické náročnosti
C - Úsporná

Kontaktovat makléře

Máte zájem o tento byt?

Tímto, v souladu s nařízením Evropského parlamentu a Rady (EU) 2016/679, v platném znění, prohlašuji, že mi je alespoň 16 let a uděluji tak svůj souhlas se zpracováním zadaných údajů (jméno, telefon, e-mail, ip adresa) společnosti B3 Technology, s.r.o., IČ: 07330600, se sídlem Novostavby 126/23, 435 11 Lom (správce dat), za účelem předání dotazu z tohoto formuláře Vámi vybranému inzerentovi a zpětného kontaktování mé osoby. Osobní údaje bude správce zpracovávat manuálně i automaticky přímo prostřednictvím svých zaměstnanců. Informace předané tímto formulářem budou uloženy v databázi správce maximálně po dobu 10 let. Odvolání souhlasu s uložením a zpracováním poskytnutých dat lze e-mailem na info@videobydleni.cz. V případě podezření na neoprávněné použití Vámi poskytnutých údajů máte právo předat podnět k šetření Úřadu pro ochranu osobních údajů. Více informací
Chystáte se prodat nemovitost?
Pomůžeme Vám!

Inzerát si prohlédlo 1 lidí

Prodejce

Mgr. Jan Hrbek

Mgr. Jan Hrbek

Hlídací pes

Chcete dostávat emailem podobné nabídky prodeje bytů 2+1 v Praze 6?

Podobné nemovitosti


Nevyhovuje Vám typ bytu? Podívejte se na jiné kategorie bytů.


Vybrané články z našeho blogu