Prodej bytu 2+kk, Plzeň, Poděbradova, 64 m2

Poděbradova, Plzeň, Jižní Předměstí

5 850 000 Kč /za nemovitost HYPOTÉKA od 26 146 Kč /za měsíc
Prémioví partneři v Plzni

Stěhovací služby

Informace k bytu

Hledáte moderní domov, který kombinuje styl, maximální úspornost a skvělou lokalitu v širším centru Plzně? Tento světlý a vzdušný byt o celkové ploše 67,4 m² v ulici Poděbradova je přesně tím místem, kde se nebudete muset omezovat. Nachází se v moderním bytovém domě z roku 2019 a díky energetické třídě A (mimořádně úsporná) nabízí nejen minimální provozní náklady, ale také možnost získat výhodnější podmínky financování u bank.

Byt působí klidně a čistě hned při vstupu. Dispozice je promyšlená tak, aby vyhovovala jak pro vlastní bydlení, tak jako bezpečná investice s vysokým potenciálem pronájmu.

Obývací pokoj s kuchyní (28 m²): Velkorysý prostor pro každodenní život i setkání s přáteli. Kuchyně je vybavena moderní linkou s vestavnými spotřebiči a bonusem v podobě kvalitního vodního filtru eSpring pro špičkovou pitnou vodu.

Ložnice (20,5 m²): Nadstandardně prostorná místnost, která nabízí klid pro váš odpočinek.

Samostatná šatna: Velká výhoda tohoto bytu! Kompletní modulární systém IKEA řeší úložné prostory elegantně a bez nutnosti zaplňovat pokoje skříněmi, případně prostor pro postel.

Balkon (3,4 m²): Ideální místo pro ranní kávu nebo večerní relax po práci.

Kvalita a technologie
V celém bytě najdete praktickou kombinaci plovoucích podlah a dlažby pro snadnou údržbu. Samozřejmostí je vysokorychlostní optický internet. Celý dům i společné prostory jsou navíc zabezpečeny kamerovým systémem, což vám dodá maximální pocit bezpečí.

Lokalita a parkování
Bydlení v ulici Poděbradova znamená mít město na dlani. V docházkové vzdálenosti najdete:

Centrum města a OC Plaza (nákupy, kino, restaurace)

Centrální autobusové nádraží a MHD

Kompletní občanskou vybavenost a kulturu

Parkování je možné v modrých zónách přímo u domu nebo u nedalekého nádraží. Velkým benefitem je sousední soukromé parkoviště, kde se pravidelně objevují možnosti pronájmu krytého stání.

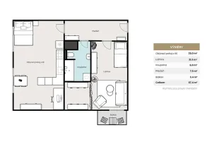
Dispozice a výměry:

Obývací pokoj + KK: 28,0 m²
Ložnice: 20,5 m²
Koupelna: 5,9 m²
Předsíň: 7,5 m²
Balkon: 3,4 m²

Celková plocha: 67,4 m²

Nízké měsíční náklady a nízký fond oprav dělají z této nemovitosti jednu z nejatraktivnějších nabídek v dané lokalitě.

Přijďte se o výjimečné atmosféře tohoto bytu přesvědčit osobně. Rád vás nemovitostí provedu a v případě zájmu vám pomůžeme zajistit nejvýhodnější financování na trhu.

Zavolejte mi a domluvíme si termín prohlídky!

Parametry bytu

Cena
5 850 000 Kč /za nemovitost Spočítat hypotéku
Aktualizováno
25. 4. 2026
Adresa
Poděbradova, Plzeň, Jižní Předměstí
ID
973539
Stavba
Cihlová
Stav objektu
Novostavba
Patro
4. z 8
Vybaveno
Částečně
Vlastnictví
Osobní
Užitná plocha
64 m2
Podlahová plocha
67 m2
Třída energetické náročnosti
A - Mimořádně úsporná
Elektřina
230V
Plyn
Plynovod
Odpad
Veřejná kanalizace
Komunikace
Asfaltová
Telekomunikace
Telefon, Internet, Kabelová televize
Doprava
Dálnice, Silnice, MHD, Autobus
Voda
Vodovod
Topné těleso
Radiátory
Zdroj topení
Ústřední dálkové
Balkon
Výtah

Kontaktovat makléře

Máte zájem o tento byt?

Tímto, v souladu s nařízením Evropského parlamentu a Rady (EU) 2016/679, v platném znění, prohlašuji, že mi je alespoň 16 let a uděluji tak svůj souhlas se zpracováním zadaných údajů (jméno, telefon, e-mail, ip adresa) společnosti B3 Technology, s.r.o., IČ: 07330600, se sídlem Novostavby 126/23, 435 11 Lom (správce dat), za účelem předání dotazu z tohoto formuláře Vámi vybranému inzerentovi a zpětného kontaktování mé osoby. Osobní údaje bude správce zpracovávat manuálně i automaticky přímo prostřednictvím svých zaměstnanců. Informace předané tímto formulářem budou uloženy v databázi správce maximálně po dobu 10 let. Odvolání souhlasu s uložením a zpracováním poskytnutých dat lze e-mailem na info@videobydleni.cz. V případě podezření na neoprávněné použití Vámi poskytnutých údajů máte právo předat podnět k šetření Úřadu pro ochranu osobních údajů. Více informací
Chystáte se prodat nemovitost?
Pomůžeme Vám!

Inzerát si prohlédlo 14 lidí

Prodejce

Jonáš Drgač

Jonáš Drgač

Hlídací pes

Chcete dostávat emailem podobné nabídky prodeje bytů 2+kk v Plzni?

Podobné nemovitosti


Nevyhovuje Vám typ bytu? Podívejte se na jiné kategorie bytů.


Vybrané články z našeho blogu