Prodej rodinného domu, Hostouň, Na Pohoří, 51 m2

Na Pohoří, Hostouň

3 790 000 Kč /za nemovitost HYPOTÉKA od 16 939 Kč /za měsíc
Prémioví partneři v Hostouni

Informace k domu

V zastoupení majitele vám představujeme prodej rodinného domu v obci Hostouň.

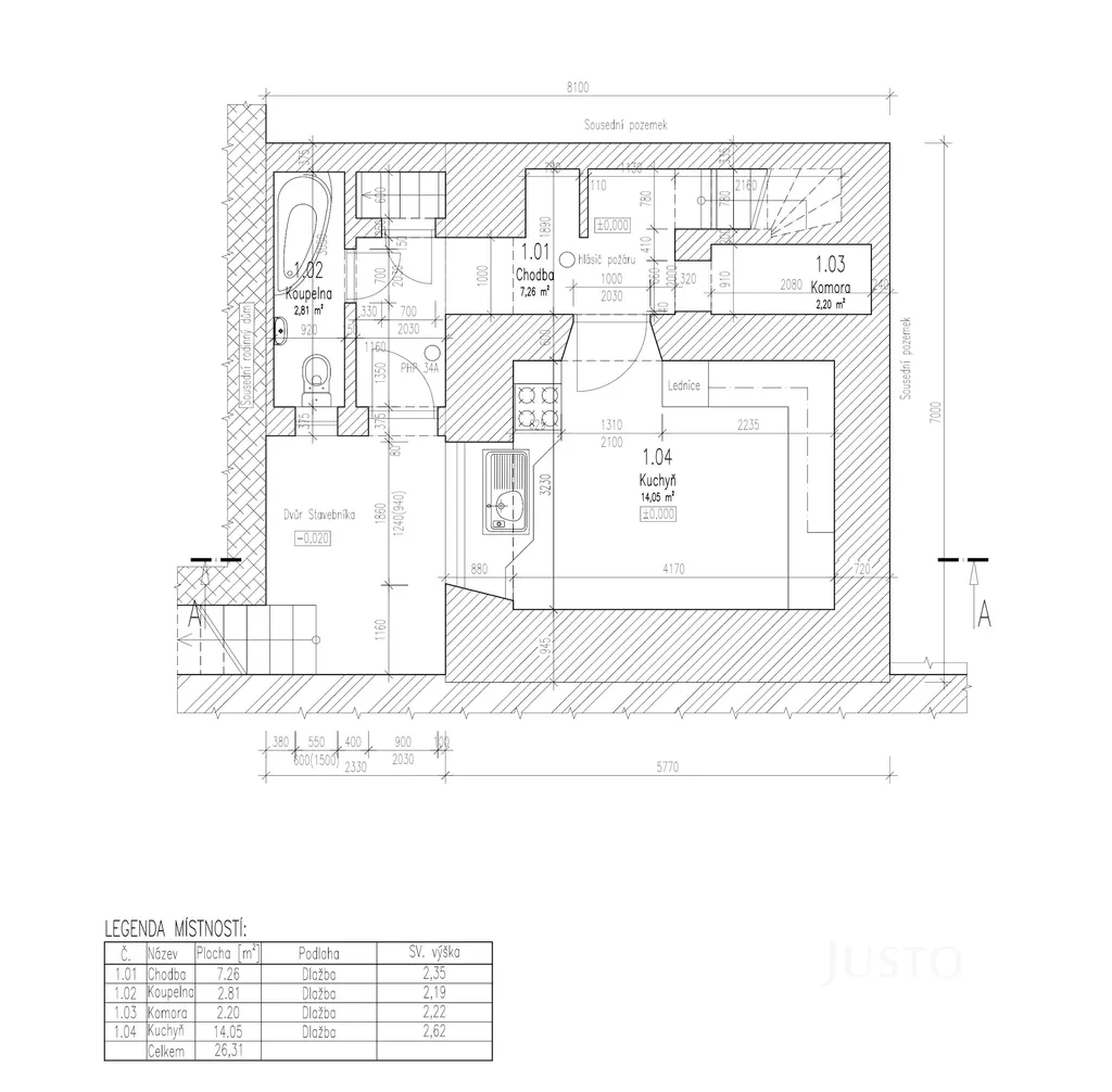
Stavba domu stojí na pozemku o celkové ploše 108 m² a nabízí užitnou plochu cca 51 m².

Základní informace:
- dispozice 1+1
- přístavba a rekonstrukce v roce 2008 (rozvody vody, elektřiny a topení)
- venkovní terasa
- plastová okna
- napojení na vodu z řádu a kanalizaci
- zpracované a vyřízené podklady pro rekonstrukci – přístavbu obytného podkroví

Lokalita a občanská vybavenost:
- základní a mateřská škola, obchody a běžné služby přímo v obci
- vlakové spojení – zastávka Jeneč, vhodné pro přestup na metro A (Nádraží Veleslavín)
- autobusové spojení v rámci PID
- Praha cca 10 minut autem, Kladno cca 13 minut autem
- cyklostezky a možnosti aktivního vyžití v okolí

Veškeré fotografie, půdorysy a další informace najdete ve sdílené složce. Odkaz vám dorazí během několika minut po odeslání poptávky.

Prosím, zkontrolujte si také složku spam nebo nevyžádaná pošta, kam by email mohl zapadnout.

Parametry domu

Cena
3 790 000 Kč /za nemovitost Spočítat hypotéku
Aktualizováno
24. 1. 2026
Adresa
Na Pohoří, Hostouň
ID
J11199
Stavba
Smíšená
Stav objektu
Před rekonstrukcí
Vybaveno
Částečně
Typ objektu
Patrový
Druh objektu
Samostatný
Lokalita objektu
Centrum obce
Vlastnictví
Osobní
Užitná plocha
51 m2
Plocha pozemku
108 m2
Elektřina
230V
Plyn
Plynovod
Odpad
Veřejná kanalizace
Topení
Lokální plynové
Komunikace
Asfaltová
Doprava
Vlak, Autobus
Voda
Vodovod
Topné těleso
Radiátory
Zdroj topení
Plynový kotel
Zdroj teplé vody
Plynový kotel
Sklep
Terasa

Kontaktovat makléře

Realitní kancelář

Logo JUSTO Česká republika

JUSTO Česká republika

Korunní 2569/108, Vinohrady, Praha

Chystáte se prodat nemovitost?
Pomůžeme Vám!

Máte zájem o tento dům?

Tímto, v souladu s nařízením Evropského parlamentu a Rady (EU) 2016/679, v platném znění, prohlašuji, že mi je alespoň 16 let a uděluji tak svůj souhlas se zpracováním zadaných údajů (jméno, telefon, e-mail, ip adresa) společnosti B3 Technology, s.r.o., IČ: 07330600, se sídlem Novostavby 126/23, 435 11 Lom (správce dat), za účelem předání dotazu z tohoto formuláře Vámi vybranému inzerentovi a zpětného kontaktování mé osoby. Osobní údaje bude správce zpracovávat manuálně i automaticky přímo prostřednictvím svých zaměstnanců. Informace předané tímto formulářem budou uloženy v databázi správce maximálně po dobu 10 let. Odvolání souhlasu s uložením a zpracováním poskytnutých dat lze e-mailem na info@videobydleni.cz. V případě podezření na neoprávněné použití Vámi poskytnutých údajů máte právo předat podnět k šetření Úřadu pro ochranu osobních údajů. Více informací
Chystáte se prodat nemovitost?
Pomůžeme Vám!

Inzerát si prohlédlo 0 lidí

Prodejce

Tereza Zelenková

Tereza Zelenková

Hlídací pes

Chcete dostávat emailem podobné nabídky prodeje rodinných domů v Hostouni (okr. Kladno)?

Podobné nemovitosti


Nevyhovuje Vám typ domu? Podívejte se na jiné kategorie domů.


Vybrané články z našeho blogu