Prodej bytu 2+kk, Praha - Braník, Roškotova, 45 m2 (ID: 4162223)

Roškotova, Praha, Braník

6 590 000 Kč /za nemovitost HYPOTÉKA od 29 453 Kč /za měsíc

(včetně provize RK a právního servisu)

Prémioví partneři v Praze 4

Stěhovací služby

Výkup a prodej starého nábytku

Informace k bytu

Dovolujeme si Vám nabídnout ke koupi velmi pěkný byt 2kk-45m2 v osobním vlastnictví s venkovním parkovacím stáním. Byt se nachází v klidné a žádané lokalitě Praha 4, Braník.

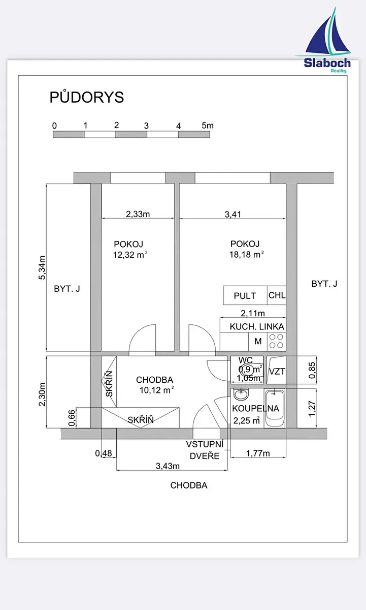
Bytová jednotka je situována ve zvýšeném přízemí (2 metry od spodní hrany okna) velmi pěkného panelového domu po rekonstrukci. Byt disponuje obývacím pokojem s kuchyňským koutem včetně kuchyňské linky se spotřebiči, dostatečně prostornou ložnicí, koupelnou s vanou a přípojkou na pračku, samostatnou toaletou a prostornou předsíní s vestavěnou skříní na míru. Pokoje jsou neprůchozí.

Byt prošel v roce 2023 částečnou rekonstrukcí (koupelna a toaleta), je světlý s orientací na západ a výhledem do zeleně. Podlahová krytina je kombinací dřevěných masivních parket a dlažby.

K bytu náleží a je součástí prodejní ceny venkovní parkovací stání přímo u domu a sklepní koje (2m2) v přízemí domu.

Do domu je vstup pomocí čipu. Je zde velmi dobře fungující SVJ. Měsíční poplatky na bydlení jsou velmi nízké, 3.400.-Kč včetně fondu oprav + záloha na elektřinu. Dům je po kompletní rekonstrukci (zateplení, nový výtah, střecha a společné prostory). Do domu a bytu je bezbariérový vstup.

V okolí je kompletní občanská vybavenost (poliklinika, školy, školky, obchody, restaurace, divadlo Dobeška atd.). V blízkosti naleznete přírodní park Branické skály. Je zde výborná dopravní dostupnost. Autobusová zastávka Zelený pruh je vzdálená 250m od domu (metro Budějovická - 4 zastávky autobusem), zastávka Nové Podolí - 550m (Dvorce/Žluté lázně/Vltavská cyklostezka - 3 zastávky). Velkou výhodou je stavba trasy D metra, kdy zastávka Olbrachtova bude v docházkové vzdálenosti.

Doporučujme prohlídku.
¨
Pro více volejte kdykoliv makléři.

Garantujeme naprosto harmonický převod vlastnického práva k bytové jednotce + bezpečný převod kupní ceny (advokátní či bankovní úschova dle výběru klienta).

S případným vyřízením hypotéky Vám velmi rádi pomůžeme přes našeho partnera za nejlepších podmínek na trhu.

Parametry bytu

Cena
6 590 000 Kč /za nemovitost Spočítat hypotéku
Poznámka k ceně
včetně provize RK a právního servisu
Aktualizováno
24. 1. 2026
Adresa
Roškotova, Praha, Braník
ID
00192
Stavba
Panelová
Stav objektu
Velmi dobrý
Patro
1. z 7
Lokalita objektu
Centrum obce
Vlastnictví
Osobní
Užitná plocha
45 m2
Třída energetické náročnosti
C - Úsporná
Ukazatel energetické náročnosti
95 kWh/m2 za rok
Elektřina
230V
Odpad
Veřejná kanalizace
Komunikace
Betonová, Dlážděná, Asfaltová
Telekomunikace
Internet, Satelit
Doprava
MHD, Autobus
Voda
Vodovod
Topné těleso
Radiátory
Zdroj topení
Centrální dálkové
Zdroj teplé vody
Centrální dálkový ohřev
Sklep
Výtah
Bezbarierový přístup
Parkování

Kontaktovat makléře

Máte zájem o tento byt?

Tímto, v souladu s nařízením Evropského parlamentu a Rady (EU) 2016/679, v platném znění, prohlašuji, že mi je alespoň 16 let a uděluji tak svůj souhlas se zpracováním zadaných údajů (jméno, telefon, e-mail, ip adresa) společnosti B3 Technology, s.r.o., IČ: 07330600, se sídlem Novostavby 126/23, 435 11 Lom (správce dat), za účelem předání dotazu z tohoto formuláře Vámi vybranému inzerentovi a zpětného kontaktování mé osoby. Osobní údaje bude správce zpracovávat manuálně i automaticky přímo prostřednictvím svých zaměstnanců. Informace předané tímto formulářem budou uloženy v databázi správce maximálně po dobu 10 let. Odvolání souhlasu s uložením a zpracováním poskytnutých dat lze e-mailem na info@videobydleni.cz. V případě podezření na neoprávněné použití Vámi poskytnutých údajů máte právo předat podnět k šetření Úřadu pro ochranu osobních údajů. Více informací
Chystáte se prodat nemovitost?
Pomůžeme Vám!

Inzerát si prohlédlo 0 lidí

Prodejce

Pavel Slaboch

Pavel Slaboch

Hlídací pes

Chcete dostávat emailem podobné nabídky prodeje bytů 2+kk v Praze 4?

Podobné nemovitosti


Nevyhovuje Vám typ bytu? Podívejte se na jiné kategorie bytů.


Vybrané články z našeho blogu