Prodej bytu 4+kk, Ostopovice, B. Němcové, 170 m2 (ID: 4162441)

B. Němcové, Ostopovice

14 642 050 Kč /za nemovitost HYPOTÉKA od 65 441 Kč /za měsíc
Prémioví partneři v Ostopovicích

Informace k bytu

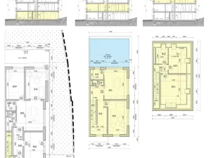
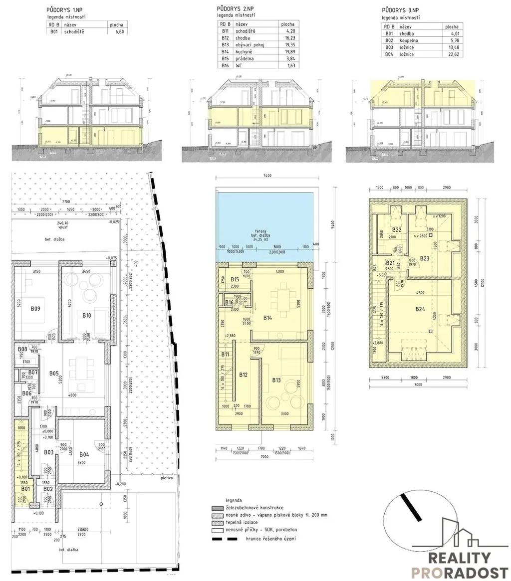
Jako vybraný zástupce majitele Vám exkluzivně nabízíme ke koupi moderní novostavbu bytu 4+kk o ploše 131 m² s velkou terasou 39 m² a vlastním parkovacím stáním. Byt se nachází v klidné části obce Ostopovice, v novém komorním domě se čtyřmi bytovými jednotkami.

Tato nabídka kombinuje komfort rodinného domu s praktičností bytu – soukromí, dostatek prostoru i skvělou dostupnost do Brna.

PROČ SI ZAMILUJETE TENTO BYT:
Vlastní terasa 39 m² - prostor pro relaxaci, grilování a rodinné chvíle
Vlastní parkovací místo - žádné starosti s parkováním
Soukromý vstup - pocit rodinného domu s praktičností bytu
Energetická třída A - minimální náklady na vytápění
15 minut do centra Brna - MHD i autem
Výkonná klimatizace - celé horní patro příjemně chladí i topí

DISPOZICE, KTERÁ DÁVÁ SMYSL:
Mezonetový byt s promyšleným řešením prostoru:
Prostorný obývací pokoj s kuchyní - přímý výstup na terasu
3 samostatné ložnice - ideální pro rodinu nebo home office
Technická místnost - dostatek úložného prostoru
Koupelna s WC + 1x samostatné WC - praktické řešení pro každodenní život

MODERNÍ STANDARD BEZ KOMPROMISŮ:
Rok dokončení 2025 - vše nové, bez skrytých vad
Trojskla + venkovní žaluzie - tepelný a akustický komfort
Podlahové vytápění - rovnoměrné teplo v celém bytě
Rekuperace vzduchu - zdravé prostředí celoročně
Kvalitní vinylové podlahy - krásné a praktické

LOKALITA, KTEROU OCENÍTE:
Ostopovice - to nejlepší z obou světů:
Kompletní občanská vybavenost - obchod, škola, školka
Cyklostezky a příroda - aktivní život přímo za dveřmi
Rychlé spojení s Brnem - dálniční přivaděč 5 minut autem
Klidné prostředí - pryč od městského ruchu, přesto blízko všemu

INVESTICE DO BUDOUCNOSTI:
Férová cena pod brněnským průměrem
Energetická třída A = nízké náklady na vytápění
Rostoucí hodnota v atraktivní lokalitě
Možnost okamžitého nastěhování

Parametry bytu

Cena
14 642 050 Kč /za nemovitost Spočítat hypotéku
Aktualizováno
12. 3. 2026
Adresa
B. Němcové, Ostopovice
ID
28805
Stavba
Cihlová
Stav objektu
Novostavba
Patro
2. z 3
Vybaveno
Ne
Lokalita objektu
Centrum obce
Vlastnictví
Osobní
Užitná plocha
170 m2
Podlahová plocha
170 m2
Třída energetické náročnosti
B - Velmi úsporná
Elektřina
230V
Plyn
Plynovod
Odpad
Veřejná kanalizace
Komunikace
Asfaltová
Telekomunikace
Internet
Doprava
Dálnice, Silnice, MHD, Autobus
Voda
Vodovod
Terasa
Bezbarierový přístup
Nízkoenergetický

Kontaktovat makléře

Máte zájem o tento byt?

Tímto, v souladu s nařízením Evropského parlamentu a Rady (EU) 2016/679, v platném znění, prohlašuji, že mi je alespoň 16 let a uděluji tak svůj souhlas se zpracováním zadaných údajů (jméno, telefon, e-mail, ip adresa) společnosti B3 Technology, s.r.o., IČ: 07330600, se sídlem Novostavby 126/23, 435 11 Lom (správce dat), za účelem předání dotazu z tohoto formuláře Vámi vybranému inzerentovi a zpětného kontaktování mé osoby. Osobní údaje bude správce zpracovávat manuálně i automaticky přímo prostřednictvím svých zaměstnanců. Informace předané tímto formulářem budou uloženy v databázi správce maximálně po dobu 10 let. Odvolání souhlasu s uložením a zpracováním poskytnutých dat lze e-mailem na info@videobydleni.cz. V případě podezření na neoprávněné použití Vámi poskytnutých údajů máte právo předat podnět k šetření Úřadu pro ochranu osobních údajů. Více informací
Chystáte se prodat nemovitost?
Pomůžeme Vám!

Inzerát si prohlédlo 12 lidí

Prodejce

Adam Trčka

Adam Trčka

Hlídací pes

Chcete dostávat emailem podobné nabídky prodeje bytů 4+kk v Ostopovicích?

Podobné nemovitosti


Nevyhovuje Vám typ bytu? Podívejte se na jiné kategorie bytů.


Vybrané články z našeho blogu