Prodej bytu 2+kk, Golem, Albánie, 54 m2 (ID: 4164404)

Golem

75 330 € /za nemovitost
Prémioví partneři

Informace k bytu

Moje nemovitost u moře je stabilní česká společnost (české s.r.o.) se stovky spokojenými klienty. Nabízíme kompletní servis nejen při koupi nemovitosti, ale i po převodu vlastnictví. Postaráme se o veškerou dokumentaci, právní podporu, překlady a převody energií, a navíc zajistíme správu nemovitosti, pronájem, úklid, inzerci, rekonstrukce a dovybavení. Díky našemu poprodejnímu servisu máte jistotu, že vaše investice bude vždy v dobrých rukou. Jsme přímo v destinaci, připraveni kdykoliv pomoci.

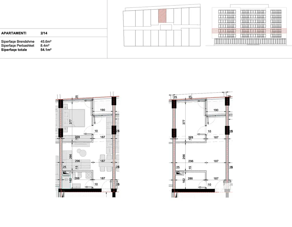
Nabízíme k prodeji apartmán 2+kk, o ploše 54.1 m2, v nové budově, který se nachází přibližně 200 m od moře, v oblíbené lokalitě Golem. Apartmán je ve výstavbě - s dokončením na klíč.

Představujeme nový moderní rezidenční projekt v oblíbené lokalitě Golem, který zaujme na první pohled svou architekturou, nadčasovým designem a důrazem na kvalitu. Budova je navržena architektem s cílem propojit moderní estetiku, funkčnost a komfort středomořského bydlení.

Rezidence se nachází pouhých 200 m od pobřeží a nabízí rychlý přístup ke všemu, co je potřeba pro pohodlný každodenní život – supermarkety, služby, bary i restaurace jsou v bezprostředním okolí.

Projekt je realizován v nadstandardním provedení s využitím vysoce kvalitních materiálů a moderních stavebních technologií. Díky tomu je ideální volbou nejen pro vlastní bydlení, ale také jako stabilní investice s jistým výnosem v jedné z nejžádanějších oblastí albánského pobřeží.

Klíčové výhody projektu:
- Atraktivní lokalita 200 m od moře
- Moderní architektura navržená zkušeným architektem
- Nadstandardní provedení a vysoká kvalita prací
- Vhodné pro bydlení i investici
- Plánované dokončení v roce 2028
- Možnost splátkového kalendáře během výstavby
- Silná poptávka po pronájmech v oblasti

Hledáte moderní projekt u moře s dlouhodobým potenciálem růstu hodnoty? Kontaktujte nás pro více informací, půdorysy a možnosti vstupu do projektu.

Parametry bytu

Cena
75 330 € /za nemovitost
Aktualizováno
27. 1. 2026
Adresa
Golem
ID
F23109
Stavba
Smíšená
Stav objektu
Ve výstavbě
Patro
2. z 6
Vybaveno
Částečně
Lokalita objektu
Centrum obce
Vlastnictví
Osobní
Užitná plocha
54 m2
Podlahová plocha
54 m2
Elektřina
230V
Odpad
Veřejná kanalizace
Topení
Lokální elektrické
Telekomunikace
Telefon, Internet
Doprava
Silnice, MHD, Autobus
Voda
Vodovod
Balkon
Výtah

Kontaktovat makléře

Máte zájem o tento byt?

Tímto, v souladu s nařízením Evropského parlamentu a Rady (EU) 2016/679, v platném znění, prohlašuji, že mi je alespoň 16 let a uděluji tak svůj souhlas se zpracováním zadaných údajů (jméno, telefon, e-mail, ip adresa) společnosti B3 Technology, s.r.o., IČ: 07330600, se sídlem Novostavby 126/23, 435 11 Lom (správce dat), za účelem předání dotazu z tohoto formuláře Vámi vybranému inzerentovi a zpětného kontaktování mé osoby. Osobní údaje bude správce zpracovávat manuálně i automaticky přímo prostřednictvím svých zaměstnanců. Informace předané tímto formulářem budou uloženy v databázi správce maximálně po dobu 10 let. Odvolání souhlasu s uložením a zpracováním poskytnutých dat lze e-mailem na info@videobydleni.cz. V případě podezření na neoprávněné použití Vámi poskytnutých údajů máte právo předat podnět k šetření Úřadu pro ochranu osobních údajů. Více informací
Chystáte se prodat nemovitost?
Pomůžeme Vám!

Inzerát si prohlédlo 0 lidí

Prodejce

Bc. Mariyana Vasileva DiS.

Bc. Mariyana Vasileva DiS.

Hlídací pes

Chcete dostávat emailem podobné nabídky prodeje bytů 2+kk?

Podobné nemovitosti


Nevyhovuje Vám typ bytu? Podívejte se na jiné kategorie bytů.


Vybrané články z našeho blogu