Pronájem bytu 2+1, Ostrava, Dr. Martínka, 54 m2 (ID: 4164601)

Dr. Martínka, Ostrava, Hrabůvka

13 500 Kč /za měsíc Získejte výhodnou HYPOTÉKU

(+ zálohy od 2.900 Kč / měs. (včetně elektřiny).)

Prémioví partneři v Ostravě

Informace k bytu

Základní info:
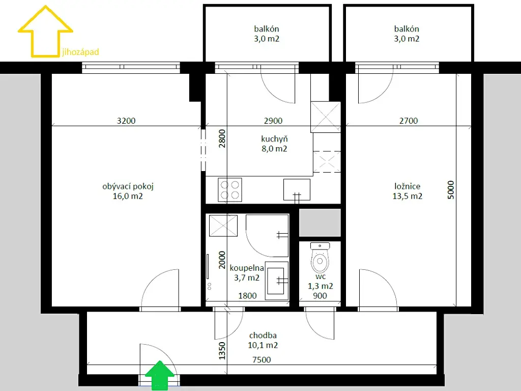
- centrum obvodu Ostrava - Jih
- nově rekonstruovaný byt
- pěkné výhledy ze dvou balkónů
- příznivé měsíční náklady - 13.500 Kč / měs. bez záloh
Dovoluji si Vám předložit nabídku pronájmu útulného bytu 2+1. Byt je aktuálně po nové a velmi vkusné kompletní rekonstrukci. V kuchyňské lince na míru jsou vestavěné spotřebiče: myčka, el. varná deska, el. trouba, digestoř, mikrovlná trouby a lednice s mrazákem (kuchyňská linka je ještě před dokončením). Byt je dobře dispozičně řešený – oba obytné pokoje jsou samostatně přístupné z předsíně, na větší pokoj navazuje kuchyně. Předsíň je velice prostorná a umožní budoucím obyvatelům bytu umístění velkých šatních skříní. Koupelna a záchod jsou oddělené a velice vkusně rekonstruovány. V koupelně je k dispozici nová automatická pračka. V bytě jsou dokonce 2 balkóny, které umožňují daleké výhledy, mj. na hory. Okna i balkóny jsou orientovány k jihozápadu. Dveře do bytu jsou bezpečnostní. Dům je po celkové revitalizaci, jsou v něm 2 výtahy a je bezbariérový.
Lokalita se vyznačuje vynikající dostupností všech služeb, obchodů a zastávek MHD. V blízkém okolí domu naleznete veškeré služby a obchody, zastávky autobusů i tramvají. V blízkém okolí domu je také poliklinika a různé rekreační zóny. Parkování je možné v okolí domu na velkých parkovištích.
Nájemné ve výši 13.500 Kč / měs. nezahrnuje zálohy na služby ve výši od 2.900 Kč / měs. / 1 osoba. Při každé další osobě se k zálohám připočte 700 Kč / měs. na vodu. Uvedená výše záloh obsahuje také zálohu na elektřinu. Kauce je ve výši 30.000 Kč, administrativní poplatek RK je ve výši 14.000 Kč a zahrnuje veškerý právní servis a navazující služby nájemníkovi (vyúčtování, potvrzení, apod.).
Byt je k dispozici ihned.

Parametry bytu

Cena
13 500 Kč /za měsíc
Poznámka k ceně
+ zálohy od 2.900 Kč / měs. (včetně elektřiny).
Aktualizováno
27. 1. 2026
Adresa
Dr. Martínka, Ostrava, Hrabůvka
Stavba
Panelová
Stav objektu
Po rekonstrukci
Patro
12.
Vlastnictví
Družstevní
Užitná plocha
54 m2
Balkon
Sklep

Kontaktovat makléře

Realitní kancelář

FIREA.CZ, finance a reality

Rekreační 2126/7, Ostrava, Poruba

Chystáte se prodat nemovitost?
Pomůžeme Vám!

Máte zájem o tento byt?

Tímto, v souladu s nařízením Evropského parlamentu a Rady (EU) 2016/679, v platném znění, prohlašuji, že mi je alespoň 16 let a uděluji tak svůj souhlas se zpracováním zadaných údajů (jméno, telefon, e-mail, ip adresa) společnosti B3 Technology, s.r.o., IČ: 07330600, se sídlem Novostavby 126/23, 435 11 Lom (správce dat), za účelem předání dotazu z tohoto formuláře Vámi vybranému inzerentovi a zpětného kontaktování mé osoby. Osobní údaje bude správce zpracovávat manuálně i automaticky přímo prostřednictvím svých zaměstnanců. Informace předané tímto formulářem budou uloženy v databázi správce maximálně po dobu 10 let. Odvolání souhlasu s uložením a zpracováním poskytnutých dat lze e-mailem na info@videobydleni.cz. V případě podezření na neoprávněné použití Vámi poskytnutých údajů máte právo předat podnět k šetření Úřadu pro ochranu osobních údajů. Více informací
Chystáte se prodat nemovitost?
Pomůžeme Vám!

Inzerát si prohlédlo 0 lidí

Prodejce

Cakl Marek

Cakl Marek

Hlídací pes

Chcete dostávat emailem podobné nabídky pronájmu bytů 2+1 v Ostravě?

Podobné nemovitosti


Nevyhovuje Vám typ bytu? Podívejte se na jiné kategorie bytů.


Vybrané články z našeho blogu