Prodej bytu 2+kk, Nymburk, V Kolonii, 62 m2 (ID: 4164649)

V Kolonii, Nymburk

6 397 000 Kč /za nemovitost HYPOTÉKA od 28 591 Kč /za měsíc
Prémioví partneři v Nymburku

Informace k bytu

Právě zrekonstruovaný slunný a vzdušný byt 2kk s vlastním garážovým stáním na jedné z nejžádanějších adres v Nymburce čeká na nového majitele.

V minulých měsících prošel náročnou rekonstrukcí. Nové a upravené jsou instalace vody, odpadů i elektro. Na podlaze je položen zátěžový vinyl o tloušťce desek 8mm, v koupelně a na WC je keramická dlažba a obklady. V koupelně je příprava pro pračku se sušičkou. Celý byt je vybaven nadstandardním množstvím zásuvek 230V. Dále nabídne mimo komory mnoho dalších míst pro úložné prostory (chodba, ložnice). Dům samotný je po rekonstrukci v letech 2021/2022 kompletně zateplen včetně střechy. Původní okna byla vyměněna za nová s izolačními trojskly. V 12/2025 proběhla generální oprava/výměna vodovodních a odpadních stoupaček.

Kuchyň byla vyrobena na zakázku (německý výrobce PINO/Nobilia) s vestavěnými spotřebiči Candy/Hoover včetně myčky nádobí a lednice s mrazničkou. Dále nabízí indukční varnou desku, horkovzdušnou troubu, odsavač par a množství úložných prostor.

Velkým benefitem je kvalitní a tichá klimatizace Mitsubishi Electric v obou pokojích, se kterou je možné v případě potřeby i topit.

K bytu náleží parkovací stání v podzemních garážích a sklepní kóje.

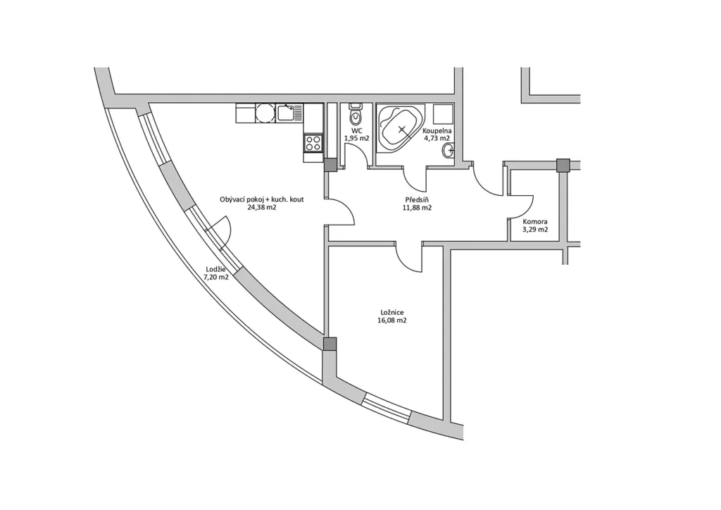
Dispozice a podlahová plocha:
Obývací pokoj s kk 24,38m2, ložnice 16,08m2, předsíň 11,88m2, koupelna 4,73m2, WC 1,95m, komora 3,29m2, lodžie 7,2m2, sklepní kóje 2,8m2. CELKEM 72,31m2.

Jsem přímý majitel, neplatíte provizi! Cena je včetně právního servisu.

Přijďte se podívat na svůj nový DOMOV, rádi Vás uvidíme.

Parametry bytu

Cena
6 397 000 Kč /za nemovitost Spočítat hypotéku
Aktualizováno
27. 1. 2026
Adresa
V Kolonii, Nymburk
Stavba
Cihlová
Stav objektu
Velmi dobrý
Patro
3.
Vybaveno
Částečně
Vlastnictví
Osobní
Užitná plocha
62 m2
Podlahová plocha
72 m2
Třída energetické náročnosti
C - Úsporná
Ukazatel energetické náročnosti
82 kWh/m2 za rok
Elektřina
230V, 400V
Odpad
Veřejná kanalizace
Voda
Vodovod
Zdroj topení
Ústřední dálkové
Sklep
Lodžie
Výtah
Bezbarierový přístup
Parkování

Kontaktovat makléře

Máte zájem o tento byt?

Tímto, v souladu s nařízením Evropského parlamentu a Rady (EU) 2016/679, v platném znění, prohlašuji, že mi je alespoň 16 let a uděluji tak svůj souhlas se zpracováním zadaných údajů (jméno, telefon, e-mail, ip adresa) společnosti B3 Technology, s.r.o., IČ: 07330600, se sídlem Novostavby 126/23, 435 11 Lom (správce dat), za účelem předání dotazu z tohoto formuláře Vámi vybranému inzerentovi a zpětného kontaktování mé osoby. Osobní údaje bude správce zpracovávat manuálně i automaticky přímo prostřednictvím svých zaměstnanců. Informace předané tímto formulářem budou uloženy v databázi správce maximálně po dobu 10 let. Odvolání souhlasu s uložením a zpracováním poskytnutých dat lze e-mailem na info@videobydleni.cz. V případě podezření na neoprávněné použití Vámi poskytnutých údajů máte právo předat podnět k šetření Úřadu pro ochranu osobních údajů. Více informací
Chystáte se prodat nemovitost?
Pomůžeme Vám!

Inzerát si prohlédlo 0 lidí

Prodejce

Ondřej Rudolf

Ondřej Rudolf

Hlídací pes

Chcete dostávat emailem podobné nabídky prodeje bytů 2+kk v Nymburku?

Podobné nemovitosti


Nevyhovuje Vám typ bytu? Podívejte se na jiné kategorie bytů.


Vybrané články z našeho blogu