Prodej chaty, Seč, 74 m2 (ID: 4165130)

Seč, Hoješín

3 690 000 Kč /za nemovitost HYPOTÉKA od 16 492 Kč /za měsíc
Prémioví partneři v Seči

Informace k domu

Rádi byste bydli ve své vysněné chatě s nádherným výhledem na přehradu Seč? Exkluzivně Vám nabízím jedinečnou příležitost stát se majitelem zděné chaty v malebné obci Hoješín, která se pyšní prostorným uspořádáním 4+kk a malou zahradou. Z chaty je nádherný výhled na vodní plochu přehradní nádrže Seč, včetně pohledu na druhou stranu přehrady, kde se nachází část zvaná Ústupky.
Chata je vybavena všemi potřebnými inženýrskými sítěmi, včetně elektřiny a vody, což zajišťuje pohodlné bydlení po celý rok. Splachovací WC a vana přidává na komfortu a praktičnosti. V přízemí se nacházejí zděné podlahy, které dodávají prostoru elegantní vzhled a snadnou údržbu. V zimních měsících oceníte vytápění krbovými kamny, které vytvoří příjemnou atmosféru a útulnost. K dispozici je také vyvážecí žumpa, což zajišťuje bezproblémové odpadové hospodářství. V obci se navíc třídí odpad, což přispívá k ekologickému životnímu stylu.
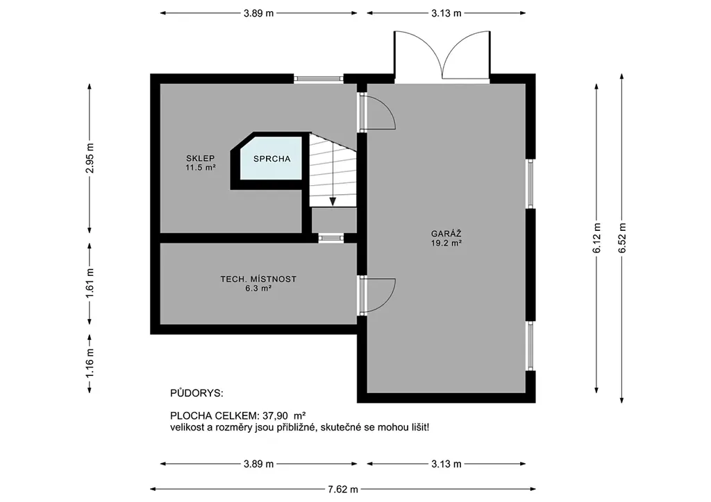
Součástí chaty je také dílna o velikosti 20 m2 a sklad o rozloze 14 m2, což poskytuje dostatek prostoru pro Vaše koníčky a úložné potřeby. Chata se navíc nabízí včetně vybavení, takže se můžete ihned nastěhovat a začít si užívat klidného bydlení. Tato nemovitost je ideální volbou pro ty, kteří hledají klidné místo k odpočinku, ale zároveň chtějí mít blízko k přírodě a možnostem rekreace. V okolí se nachází mnoho turistických a cyklistických tras, které Vás zavedou do nádherné krajiny. Nezmeškejte tuto skvělou příležitost a přijďte se podívat na svou novou chatu, kde si můžete splnit své sny o dokonalém bydlení u vody.

Parametry domu

Cena
3 690 000 Kč /za nemovitost Spočítat hypotéku
Aktualizováno
28. 1. 2026
Adresa
Seč, Hoješín
ID
13025
Stavba
Cihlová
Stav objektu
Dobrý
Vybaveno
Ano
Druh objektu
Samostatný
Lokalita objektu
Klidná část obce
Užitná plocha
74 m2
Zastavěná plocha
52 m2
Podlahová plocha
112 m2
Plocha pozemku
227 m2
Plocha zahrady
175 m2
Třída energetické náročnosti
G - Mimořádně nehospodárná
Elektřina
230V
Odpad
Veřejná kanalizace
Komunikace
Asfaltová
Telekomunikace
Satelit
Doprava
Silnice, Autobus
Voda
Vodovod
Topné těleso
Přímotop, Krbová kamna
Zdroj topení
Přímotop, Krbová kamna
Zdroj teplé vody
Bojler - elektro
Sklep
Výtah

Kontaktovat makléře

Realitní kancelář

Garanční fond bydlení

Palackého třída 801, Chrudim III

Chystáte se prodat nemovitost?
Pomůžeme Vám!

Máte zájem o tento dům?

Tímto, v souladu s nařízením Evropského parlamentu a Rady (EU) 2016/679, v platném znění, prohlašuji, že mi je alespoň 16 let a uděluji tak svůj souhlas se zpracováním zadaných údajů (jméno, telefon, e-mail, ip adresa) společnosti B3 Technology, s.r.o., IČ: 07330600, se sídlem Novostavby 126/23, 435 11 Lom (správce dat), za účelem předání dotazu z tohoto formuláře Vámi vybranému inzerentovi a zpětného kontaktování mé osoby. Osobní údaje bude správce zpracovávat manuálně i automaticky přímo prostřednictvím svých zaměstnanců. Informace předané tímto formulářem budou uloženy v databázi správce maximálně po dobu 10 let. Odvolání souhlasu s uložením a zpracováním poskytnutých dat lze e-mailem na info@videobydleni.cz. V případě podezření na neoprávněné použití Vámi poskytnutých údajů máte právo předat podnět k šetření Úřadu pro ochranu osobních údajů. Více informací
Chystáte se prodat nemovitost?
Pomůžeme Vám!

Inzerát si prohlédlo 0 lidí

Prodejce

Eva Kálecká

Eva Kálecká

Hlídací pes

Chcete dostávat emailem podobné nabídky prodeje chat v Seči (okr. Chrudim)?

Top nabídky

Podobné nemovitosti


Nevyhovuje Vám typ domu? Podívejte se na jiné kategorie domů.


Vybrané články z našeho blogu