Prodej bytu 3+kk, Židlochovice, Masarykova, 56 m2

Masarykova, Židlochovice

7 381 000 Kč /za nemovitost HYPOTÉKA od 32 989 Kč /za měsíc

(včetně provize, včetně právního servisu)

Prémioví partneři v Židlochovicích

Informace k bytu

Nabízíme k prodeji moderní novostavbu bytu 3+kk v Židlochovicích u Brna. Tento byt kombinuje promyšlenou dispozici s nejmodernějšími technologiemi, které vám zajistí nízké náklady a maximální pohodlí.

Klíčové parametry bytu:
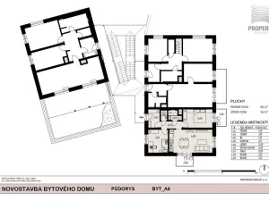
• Plocha: Podlahová plocha 60,5 m² (užitná plocha 56,4 m²).
• Dispoziční řešení: Neprůchozí pokoje, samostatná koupelna se sprchovým koutem, WC zvlášť
• Balkóny: Byt disponuje dvěma balkóny, které jsou ideální pro ranní kávu i večerní relaxaci.
• Technologie: Energeticky úsporné vytápění i chlazení tepelným čerpadlem Viessmann a komfortní podlahové vytápění.
• Smart standard: Příprava pro elektrické předokenní žaluzie pro dokonalé soukromí a termoregulaci.

K bytu je možné dokoupit vlastní venkovní parkovací stání, což vám zajistí bezpečné a pohodlné parkování hned u domu. Praktická sklepní kóje je již ve standardu.

Rezidence „Za Zubárnou“ se nachází v klidné části Židlochovic, jen pár kroků od centra. Město nabízí kompletní občanskou vybavenost (mateřská i základní škola, gymnázium, komplexní lékařskou péči i obchody - Lidl, Penny, Teta) a perfektní spojení do Brna (vlakem i autem). K relaxaci a sportu vybízí okolní příroda – můžete využít turistické a cyklistické trasy, včetně Velkopavlovické vinařské stezky a blízkosti naučné stezky Krajinou Výhonu.

Fotodokumentace zobrazuje aktuální a reálný stav. Půdorys je nezávazný, stejně jako vizualizace předestírající možnost zařízení jednotlivých místností. Předpokládaná kolaudace a předání hotových jednotek je plánováno na léto 2026. K zajištění financování koupě tohoto bytu jsme připraveni rychle a výhodně prodat nebo vykoupit vaši stávající nemovitost, popř. pomoci vyřídit hypotéku. Pro více informací kontaktujte uvedeného makléře.

Parametry bytu

Cena
7 381 000 Kč /za nemovitost Spočítat hypotéku
Poznámka k ceně
včetně provize, včetně právního servisu
Aktualizováno
28. 1. 2026
Adresa
Masarykova, Židlochovice
ID
03773
Stavba
Cihlová
Stav objektu
Ve výstavbě
Patro
3. z 3
Vybaveno
Ne
Lokalita objektu
Centrum obce
Vlastnictví
Osobní
Užitná plocha
56 m2
Třída energetické náročnosti
B - Velmi úsporná
Ukazatel energetické náročnosti
63.5 kWh/m2 za rok
Elektřina
230V
Odpad
Veřejná kanalizace
Komunikace
Dlážděná, Asfaltová
Telekomunikace
Internet, Ostatní
Doprava
Vlak, Silnice, Autobus
Voda
Vodovod
Topné těleso
Podlahové vytápění
Zdroj topení
Tepelné čerpadlo
Zdroj teplé vody
Tepelné čerpadlo
Balkon
Sklep
Výtah

Kontaktovat makléře

Realitní kancelář

PROPERIA GROUP, s.r.o.

Máchova 1301/2, Brno, Královo Pole

Chystáte se prodat nemovitost?
Pomůžeme Vám!

Máte zájem o tento byt?

Tímto, v souladu s nařízením Evropského parlamentu a Rady (EU) 2016/679, v platném znění, prohlašuji, že mi je alespoň 16 let a uděluji tak svůj souhlas se zpracováním zadaných údajů (jméno, telefon, e-mail, ip adresa) společnosti B3 Technology, s.r.o., IČ: 07330600, se sídlem Novostavby 126/23, 435 11 Lom (správce dat), za účelem předání dotazu z tohoto formuláře Vámi vybranému inzerentovi a zpětného kontaktování mé osoby. Osobní údaje bude správce zpracovávat manuálně i automaticky přímo prostřednictvím svých zaměstnanců. Informace předané tímto formulářem budou uloženy v databázi správce maximálně po dobu 10 let. Odvolání souhlasu s uložením a zpracováním poskytnutých dat lze e-mailem na info@videobydleni.cz. V případě podezření na neoprávněné použití Vámi poskytnutých údajů máte právo předat podnět k šetření Úřadu pro ochranu osobních údajů. Více informací
Chystáte se prodat nemovitost?
Pomůžeme Vám!

Inzerát si prohlédlo 0 lidí

Prodejce

Ing. Jan Kejduš

Ing. Jan Kejduš

Hlídací pes

Chcete dostávat emailem podobné nabídky prodeje bytů 3+kk v Židlochovicích?

Podobné nemovitosti


Nevyhovuje Vám typ bytu? Podívejte se na jiné kategorie bytů.


Vybrané články z našeho blogu