Prodej bytu 3+1, Ostrava, Bohumíra Četyny, 65 m2

Bohumíra Četyny, Ostrava, Bělský Les

Cena na vyžádání /za nemovitost Získejte výhodnou HYPOTÉKU

(volejte makléři, včetně provize, včetně právního servisu)

Prémioví partneři v Ostravě

Informace k bytu

Vážení klienti, nabízíme Vám útulný byt 3+1 v oblíbené lokalitě v Ostravě - Bělském Lese.

Nacházíme se na adrese Bohumíra Četyny. Lokalita je známá svojí výbornou dostupností. Výhodou je také kompletní občanská vybavenost. V místě se nachází nejen škola, školka, obchody a služby, ale také zastávka tramvaje a autobusu.

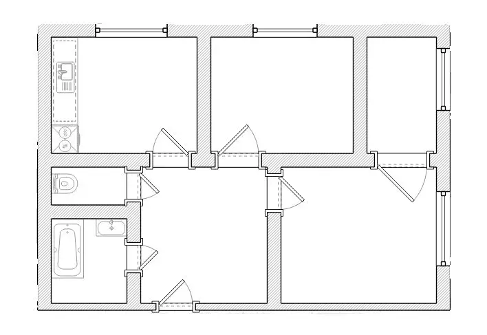
Předmětem prodeje je byt o dispozici 3+1 o užitné ploše 65 m², který se nachází v 15. nadzemním podlaží panelového domu. Ten prošel revitalizací, která zahrnovala nový výtah, výměnu střechy a oken. Orientace oken je na severovýchod a jihovýchod.

Dispozice jednotky tvoří prostorově komfortní předsíň z níž se vchází do jednotlivých pokojů a dále pak do koupelny a na samostatnou toaletu.

Dominantou bytu je velký obývací pokoj orientovaný na jihovýchodní stranu s dostatkem místa pro sedací soupravu, komoru, televizní stěnu. Ten je průchozí do útulné pracony.

Vytápění je dálkové, přenos zajišťují radiátory. Ohřev vody je také zajištěn dálkově.

K bytové jednotce náleží sklepní komora 1,8 m² v suterénu domu a dále vlastní skladovací komora přes chodbu naproti bytu o ploše 1,4 m². Parkování zajišťuje parkoviště přímo před domem.

Byt je vhodný jak pro zájemce, kteří hledají prostorné a velmi klidné bydlení pro celou rodinu, tak i pro investory, kteří hledají vhodný byt k pronájmu. To vše v lokalitě s plnou občanskou vybaveností,

Pro více informací či sjednání prohlídky, kontaktujte prosím makléře Pavla Indráka.

Parametry bytu

Cena
Cena na vyžádání Spočítat hypotéku
Poznámka k ceně
volejte makléři, včetně provize, včetně právního servisu
Aktualizováno
28. 1. 2026
Adresa
Bohumíra Četyny, Ostrava, Bělský Les
ID
00191
Stavba
Panelová
Stav objektu
Dobrý
Patro
15. z 17
Vybaveno
Částečně
Lokalita objektu
Sídliště
Vlastnictví
Osobní
Užitná plocha
65 m2
Podlahová plocha
68 m2
Třída energetické náročnosti
B - Velmi úsporná
Ukazatel energetické náročnosti
83 kWh/m2 za rok
Elektřina
230V
Odpad
Veřejná kanalizace
Komunikace
Betonová, Dlážděná, Asfaltová
Telekomunikace
Internet
Doprava
Silnice, MHD, Autobus
Voda
Vodovod
Topné těleso
Radiátory
Zdroj topení
Centrální dálkové
Zdroj teplé vody
Centrální dálkový ohřev
Sklep
Výtah

Kontaktovat makléře

Realitní kancelář

hanakreality.cz

tř. Kosmonautů 1288/1, Olomouc

Chystáte se prodat nemovitost?
Pomůžeme Vám!

Máte zájem o tento byt?

Tímto, v souladu s nařízením Evropského parlamentu a Rady (EU) 2016/679, v platném znění, prohlašuji, že mi je alespoň 16 let a uděluji tak svůj souhlas se zpracováním zadaných údajů (jméno, telefon, e-mail, ip adresa) společnosti B3 Technology, s.r.o., IČ: 07330600, se sídlem Novostavby 126/23, 435 11 Lom (správce dat), za účelem předání dotazu z tohoto formuláře Vámi vybranému inzerentovi a zpětného kontaktování mé osoby. Osobní údaje bude správce zpracovávat manuálně i automaticky přímo prostřednictvím svých zaměstnanců. Informace předané tímto formulářem budou uloženy v databázi správce maximálně po dobu 10 let. Odvolání souhlasu s uložením a zpracováním poskytnutých dat lze e-mailem na info@videobydleni.cz. V případě podezření na neoprávněné použití Vámi poskytnutých údajů máte právo předat podnět k šetření Úřadu pro ochranu osobních údajů. Více informací
Chystáte se prodat nemovitost?
Pomůžeme Vám!

Inzerát si prohlédlo 1 lidí

Prodejce

Bc. Pavel Indrák

Bc. Pavel Indrák

Hlídací pes

Chcete dostávat emailem podobné nabídky prodeje bytů 3+1 v Ostravě?

Podobné nemovitosti


Nevyhovuje Vám typ bytu? Podívejte se na jiné kategorie bytů.


Vybrané články z našeho blogu