Pronájem kanceláře, Brno, 1020 m2

Brno, Dolní Heršpice

200 Kč /za metr čtvereční / měsíc Získejte výhodnou HYPOTÉKU

(+ energie dle vlastní spotřeby a služby 55 Kč/m²/měsíc + dph, bez DPH)

Prémioví partneři v Brně

Informace k nemovitosti

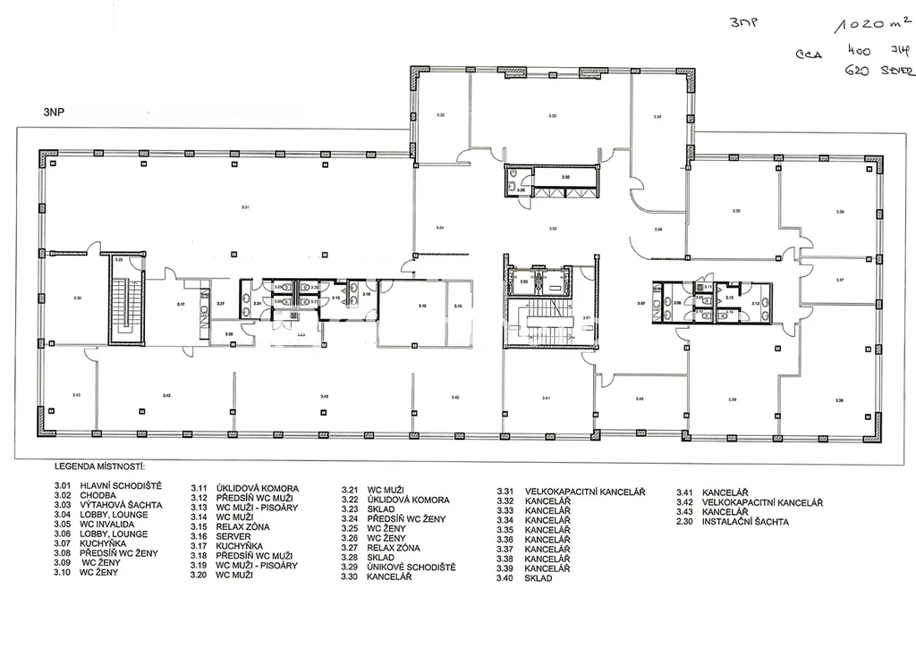
Nabízíme k pronájmu reprezentativní kancelářské podlaží, které prošlo z většinové části nadstandardními úpravami ve spolupráci s renovovanou interiérovou architektonickou firmou (prosklené jednací místnosti, vstupní recepční prostor s neformální jednací zónou apod.)
Celé podlaží má výměru 1020m2 a je kombinací jednotlivých kanceláří, jednacích místností a open space prostoru. Kuchyňky i sociální zázemí jsou umístěny ve dvou místech na podlaží.
Majitel objektu se nebrání dělení na dvě samostatné jednotky o velikosti 400m2 a 680m2, vždy se samostatnou kuchyňkou a sociálním zázemím. Více napoví přiložený půdorys.

Více informací Vám rádi poskytneme v RK.

Parametry nemovitosti

Cena
200 Kč /za metr čtvereční / měsíc
Poznámka k ceně
+ energie dle vlastní spotřeby a služby 55 Kč/m²/měsíc + dph, bez DPH
Aktualizováno
28. 1. 2026
Adresa
Brno, Dolní Heršpice
ID
000066-8
Stavba
Cihlová
Stav objektu
Velmi dobrý
Patro
3. z 5
Vybaveno
Ano
Užitná plocha
1020 m2
Podlahová plocha
1020 m2
Třída energetické náročnosti
G - Mimořádně nehospodárná
Elektřina
230V, 400V
Odpad
Veřejná kanalizace
Komunikace
Dlážděná, Asfaltová
Telekomunikace
Telefon, Internet, Ostatní
Doprava
Dálnice, Silnice, MHD, Autobus
Voda
Vodovod
Výtah
Bezbarierový přístup
Parkování

Kontaktovat makléře

Realitní kancelář

BC Commerce

U Leskavy 731/34, Brno, Starý Lískovec

Chystáte se prodat nemovitost?
Pomůžeme Vám!

Máte zájem o tuto nemovistost?

Tímto, v souladu s nařízením Evropského parlamentu a Rady (EU) 2016/679, v platném znění, prohlašuji, že mi je alespoň 16 let a uděluji tak svůj souhlas se zpracováním zadaných údajů (jméno, telefon, e-mail, ip adresa) společnosti B3 Technology, s.r.o., IČ: 07330600, se sídlem Novostavby 126/23, 435 11 Lom (správce dat), za účelem předání dotazu z tohoto formuláře Vámi vybranému inzerentovi a zpětného kontaktování mé osoby. Osobní údaje bude správce zpracovávat manuálně i automaticky přímo prostřednictvím svých zaměstnanců. Informace předané tímto formulářem budou uloženy v databázi správce maximálně po dobu 10 let. Odvolání souhlasu s uložením a zpracováním poskytnutých dat lze e-mailem na info@videobydleni.cz. V případě podezření na neoprávněné použití Vámi poskytnutých údajů máte právo předat podnět k šetření Úřadu pro ochranu osobních údajů. Více informací
Chystáte se prodat nemovitost?
Pomůžeme Vám!

Inzerát si prohlédlo 0 lidí

Prodejce

Mgr. Ilona Van Der Wal

Mgr. Ilona Van Der Wal

Hlídací pes

Chcete dostávat emailem podobné nabídky pronájmu kanceláří v Brně?

Podobné nemovitosti


Nevyhovuje Vám typ nemovitosti? Podívejte se na jiné kategorie komerčních.


Vybrané články z našeho blogu