Soccer reality

Prodej bytu 2+kk, Křížkový Újezdec, 46 m2 (ID: 4166611)

Křížkový Újezdec, Čenětice

6 350 000 Kč /za nemovitost HYPOTÉKA od 28 381 Kč /za měsíc
Prémioví partneři v Křížkovém Újezdci

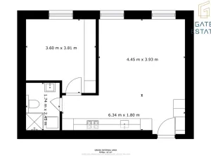
Informace k bytu

Nabízíme k prodeji prémiový byt 2+kk o ploše 46 m² v oblíbené lokalitě Čenětice – Křížkový Újezdec. Byt se nachází v nově zrekonstruované stavbě, a je ideální volbou pro ty, kteří hledají klidné bydlení s výbornou dostupností do Prahy (kolaudace bytu rok 2021) .

Hlavní přednosti bytu:

- dispozice 2+kk, celková plocha 46 m²
- sdílená zahrada
- velká sklepní kóje umístěná na zahradě
- 2 parkovací stání
- byt je částečně vybavený, nábytek na míru s důrazem na kvalitu
- podlahové topení
- rekuperace vzduchu pro zdravé a úsporné bydlení
- lokalita - skvělá vybavenost i pro rodiny s dětmi

Dispozice
- obytný prostor - 24,4 m2
- ložnice - 12,6 m2
- předsíň - 4,8 m2
- koupelna - 4,2 m2
- sklepní kóje 8,2 m2

Byt je situován v klidné rezidenční oblasti s vynikající dopravní dostupností do centra Prahy. V okolí najdete nejen zeleň a prostor pro relaxaci, ale také vybavenost pro rodiny s dětmi. Pár metrů od bytu najdete např. volejbalové hřiště, dětské hřiště, letní kino.

Tato nemovitost nabízí komfortní moderní bydlení ve velmi žádané lokalitě – ideální pro pár, jednotlivce nebo jako investice.

Cena 6 350 000 Kč, včetně provize

Pro více informací nebo domluvení prohlídky mě neváhejte kontaktovat.

Parametry bytu

Cena
6 350 000 Kč /za nemovitost Spočítat hypotéku
Aktualizováno
29. 1. 2026
Adresa
Křížkový Újezdec, Čenětice
ID
123456
Stavba
Smíšená
Stav objektu
Velmi dobrý
Patro
2. z 3
Vybaveno
Částečně
Lokalita objektu
Klidná část obce
Vlastnictví
Osobní
Užitná plocha
46 m2
Zastavěná plocha
194 m2
Podlahová plocha
46 m2
Třída energetické náročnosti
B - Velmi úsporná
Odpad
Veřejná kanalizace
Komunikace
Asfaltová
Voda
Vodovod
Topné těleso
Podlahové vytápění
Zdroj topení
Centrální dálkové
Zdroj teplé vody
Bojler - elektro
Sklep

Kontaktovat makléře

Realitní kancelář

GATE ESTATE

Palackého 859/78, Holešov

Chystáte se prodat nemovitost?
Pomůžeme Vám!

Máte zájem o tento byt?

Tímto, v souladu s nařízením Evropského parlamentu a Rady (EU) 2016/679, v platném znění, prohlašuji, že mi je alespoň 16 let a uděluji tak svůj souhlas se zpracováním zadaných údajů (jméno, telefon, e-mail, ip adresa) společnosti B3 Technology, s.r.o., IČ: 07330600, se sídlem Novostavby 126/23, 435 11 Lom (správce dat), za účelem předání dotazu z tohoto formuláře Vámi vybranému inzerentovi a zpětného kontaktování mé osoby. Osobní údaje bude správce zpracovávat manuálně i automaticky přímo prostřednictvím svých zaměstnanců. Informace předané tímto formulářem budou uloženy v databázi správce maximálně po dobu 10 let. Odvolání souhlasu s uložením a zpracováním poskytnutých dat lze e-mailem na info@videobydleni.cz. V případě podezření na neoprávněné použití Vámi poskytnutých údajů máte právo předat podnět k šetření Úřadu pro ochranu osobních údajů. Více informací
Chystáte se prodat nemovitost?
Pomůžeme Vám!

Inzerát si prohlédlo 0 lidí

Prodejce

Nikola Flek

Nikola Flek

Hlídací pes

Chcete dostávat emailem podobné nabídky prodeje bytů 2+kk v Křížkovém Újezdci?

Podobné nemovitosti


Nevyhovuje Vám typ bytu? Podívejte se na jiné kategorie bytů.


Vybrané články z našeho blogu