Pronájem kanceláře, Praha - Karlín, Ke Štvanici, 1200 m2 (ID: 4167166)

Ke Štvanici, Praha, Karlín

15,9 € /za metr čtvereční / měsíc Získejte výhodnou HYPOTÉKU
Prémioví partneři v Praze 8

Stěhovací služby

Výkup a prodej starého nábytku

Informace k nemovitosti

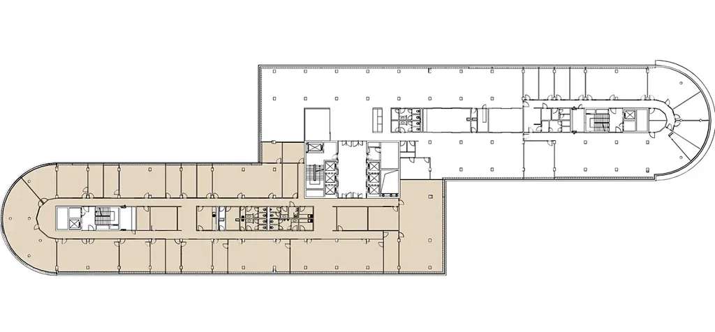
Nabízíme k pronájmu bez provize exkluzivní kancelářské prostory v moderní administrativní budově Diamond Point. Administrativní budova Diamond Point se nachází na rozhraní Prahy 1 a Prahy 8 Karlín, mezi ulicemi Wilsonova a Ke Štvanici naproti hotelu Hilton. Budova nabízí přes 18.000 m2 kanceláří nejvyšší třídy A

Aktuálně volné kancelářské prostory:
3. patro, kanceláře 2 080 m2
5. patro, kanceláře 1 212 m2

Cena pronájmu:
Kanceláře od 15.50 EUR/m2/měsíc
Poplatky od 95,- Kč/m2/měsíc + energie nájemce
Add-on faktor 6,7%
Parkovací místo 130 – 140 EUR/místo/měsíc
Nájemní smlouvy na 3, 5 nebo 7 let. Lze i neplátce DPH.

Pro bližší informace nás neváhejte kontaktovat. Využijte našeho bezplatného poradenství v oblasti pronájmů kancelářských prostor. Rádi Vám zdarma připravíme přehled alternativních nabídek v okolí, nebo v celé Praze. Neplatíte žádné provize. Kompletní přehled volných kanceláří v Praze naleznete na našem webu.

Parametry nemovitosti

Cena
15,9 € /za metr čtvereční / měsíc
Aktualizováno
30. 1. 2026
Adresa
Ke Štvanici, Praha, Karlín
Stavba
Cihlová
Stav objektu
Dobrý
Patro
5.
Užitná plocha
1200 m2
Garáž
Výtah
Bezbarierový přístup
Parkování

Kontaktovat makléře

Máte zájem o tuto nemovistost?

Tímto, v souladu s nařízením Evropského parlamentu a Rady (EU) 2016/679, v platném znění, prohlašuji, že mi je alespoň 16 let a uděluji tak svůj souhlas se zpracováním zadaných údajů (jméno, telefon, e-mail, ip adresa) společnosti B3 Technology, s.r.o., IČ: 07330600, se sídlem Novostavby 126/23, 435 11 Lom (správce dat), za účelem předání dotazu z tohoto formuláře Vámi vybranému inzerentovi a zpětného kontaktování mé osoby. Osobní údaje bude správce zpracovávat manuálně i automaticky přímo prostřednictvím svých zaměstnanců. Informace předané tímto formulářem budou uloženy v databázi správce maximálně po dobu 10 let. Odvolání souhlasu s uložením a zpracováním poskytnutých dat lze e-mailem na info@videobydleni.cz. V případě podezření na neoprávněné použití Vámi poskytnutých údajů máte právo předat podnět k šetření Úřadu pro ochranu osobních údajů. Více informací
Chystáte se prodat nemovitost?
Pomůžeme Vám!

Inzerát si prohlédlo 0 lidí

Prodejce

Magda Bittmanová

Magda Bittmanová

Hlídací pes

Chcete dostávat emailem podobné nabídky pronájmu kanceláří v Praze 8?

Podobné nemovitosti


Nevyhovuje Vám typ nemovitosti? Podívejte se na jiné kategorie komerčních.


Vybrané články z našeho blogu