Prodej bytu 2+kk, Praha, 56 m2 (ID: 4167183)

Praha-Dolní Chabry

7 150 000 Kč /za nemovitost HYPOTÉKA od 31 956 Kč /za měsíc

(Cena neobsahuje parkovací stání v ceně 520tis. v suterénu domu naopak komora v přízemí domu je v ceně)

Prémioví partneři v Praze 8

Stěhovací služby

Výkup a prodej starého nábytku

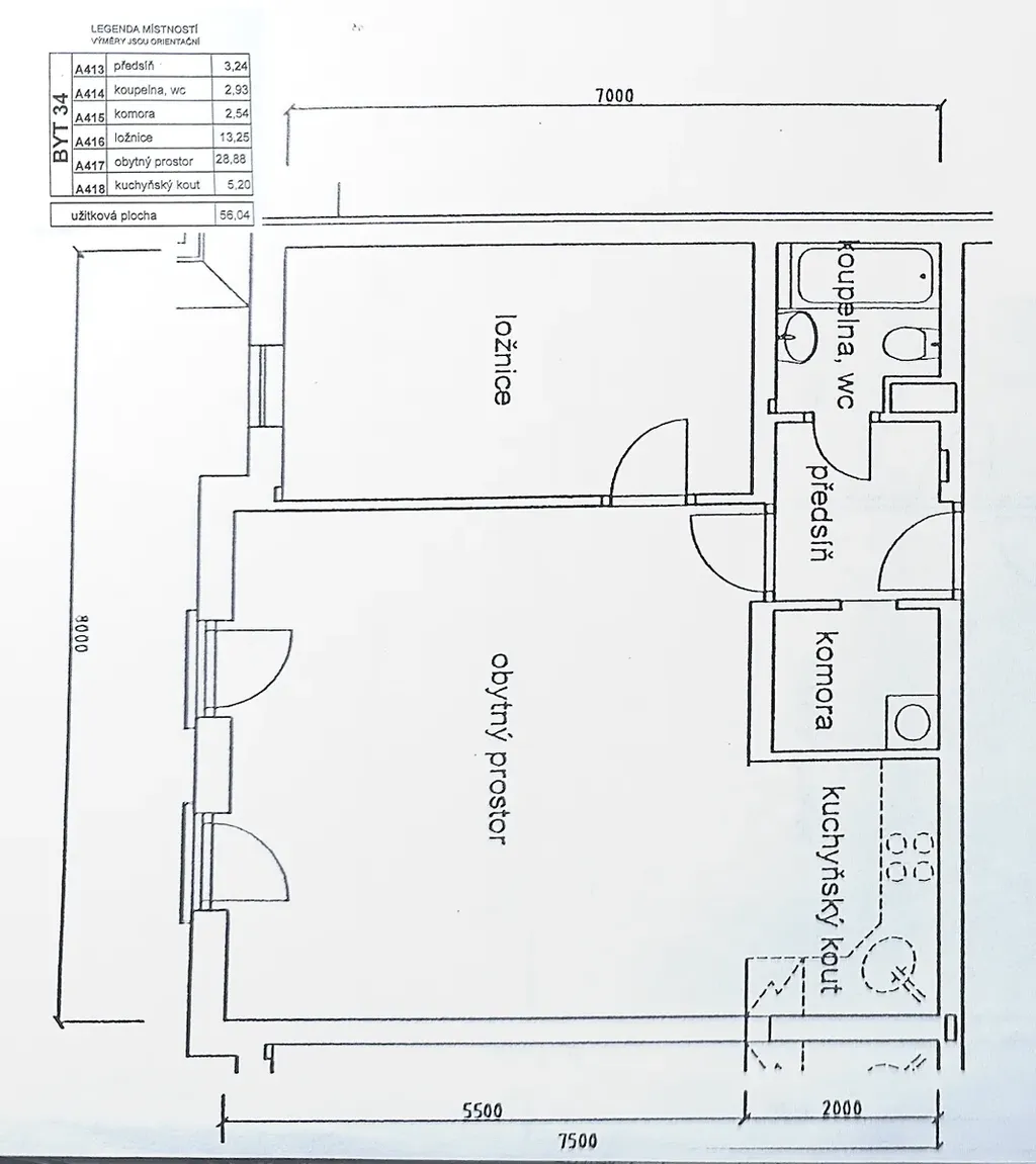
Informace k bytu

Dovolujeme si Vám nabídnout ve výhradním zastoupení ke koupi slunný cihlový byt v osobním vlastnictví, situovaný v novostavbě bytového domu v ulici Spořická v Pražských Dolních Chabrech, Praha 8. Jedná se o byt 2+kk o celkové ploše 58 m², ke kterému náleží samostatná komora. Parkovací stání v garáži umístěné v suterénu domu je za oddělenou cenu 520.000,- Kč. Bytový dům byl postaven v roce 2003 a tvoří zdařilou nárožní stavbu na rohu ulic Spořická a U Václava.
Byt se nachází ve 2. patře z celkem tří pater a je orientován na západ do klidové zástavby s výhledem do Drahaňské rokle.
Konkrétní dispozice Předsíň 3,2 m², Koupelna s vanou a WC 2,9 m²
Ložnice s novým kobercem a vestavěnou skříní – 13,2 m²
Obývací pokoj s kuchyňským koutem – 34,1 m² K bytu rovněž náleží komora v přízemí domu pod uzamčením o velikosti 2,1 m²
V suterénu je k dispozici samostatné parkovací stání, přístupné přes sekční garážová vrata z ulice U Václava
Technické informace, dům je napojen na plynovou kotelnu s ústředním topením a centrálním ohřevem vody
Měsíční náklady na byt činí cca 4 500 Kč, elektřina kolem 1 500 Kč Okna (dvě francouzská) jsou plastová s izolačním dvojsklem a pravouhlým rastrem. Vnitřní parapety lamino, vnější hliníkové. Vstupní dveře foliované do ocelové zárubně, střešní okno dřevěné s izolačním dvojsklem. Vybavení, koupelna: vana, umyvadlo, topný žebřík, vzduchotechnika. Kuchyň: lednice s mrazničkou, místo pro myčku 60 cm, varná deska s troubou, dřez s vodovodní baterií
, kuchyňská linka byla vyrobena na míru a je ve velmi zachovalém stavu. Lokalita a občanská vybavenost
Zastávka MHD přímo před domem (V Kratinach), metro linky C Kobylisy  –  cca 8 minut V okolí: základní škola (přímo naproti domu), dvě mateřské školky, obchod s potravinami přímo v domě, několik restaurací, cukrárna, Billa, lékárna, pošta, zdravotní středisko, služby (kadeřnictví, kosmetika, pedikúra, květiny), autoservis a pneuservis. Rekreační vyžití: Drahaňská rokle, Ďáblický háj, Sokol, fitness, tenis, bowling, jízdárna, fotbalové hřiště SK Dolni Chabry, golfové hřiště ve výstavbě, kulturní akce v Chaberském dvoře. Byt je zcela bez právních závazků, list vlastnictví je čistý a financování hypotékou je bezproblémové. Prohlídky jsou možné po předchozí domluvě.

Parametry bytu

Cena
7 150 000 Kč /za nemovitost Spočítat hypotéku
Poznámka k ceně
Cena neobsahuje parkovací stání v ceně 520tis. v suterénu domu naopak komora v přízemí domu je v ceně
Náklady na bydlení
6000,- Kč měsíční náklady za byt vč. elektřiny
Aktualizováno
30. 1. 2026
Adresa
Praha-Dolní Chabry
ID
01102025
Stavba
Cihlová
Stav objektu
Novostavba
Patro
3.
Vybaveno
Částečně
Lokalita objektu
Klidná část obce
Vlastnictví
Osobní
Užitná plocha
56 m2
Třída energetické náročnosti
C - Úsporná
Elektřina
230V
Odpad
Veřejná kanalizace
Komunikace
Betonová
Telekomunikace
Internet
Doprava
Silnice, MHD, Autobus
Voda
Vodovod
Topné těleso
Radiátory
Zdroj topení
Ústřední dálkové
Zdroj teplé vody
Bojler - elektro
Sklep
Výtah
Bezbarierový přístup
Parkování

Kontaktovat makléře

Realitní kancelář

Diplomat RK, s.r.o.

Ke Džbánu 374/39, Praha, Liboc

Chystáte se prodat nemovitost?
Pomůžeme Vám!

Máte zájem o tento byt?

Tímto, v souladu s nařízením Evropského parlamentu a Rady (EU) 2016/679, v platném znění, prohlašuji, že mi je alespoň 16 let a uděluji tak svůj souhlas se zpracováním zadaných údajů (jméno, telefon, e-mail, ip adresa) společnosti B3 Technology, s.r.o., IČ: 07330600, se sídlem Novostavby 126/23, 435 11 Lom (správce dat), za účelem předání dotazu z tohoto formuláře Vámi vybranému inzerentovi a zpětného kontaktování mé osoby. Osobní údaje bude správce zpracovávat manuálně i automaticky přímo prostřednictvím svých zaměstnanců. Informace předané tímto formulářem budou uloženy v databázi správce maximálně po dobu 10 let. Odvolání souhlasu s uložením a zpracováním poskytnutých dat lze e-mailem na info@videobydleni.cz. V případě podezření na neoprávněné použití Vámi poskytnutých údajů máte právo předat podnět k šetření Úřadu pro ochranu osobních údajů. Více informací
Chystáte se prodat nemovitost?
Pomůžeme Vám!

Inzerát si prohlédlo 0 lidí

Prodejce

Robert Sommer

Robert Sommer

Hlídací pes

Chcete dostávat emailem podobné nabídky prodeje bytů 2+kk v Praze 8?

Podobné nemovitosti


Nevyhovuje Vám typ bytu? Podívejte se na jiné kategorie bytů.


Vybrané články z našeho blogu