Pronájem bytu 2+kk, Homole, Budějovická, 53 m2

Budějovická, Homole

14 000 Kč /za měsíc Získejte výhodnou HYPOTÉKU
Prémioví partneři v Homoli

Výkup a prodej starého nábytku

Informace k bytu

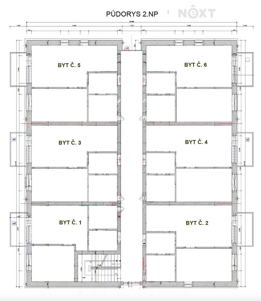
Exkluzivně Vám nabízíme k pronájmu slunný byt 2+kk o celkové užitné ploše 53m2 a balkónem 5m2. Jedná se o novostavbu s nastěhováním od 1.2.2026. Byt se nachází ve velmi žádané a vyhledávané lokalitě. Jedná se o ulici Budějovická v obci Homole. Bytovou jednotku naleznete ve 2. patře zděného domu bez výtahu.
Dispozice bytu: předsíň (5,5m2), koupelna s WC (5,1m2), kuchyňský kout s obývákem (26,3m2), pokoj (15,2m2). V bytě bude k dispozici kuchyňská linka na míru se spotřebiči ve vysoké kvalitě, kvalitní vinylová podlaha, podlahové vytápění s možností vlastní regulace tepla, dřevěné dveře, velkoformátovou dlažbu a obklady. Pro zachování soukromí a klidu jsou v bytě okna s trojsklem a jsou zde i akustické příčky. K bytové jednotce dále náleží jedno parkovací stání před domem. Součástí pronájmu je prostorný sklep o velikosti 3m2, který naleznete v přízemí domu.
Měsíční nájemné činí 14.000,- Kč + záloha na energie cca 2 850,-. Provize RK jeden měsíční nájem +21% DPH. Majitel požaduje 28 000,-Kč vratnou kauci. Preferuje dlouhodobého nájemníka. K nastěhování od 1.2.2026. Pro více informací nás neváhejte kontaktovat. Pro komunikaci uvádějte evidenční číslo zakázky N116017.

Parametry bytu

Cena
14 000 Kč /za měsíc
Aktualizováno
30. 1. 2026
Adresa
Budějovická, Homole
ID
N116017
Stavba
Cihlová
Stav objektu
Novostavba
Patro
2. z 3
Vybaveno
Ne
Lokalita objektu
Klidná část obce
Vlastnictví
Osobní
Užitná plocha
53 m2
Třída energetické náročnosti
G - Mimořádně nehospodárná
Elektřina
230V
Plyn
Plynovod
Odpad
Veřejná kanalizace
Topení
Ústřední plynové
Komunikace
Asfaltová
Doprava
Silnice, MHD
Voda
Vodovod
Balkon
Sklep
Výtah
Bezbarierový přístup
Parkování

Kontaktovat makléře

Máte zájem o tento byt?

Tímto, v souladu s nařízením Evropského parlamentu a Rady (EU) 2016/679, v platném znění, prohlašuji, že mi je alespoň 16 let a uděluji tak svůj souhlas se zpracováním zadaných údajů (jméno, telefon, e-mail, ip adresa) společnosti B3 Technology, s.r.o., IČ: 07330600, se sídlem Novostavby 126/23, 435 11 Lom (správce dat), za účelem předání dotazu z tohoto formuláře Vámi vybranému inzerentovi a zpětného kontaktování mé osoby. Osobní údaje bude správce zpracovávat manuálně i automaticky přímo prostřednictvím svých zaměstnanců. Informace předané tímto formulářem budou uloženy v databázi správce maximálně po dobu 10 let. Odvolání souhlasu s uložením a zpracováním poskytnutých dat lze e-mailem na info@videobydleni.cz. V případě podezření na neoprávněné použití Vámi poskytnutých údajů máte právo předat podnět k šetření Úřadu pro ochranu osobních údajů. Více informací
Chystáte se prodat nemovitost?
Pomůžeme Vám!

Nevyhovuje Vám typ bytu? Podívejte se na jiné kategorie bytů.


Vybrané články z našeho blogu