Pronájem bytu 2+1, Brno, Poznaňská, 54 m2

Poznaňská, Brno, Žabovřesky

17 500 Kč /za měsíc Získejte výhodnou HYPOTÉKU

(+ záloha na energie a služby 4.682,-Kč/měsíc, + provize RK)

Prémioví partneři v Brně

Informace k bytu

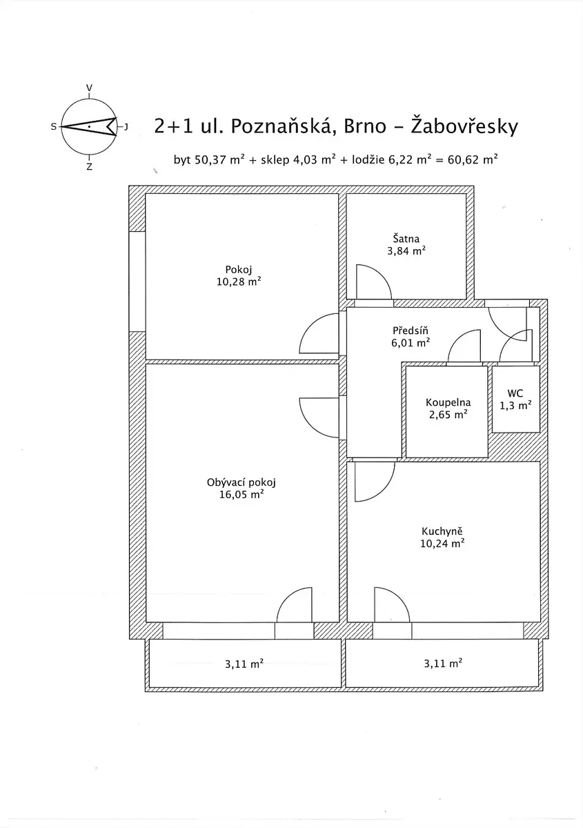
Nabízíme k pronájmu byt o dispozici 2+1, který je umístěný ve 3. patře čtyřpodlažního panelového bytového domu s výtahem na ul. Poznaňská v Brně - Žabovřeskách. Celková podlahová plocha bytu včetně příslušenství činí 54,4 m2 + lodžie 6,22 m2. K bytu náleží sklepní box a dále je možné využívat sušárnu a kolárnu v přízemí domu.
Z předsíně bytu je možné vstoupit samostatně do obou pokojů, kuchyně, šatny, koupelny i na toaletu. Ke kuchyni (10,24 m2) a k obývacímu pokoji (16,05 m2) přiléhají lodžie se zasklením, které jsou orientovány západním směrem s hezkým výhledem do zeleně. Byt je díky své poloze velmi dobře osvětlen. Ložnice (10,28 m2) je orientována na sever. Prostorná šatna (4 m2) je vybavená vestavěnými skříněmi.
Byt je po kompletní rekonstrukci, byla provedena nová elektroinstalace, vybudováno zděné jádro, koupelna je vybavena sprchovým koutem, umyvadlem a je zde prostor pro pračku. Toaleta je umístěna samostatně. Byt je vybaven kuchyňskou linkou, kombinovaný sporákem, klimatizací v obývacím pokoji, osvětlovacími tělesy, garnýžemi, záclonami, horizontálními žaluziemi v oknech a vertikálními žaluziemi na lodžiích. Byt je částečně zařízen nábytkem (jídelní stůl, 3 židle, komoda, konferenční stolek, skříňka pod televizi, pracovní stůl se židlí, šatní skříň v ložnici) - v bytě není veškerý nábytek, který je na fotografiích.
Vytápění bytu probíhá ústředním topením, zdrojem tepla pro vytápění i ohřev vody je výměník v domě a teplo dodávané z kotelny nedaleko domu. V bytě jsou instalovány veškeré měřiče energií.
Bytový dům, ve kterém se byt nachází, prošel celkovou opravou a revitalizací – nová fasáda včetně zateplení, v bytě jsou instalována plastová okna, stupačky vody v plastu, nová střecha, nové vstupní dveře, nové klempířské a zámečnické prvky atp.
Dům je situován v klidné části Žabovřesk, v blízkosti domu je zastávka MHD s přímým spojením do centra města. V nejbližším okolí je veškerá občanská vybavenost (nákupní a kulturní středisko Rubín, zdravotní středisko, restaurace, dětské hřiště, sportoviště, základní i mateřská škola).
Kauce je ve výši jednoho měsíčního nájmu. Byt je vhodný pro jednu až dvě osoby. Byt bude volný k nastěhování od 1. 5. 2026, prohlídky bytu jsou možné ihned.

Parametry bytu

Cena
17 500 Kč /za měsíc
Poznámka k ceně
+ záloha na energie a služby 4.682,-Kč/měsíc, + provize RK
Aktualizováno
31. 1. 2026
Adresa
Poznaňská, Brno, Žabovřesky
ID
01147-2
Stavba
Panelová
Stav objektu
Velmi dobrý
Patro
3.
Vybaveno
Ano
Vlastnictví
Osobní
Užitná plocha
54 m2
Třída energetické náročnosti
C - Úsporná
Ukazatel energetické náročnosti
101 kWh/m2 za rok
Sklep
Lodžie
Výtah

Kontaktovat makléře

Máte zájem o tento byt?

Tímto, v souladu s nařízením Evropského parlamentu a Rady (EU) 2016/679, v platném znění, prohlašuji, že mi je alespoň 16 let a uděluji tak svůj souhlas se zpracováním zadaných údajů (jméno, telefon, e-mail, ip adresa) společnosti B3 Technology, s.r.o., IČ: 07330600, se sídlem Novostavby 126/23, 435 11 Lom (správce dat), za účelem předání dotazu z tohoto formuláře Vámi vybranému inzerentovi a zpětného kontaktování mé osoby. Osobní údaje bude správce zpracovávat manuálně i automaticky přímo prostřednictvím svých zaměstnanců. Informace předané tímto formulářem budou uloženy v databázi správce maximálně po dobu 10 let. Odvolání souhlasu s uložením a zpracováním poskytnutých dat lze e-mailem na info@videobydleni.cz. V případě podezření na neoprávněné použití Vámi poskytnutých údajů máte právo předat podnět k šetření Úřadu pro ochranu osobních údajů. Více informací
Chystáte se prodat nemovitost?
Pomůžeme Vám!

Inzerát si prohlédlo 0 lidí

Prodejce

Mgr. Leona Šnajdarová

Mgr. Leona Šnajdarová

Hlídací pes

Chcete dostávat emailem podobné nabídky pronájmu bytů 2+1 v Brně?

Podobné nemovitosti


Nevyhovuje Vám typ bytu? Podívejte se na jiné kategorie bytů.


Vybrané články z našeho blogu