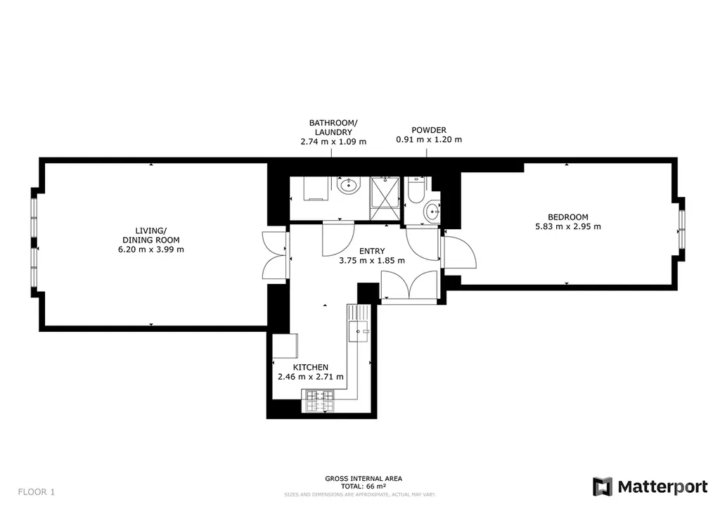
Pronájem bytu 2+kk, Praha - Vinohrady, Třebízského, 63 m2

Třebízského, Praha, Vinohrady

Rezervováno
24 900 Kč /za měsíc Získejte výhodnou HYPOTÉKU

(vratná kauce ve výši dvou měsíčních nájmů + provize za zprostředkování ve výši jednoho nájmu)

Prémioví partneři v Praze 2

Stěhovací služby

Výkup a prodej starého nábytku

Pojištění a finance

Informace k bytu

Hledáte luxusní a světlý byt v centru Prahy? Zde svůj hledáček zaostřete, máme pro vás krásný byt o dispozici 2+kk kousek od Náměstí Míru, v ulici Třebízského. Stanice metra i tramvaje je tedy kousek pěšky od domu, přímo před domem je zastávka autobusu.

Při vstupu do bytu vás uvítá místnost s moderním kuchyňským koutem, kde najdete všechny důležité spotřebiče: myčku, lednici i elektrickou troubu, varnou desku a digestoř. Dostanete se odsud do obou obytných místností, do krásné světlé koupelny i na oddělenou toaletu. V koupelně je pro vás připravena pračka. Celý byt je laděn do světlých odstínů, při jeho vybavování se vám meze klást nebudou. K bytu také náleží nadstandardně velký sklep, který zajistí úložné prostory.

Skvělá lokalita, ve které se tento obytný dům nachází, nabízí veškerou občanskou vybavenost i skvělou dopravní dostupnost. V docházkové vzdálenosti najdete širokou škálu restaurací a barů, obchody, úřady i možnosti sportovního vyžití. Za přírodou se můžete vydat do nedalekých Riegrových sadů, do Grébovky či do Folimanky.
Byt je k nastěhování od března, ale na prohlídku můžete již nyní.

Poplatky vč. elektřiny činí 6 799 Kč měsíčně a jsou zúčtovatelné.
Provize za zprostředkování ve výši jednoho nájmu + DPH.
Vratná kauce ve výši dvou měsíčních nájmů.

Bojíte se, aby vám tato nabídka neunikla? Nyní už nemusíte. Nabízíme vám možnost si byt pronajmout plně online.
Pokud ovšem dáváte přednost osobnímu setkání, neváhejte a domluvte si prohlídku. Těšíme se na setkání s vámi.

Kontaktovat nás můžete v pracovní dny od 9:00 do 17:30

Parametry bytu

Stav
Rezervováno
Cena
24 900 Kč /za měsíc
Poznámka k ceně
vratná kauce ve výši dvou měsíčních nájmů + provize za zprostředkování ve výši jednoho nájmu
Náklady na bydlení
6799 Kč
Aktualizováno
17. 5. 2026
Adresa
Třebízského, Praha, Vinohrady
ID
20160130-3
Stavba
Cihlová
Stav objektu
Velmi dobrý
Patro
3. z 5
Vybaveno
Ne
Lokalita objektu
Centrum obce
Vlastnictví
Osobní
Užitná plocha
63 m2
Třída energetické náročnosti
G - Mimořádně nehospodárná
Elektřina
230V
Plyn
Plynovod
Odpad
Veřejná kanalizace
Komunikace
Betonová, Asfaltová
Doprava
Silnice, MHD, Autobus
Voda
Vodovod
Topné těleso
Radiátory
Zdroj topení
Plynový kotel
Zdroj teplé vody
Plynový kotel
Sklep
Výtah

Kontaktovat makléře

Máte zájem o tento byt?

Tímto, v souladu s nařízením Evropského parlamentu a Rady (EU) 2016/679, v platném znění, prohlašuji, že mi je alespoň 16 let a uděluji tak svůj souhlas se zpracováním zadaných údajů (jméno, telefon, e-mail, ip adresa) společnosti B3 Technology, s.r.o., IČ: 07330600, se sídlem Novostavby 126/23, 435 11 Lom (správce dat), za účelem předání dotazu z tohoto formuláře Vámi vybranému inzerentovi a zpětného kontaktování mé osoby. Osobní údaje bude správce zpracovávat manuálně i automaticky přímo prostřednictvím svých zaměstnanců. Informace předané tímto formulářem budou uloženy v databázi správce maximálně po dobu 10 let. Odvolání souhlasu s uložením a zpracováním poskytnutých dat lze e-mailem na info@videobydleni.cz. V případě podezření na neoprávněné použití Vámi poskytnutých údajů máte právo předat podnět k šetření Úřadu pro ochranu osobních údajů. Více informací
Chystáte se prodat nemovitost?
Pomůžeme Vám!
Theleadway banner

Inzerát si prohlédlo 10 lidí

Prodejce

Michaela Blablová

Michaela Blablová

Hlídací pes

Chcete dostávat emailem podobné nabídky pronájmu bytů 2+kk v Praze 2?

Podobné nemovitosti


Nevyhovuje Vám typ bytu? Podívejte se na jiné kategorie bytů.


Vybrané články z našeho blogu