Prodej pozemku pro bydlení, Starý Kolín, 27971 m2 (ID: 4169151)

Starý Kolín

42 935 485 Kč /za nemovitost HYPOTÉKA od 191 896 Kč /za měsíc
Prémioví partneři v Starém Kolíně

Informace k pozemku

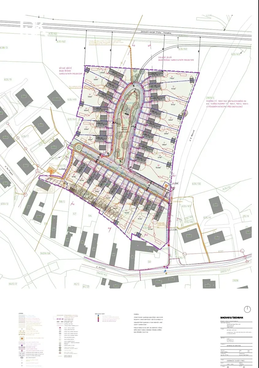
K prodeji je developerský projekt v obci Starý Kolín, 5 minut od města Kolín, připravený k další fázi realizace. Projekt je vhodný pro developera nebo investora hledajícího rychle realizovatelný rezidenční projekt s optimalizovanou hustotou zástavby.

Celková výměra řešeného území činí 27 971 m², z toho 20 565 m² tvoří zastavitelná plocha.

Projekt má vydané pravomocné územní rozhodnutí původně na výstavbu 22 samostatně stojících rodinných domů včetně kompletní infrastruktury, komunikací a dopravního napojení.

V současné době je projekt optimalizován z pohledu návratnosti kapitálu. Nové řešení, které bylo projednáno a schváleno dotčenými orgány, počítá s:
• 14 rodinnými domy
• 8 objekty se dvěma bytovými jednotkami

Celkem tedy 30 prodejných nemovitostí (14 rodinných domů + 16 bytových jednotek), což umožňuje vyšší výnos na m² pozemku, lepší cashflow projektu a rychlejší návratnost investice oproti původní koncepci.

Z technického hlediska je projekt připraven k realizaci:
• zpracovaná dokumentace přeložky VN
• schválené umístění trafostanice společností ČEZ
• zajištěné připojení na vodohospodářskou infrastrukturu
• kladný postoj obce k realizaci projektu

Projekt lze převést:
• v aktuální fázi s vydaným územním rozhodnutím,
• případně včetně zajištění stavebního povolení, dle dohody s investorem.

Jedná se o projekt v pokročilé fázi přípravy, který umožňuje investorovi okamžitý vstup do realizace bez časových ztrát spojených s povolovacími procesy, s jasně definovaným rozsahem a potenciálem dalšího zhodnocení.

Parametry pozemku

Cena
42 935 485 Kč /za nemovitost Spočítat hypotéku
Aktualizováno
1. 2. 2026
Adresa
Starý Kolín
ID
0449
Lokalita objektu
Klidná část obce
Plocha pozemku
27971 m2
Elektřina
230V
Odpad
Veřejná kanalizace
Komunikace
Dlážděná, Asfaltová
Doprava
Vlak, Dálnice, Silnice, MHD

Kontaktovat makléře

Realitní kancelář

RK Kotek

Kutnohorská 31, Kolín

Chystáte se prodat nemovitost?
Pomůžeme Vám!

Máte zájem o tento pozemek?

Tímto, v souladu s nařízením Evropského parlamentu a Rady (EU) 2016/679, v platném znění, prohlašuji, že mi je alespoň 16 let a uděluji tak svůj souhlas se zpracováním zadaných údajů (jméno, telefon, e-mail, ip adresa) společnosti B3 Technology, s.r.o., IČ: 07330600, se sídlem Novostavby 126/23, 435 11 Lom (správce dat), za účelem předání dotazu z tohoto formuláře Vámi vybranému inzerentovi a zpětného kontaktování mé osoby. Osobní údaje bude správce zpracovávat manuálně i automaticky přímo prostřednictvím svých zaměstnanců. Informace předané tímto formulářem budou uloženy v databázi správce maximálně po dobu 10 let. Odvolání souhlasu s uložením a zpracováním poskytnutých dat lze e-mailem na info@videobydleni.cz. V případě podezření na neoprávněné použití Vámi poskytnutých údajů máte právo předat podnět k šetření Úřadu pro ochranu osobních údajů. Více informací
Chystáte se prodat nemovitost?
Pomůžeme Vám!

Inzerát si prohlédlo 1 lidí

Prodejce

Roman Kotek

Roman Kotek

Hlídací pes

Chcete dostávat emailem podobné nabídky prodeje pozemků pro bydlení v Starém Kolíně?

Podobné nemovitosti


Nevyhovuje Vám typ pozemku? Podívejte se na jiné kategorie pozemků.


Vybrané články z našeho blogu