Prodej obchodního prostoru, Ostrava, U Staré elektrárny, 139 m2

U Staré elektrárny, Slezská Ostrava

7 645 000 Kč /za nemovitost HYPOTÉKA od 34 169 Kč /za měsíc
Prémioví partneři v Ostravě

Informace k nemovitosti

Exkluzivně Vám nabízíme ke koupi obchodní a administrativní prostory situované nedaleko centra Ostravy.

Koupě těchto prostor představuje výbornou investiční příležitost, jsou vhodné pro sídlo firmy, kanceláře, ordinace, showroom či obchodní provoz.

Parkování je zajištěno na vlastním pozemku přímo v areálu - k této jednotce jsou vyhrazená 2 parkovací stání + lze parkovat také přímo před jednotlivými obchodními jednotkami.

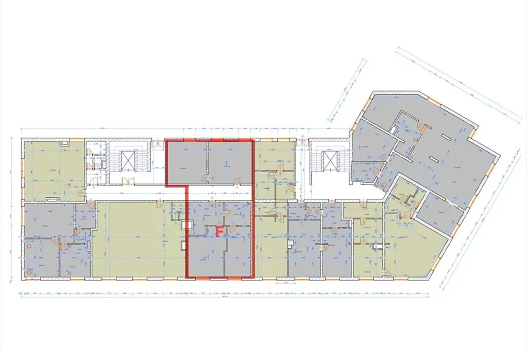
Zde se jedná o prostor pod písmenem F- 139m2.

Dispozice a výměry jednotlivých jednotek, které je možno koupit:

1. nadzemní podlaží (1. NP):
- jednotka A 57 m2
- jednotka B 63 m2
- jednotka C 108 m2
- jednotka D 61 m2
- jednotka E 121 m2

2. nadzemní podlaží (2.NP)
- jednotka F 139 m2 (tuto nebytovou jednotku je možno změnit na bytovou jednotku)

Technický stav a vybavení:
- v celém objektu jsou hliníková okna a dveře
- podlahové krytiny (dlažba, PVC)
- objekt je udržovaný s možností okamžitého využití
- vytápění pomocí elektrických přímotopů

Další výhody:
- výborná dostupnost do centra Ostravy
- možnost rozdělení prostor pro více nájemců
- vhodné pro kombinaci podnikání a bydlení

Cena a prohlídky:
Pro více informací či sjednání osobní prohlídky kontaktujte naši realitní makléřku, která Vám ráda poskytne veškeré podrobnosti.

Rádi Vám pomůžeme také s financováním této nemovitosti zajistíme pro Vás výhodné hypoteční nebo úvěrové podmínky a kompletní servis.

Majitel si vyhrazuje právo vybrat kupujícího na základě jím zvolených kritérií. Veškeré zveřejněné údaje obsažené v tomto inzerátu mají pouze informativní charakter a nejsou nabídkou ve smyslu § 1731 nebo § 1732 občanského zákoníku, ani se nejedná o veřejný příslib dle § 1733 občanského zákoníku.

Parametry nemovitosti

Cena
7 645 000 Kč /za nemovitost Spočítat hypotéku
Aktualizováno
10. 2. 2026
Adresa
U Staré elektrárny, Slezská Ostrava
ID
304
Stavba
Cihlová
Stav objektu
Velmi dobrý
Užitná plocha
139 m2
Třída energetické náročnosti
B - Velmi úsporná
Elektřina
230V
Odpad
Veřejná kanalizace
Topení
Lokální elektrické
Telekomunikace
Internet
Doprava
Silnice, MHD, Autobus
Voda
Vodovod
Topné těleso
Přímotop
Zdroj topení
Přímotop
Výtah
Bezbarierový přístup
Parkování

Kontaktovat makléře

Máte zájem o tuto nemovistost?

Tímto, v souladu s nařízením Evropského parlamentu a Rady (EU) 2016/679, v platném znění, prohlašuji, že mi je alespoň 16 let a uděluji tak svůj souhlas se zpracováním zadaných údajů (jméno, telefon, e-mail, ip adresa) společnosti B3 Technology, s.r.o., IČ: 07330600, se sídlem Novostavby 126/23, 435 11 Lom (správce dat), za účelem předání dotazu z tohoto formuláře Vámi vybranému inzerentovi a zpětného kontaktování mé osoby. Osobní údaje bude správce zpracovávat manuálně i automaticky přímo prostřednictvím svých zaměstnanců. Informace předané tímto formulářem budou uloženy v databázi správce maximálně po dobu 10 let. Odvolání souhlasu s uložením a zpracováním poskytnutých dat lze e-mailem na info@videobydleni.cz. V případě podezření na neoprávněné použití Vámi poskytnutých údajů máte právo předat podnět k šetření Úřadu pro ochranu osobních údajů. Více informací
Chystáte se prodat nemovitost?
Pomůžeme Vám!

Inzerát si prohlédlo 2 lidí

Prodejce

Ing. Sandra Špunarová

Ing. Sandra Špunarová

Hlídací pes

Chcete dostávat emailem podobné nabídky prodeje obchodních prostor v Ostravě?

Podobné nemovitosti


Nevyhovuje Vám typ nemovitosti? Podívejte se na jiné kategorie komerčních.


Vybrané články z našeho blogu