Pronájem obchodního prostoru, Přeštice, Masarykovo nám., 179 m2

Masarykovo nám., Přeštice

Cena na vyžádání /za měsíc Získejte výhodnou HYPOTÉKU

(cena k jednání, více informací v RK)

Prémioví partneři v Přešticích

Podlahy

Stěhovací služby

Informace k nemovitosti

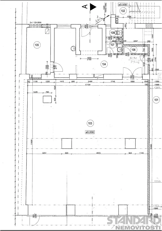
V zastoupení majitele nabízíme k dlouhodobému pronájmu světlý a funkčně řešený nebytový prostor o výměře 179 m² v přízemí bytového domu přímo na náměstí v Přešticích (okres Plzeň-jih). Prostor je napojen na veškeré IS: voda, plyn, elektřina, kanalizace.

Dispozice
• Centrální místnost 139 m² s přímým vstupem z náměstí; téměř čtvercový půdorys cca 11,15 × 12,46 m
• Zázemí 41 m²: chodba, sklad, toalety, kuchyňka, kancelář

Vybavení a standard
Vybavení a standard
• Velké prosklené výlohy se žaluziemi, vstup přes nízký schod (cca 15 cm)
• Podlahy: dlažba; okna plastová s vnitřními žaluziemi
• Topení: plynový kotel se samostatným měřením (ohřev vody)
• Voda a elektřina – samostatné odečty
• Možnost předání zařízené nebo po dohodě vyklizené

• Budova je zateplena
• Aktuálně řešíme PENB budovy, proto se zobrazuje třída G

Využití
• Aktuálně zkolaudováno jako prodejna
• Vhodné i pro služby (kanceláře, ordinace, kosmetika, kadeřnictví, pedikúra, masáže apod.); v takovém případě nutná rekolaudace a případné úpravy interiéru

Provozní náklady (aktuálně)
• Zálohy na vytápění (plyn): 2 100 Kč/měs. vč. DPH
• Elektřina: do 2 500 Kč/měs. vč. DPH
• Voda: dle skutečné spotřeby (samostatný odečet)

Finanční podmínky
• Nájemné: informace v RK (DPH dle statutu nájemce – plátce/neplátce)
• Vratná kauce: 1 měsíční nájem (DPH dle statutu nájemce)
• Provize RK: 1 měsíční nájem

Zásobování a parkování
• Zásobování: možnost vjezdu do oploceného dvora z hlavní příjezdové komunikace
• Parkování: centrální parkoviště na náměstí

Lokalita
• Centrum Přeštic, veškerá občanská vybavenost v bezprostřední blízkosti
• Výborná dostupnost do Plzně a Klatov (cca 20 km)
• Nový obchvat Horní Lukavice – dojezd do Plzně cca 10 minut autem
• Výborné spojení vlakem i autobusem

Dostupnost
• K předání po dohodě s majiteli
Pro více informací a termín prohlídky kontaktujte makléře.

Parametry nemovitosti

Cena
Cena na vyžádání
Poznámka k ceně
cena k jednání, více informací v RK
Aktualizováno
10. 2. 2026
Adresa
Masarykovo nám., Přeštice
ID
0183
Stavba
Cihlová
Stav objektu
Velmi dobrý
Patro
1. z 2
Vybaveno
Částečně
Lokalita objektu
Centrum obce
Užitná plocha
179 m2
Elektřina
230V
Odpad
Veřejná kanalizace
Komunikace
Asfaltová
Telekomunikace
Internet
Doprava
Vlak, Dálnice, Silnice, MHD, Autobus
Voda
Vodovod
Topné těleso
Radiátory
Zdroj topení
Plynový kotel
Zdroj teplé vody
Plynový kotel

Kontaktovat makléře

Máte zájem o tuto nemovistost?

Tímto, v souladu s nařízením Evropského parlamentu a Rady (EU) 2016/679, v platném znění, prohlašuji, že mi je alespoň 16 let a uděluji tak svůj souhlas se zpracováním zadaných údajů (jméno, telefon, e-mail, ip adresa) společnosti B3 Technology, s.r.o., IČ: 07330600, se sídlem Novostavby 126/23, 435 11 Lom (správce dat), za účelem předání dotazu z tohoto formuláře Vámi vybranému inzerentovi a zpětného kontaktování mé osoby. Osobní údaje bude správce zpracovávat manuálně i automaticky přímo prostřednictvím svých zaměstnanců. Informace předané tímto formulářem budou uloženy v databázi správce maximálně po dobu 10 let. Odvolání souhlasu s uložením a zpracováním poskytnutých dat lze e-mailem na info@videobydleni.cz. V případě podezření na neoprávněné použití Vámi poskytnutých údajů máte právo předat podnět k šetření Úřadu pro ochranu osobních údajů. Více informací
Chystáte se prodat nemovitost?
Pomůžeme Vám!

Inzerát si prohlédlo 1 lidí

Prodejce

Mgr. Martina Opatrná

Mgr. Martina Opatrná

Hlídací pes

Chcete dostávat emailem podobné nabídky pronájmu obchodních prostor v Přešticích?


Nevyhovuje Vám typ nemovitosti? Podívejte se na jiné kategorie komerčních.


Vybrané články z našeho blogu