Pronájem bytu 3+1, Liberec - Liberec VI-Rochlice, Gagarinova, 76 m2

Gagarinova, Liberec VI-Rochlice - Liberec (nečleněné město)

19 000 Kč /za měsíc Získejte výhodnou HYPOTÉKU
Prémioví partneři v Liberci

Rekonstrukce

Úklidové služby

Informace k bytu

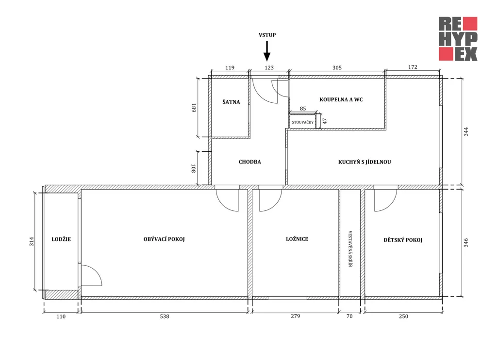
Nabízíme k pronájmu prostorný byt 3+1 o velikosti 76 m2 v klidnéé lokalitě Liberec – Rochlice, ulice Gagarinova. Byt se nachází ve zatepleném panelovém domě s výtahem, je v dobrém stavu po právě proběhlé rekonstrukci, disponuje lodžií a sklepní kójí. Dálkové ústřední vytápění a kompletní inženýrské sítě zaručují bezproblémový provoz. Lokalita je klidná, přitom výborně dostupná — v blízkosti MHD, autobusové i vlakové spojení, snadné napojení na silnice a dálnici. V okolí je plná občanská vybavenost: supermarket, dětské hřiště, obchody a služby, škola, školka, zdravotnická zařízení i pošta. Byt je vhodný pro rodinu i pro pár hledající klidné a pohodlné bydlení s dobrou dostupností s nízkými provozními náklady. Vhodné pro zájemce o dlouhodobý pronájem.
Cena měsíčního nájmu 19.000 Kč a zálohy na služby 3.500 Kč (bude přizpůsobeno podle počtu osob). Vratná kauce 38.000 Kč, provize RK 19.000 Kč.

Parametry bytu

Cena
19 000 Kč /za měsíc
Aktualizováno
3. 2. 2026
Adresa
Gagarinova, Liberec VI-Rochlice - Liberec (nečleněné město)
ID
N2047
Stavba
Panelová
Stav objektu
Dobrý
Patro
3. z 5
Typ objektu
Patrový
Lokalita objektu
Klidná část obce
Vlastnictví
Družstevní
Užitná plocha
76 m2
Podlahová plocha
76 m2
Třída energetické náročnosti
C - Úsporná
Elektřina
230V
Topení
Ústřední dálkové
Doprava
Vlak, Dálnice, Silnice, MHD, Autobus
Sklep
Lodžie
Výtah
Převod do OV

Kontaktovat makléře

Realitní kancelář

Logo REHYPEX, s.r.o.

REHYPEX, s.r.o.

Veleslavínova 208/9, Liberec III-Jeřáb

Chystáte se prodat nemovitost?
Pomůžeme Vám!

Máte zájem o tento byt?

Tímto, v souladu s nařízením Evropského parlamentu a Rady (EU) 2016/679, v platném znění, prohlašuji, že mi je alespoň 16 let a uděluji tak svůj souhlas se zpracováním zadaných údajů (jméno, telefon, e-mail, ip adresa) společnosti B3 Technology, s.r.o., IČ: 07330600, se sídlem Novostavby 126/23, 435 11 Lom (správce dat), za účelem předání dotazu z tohoto formuláře Vámi vybranému inzerentovi a zpětného kontaktování mé osoby. Osobní údaje bude správce zpracovávat manuálně i automaticky přímo prostřednictvím svých zaměstnanců. Informace předané tímto formulářem budou uloženy v databázi správce maximálně po dobu 10 let. Odvolání souhlasu s uložením a zpracováním poskytnutých dat lze e-mailem na info@videobydleni.cz. V případě podezření na neoprávněné použití Vámi poskytnutých údajů máte právo předat podnět k šetření Úřadu pro ochranu osobních údajů. Více informací
Chystáte se prodat nemovitost?
Pomůžeme Vám!

Inzerát si prohlédlo 0 lidí

Prodejce

Ing. Rut Piklová

Ing. Rut Piklová

Hlídací pes

Chcete dostávat emailem podobné nabídky pronájmu bytů 3+1 v Liberci?

Podobné nemovitosti


Nevyhovuje Vám typ bytu? Podívejte se na jiné kategorie bytů.


Vybrané články z našeho blogu