Pronájem bytu 4+kk, Praha - Vinohrady, Laubova, 170 m2 (ID: 4172345)

Laubova, Praha, Vinohrady

134 800 Kč /za měsíc Získejte výhodnou HYPOTÉKU

(Poplatky za služby a energie se hradí zvlášť.)

Prémioví partneři v Praze 3

Stěhovací služby

Výkup a prodej starého nábytku

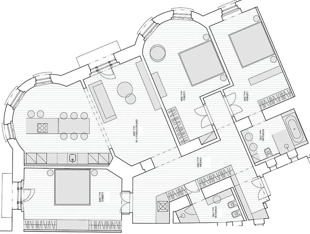
Informace k bytu

Designový byt 4+kk (3 ložnice, 2 koupelny) se dvěma balkony a klimatizací, o celkové obytné ploše 170 m2, je situován v 1. patře zrekonstruované secesní budovy s výtahem v populární rezidenční lokalitě Praha 2 Vinohrady, ulice Laubova.

Byt dispozičně nabízí prostornou předsíň, obývací pokoj se vstupem na balkon, plně vybavený moderní kuchyňský kout s vestavěnými spotřebiči (trouba, elektrická varná deska, myčka, lednice, sporák) s jídelní prostorem. Součástí bytu je hlavní ložnice se šatnou, ensuite koupelnou se dvěma umyvadly, toaletou, vanou a sprchou. V dalších dvou ložnicích (jedna s přístupem na balkon) jsou zabudovány vestavěné skříně, dále se zde nachází samostatná koupelna se sprchovým koutem, toaletou a bidetem. Interiér bytu je nezařízený, ale lze ho zařídit za zvýšené nájemné. V bytě se dále nachází bezpečnostní vstupní dveře, pračka a sušička.
Budova se nachází v žádané oblasti nedaleko populárních Riegrových sadů a náměstí Jiřího z Poděbrad, kde se často konají populární farmářské trhy. V blízkosti nepřeberné množství restaurací, kaváren, bister, obchodů apod. Předností této lokality je její vynikající dopravní spojení tramvajová, autobusová zastávka "Jiřího z Poděbrad" či stejnojmenná stanice metra (linka B) jsou vzdáleny do 5 minut chůze od budovy.

Fixní měsíční poplatky za služby spojené s užíváním bytu činí 125EUR/osobu. Zálohové platby za plyn 10.000, Kč/měsíčně a elektřina se převádí na nájemce. K dispozici je 1 parkovací stání v ceně.

Parametry bytu

Cena
134 800 Kč /za měsíc
Poznámka k ceně
Poplatky za služby a energie se hradí zvlášť.
Aktualizováno
4. 2. 2026
Adresa
Laubova, Praha, Vinohrady
ID
954447
Stavba
Smíšená
Stav objektu
Po rekonstrukci
Patro
2.
Vybaveno
Ne
Vlastnictví
Osobní
Užitná plocha
170 m2
Podlahová plocha
170 m2
Třída energetické náročnosti
G - Mimořádně nehospodárná
Balkon
Garáž
Výtah

Kontaktovat makléře

Realitní kancelář

Metropolitan Estates, s.r.o.

Vinohradská 939/39, Praha, Vinohrady

Chystáte se prodat nemovitost?
Pomůžeme Vám!

Máte zájem o tento byt?

Tímto, v souladu s nařízením Evropského parlamentu a Rady (EU) 2016/679, v platném znění, prohlašuji, že mi je alespoň 16 let a uděluji tak svůj souhlas se zpracováním zadaných údajů (jméno, telefon, e-mail, ip adresa) společnosti B3 Technology, s.r.o., IČ: 07330600, se sídlem Novostavby 126/23, 435 11 Lom (správce dat), za účelem předání dotazu z tohoto formuláře Vámi vybranému inzerentovi a zpětného kontaktování mé osoby. Osobní údaje bude správce zpracovávat manuálně i automaticky přímo prostřednictvím svých zaměstnanců. Informace předané tímto formulářem budou uloženy v databázi správce maximálně po dobu 10 let. Odvolání souhlasu s uložením a zpracováním poskytnutých dat lze e-mailem na info@videobydleni.cz. V případě podezření na neoprávněné použití Vámi poskytnutých údajů máte právo předat podnět k šetření Úřadu pro ochranu osobních údajů. Více informací
Chystáte se prodat nemovitost?
Pomůžeme Vám!

Inzerát si prohlédlo 0 lidí

Prodejce

Zuzana Mach

Zuzana Mach

Hlídací pes

Chcete dostávat emailem podobné nabídky pronájmu bytů 4+kk v Praze 3?

Podobné nemovitosti


Nevyhovuje Vám typ bytu? Podívejte se na jiné kategorie bytů.


Vybrané články z našeho blogu