Prodej rodinného domu, Kařez, 119 m2

Kařez

5 650 000 Kč /za nemovitost HYPOTÉKA od 25 252 Kč /za měsíc
Prémioví partneři v Kařezu

Podlahy

Stěhovací služby

Informace k domu

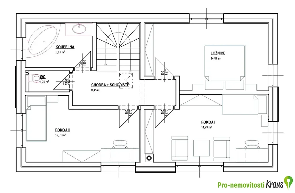
Nabízíme k prodeji novostavbu zděného patrového rodinného domu s dispozicí 4+KK o podlahové ploše 119 m² ve fázi před dokončením (shell & core). Dům se zahradou leží na severozápadním okraji obce Kařez ve směru na Zbiroh, v blízkosti Dvorského a Čápského rybníka.

Předmětem prodeje je hrubá zastřešená stavba s osazenými okny a vchodovými dveřmi, dokončenou zateplenou fasádou, uvnitř s hrubými podlahami, vnitřními příčkami, komínovým tělesem a betonovým monolitickým schodištěm. V ceně jsou rovněž přípojky elektřiny a obecního vodovodu, ležaté rozvody kanalizace pro odvod splaškových a dešťových vod, domovní ČOV, zpevněné plochy (zámková dlažba) a oplocení pozemku s vjezdovou bránou. Dům bude do tohoto stadia dokončen na začátku léta 2026.

Dokončení domu bude obnášet realizaci interiérů a osazení tepelného čerpadla. Dokončení si může kupující obstarat sám nebo může využít služeb stavební společnosti, která vystavěla hrubou stavbu – společnost INSTAV je renomovanou stavební společností působící na trhu již od roku 1990. Cena za dokončení by se odvíjela od požadavků kupujícího. Jedná se o výjimečnou příležitost, kdy si kupující může vybrat interiéry, vzhled fasády a další prvky dle vlastních představ.

Stavba je nepodsklepená, v přízemí obývací pokoj s kuchyní, koupelna s WC, pracovna a technické prostory, v 1. patře 3 pokoje, koupelna a samostatné WC.

Obvodové zdivo i příčky jsou provedeny z pórobetonových tvárnic Ytong, stropy betonové monolitické, střešní krytina betonové tašky Bramac, okna plastová s izolačním trojsklem. Jako zdroj vytápění projektováno tepelné čerpadlo voda-vzduch, v obývacím pokoji je navíc počítáno s krbovými kamny, která mohou být napojena na tepelný výměník. Dům je energeticky úsporný – třída B.

Pozemek o výměře 793 m² je rohový (pouze dva sousedi), obývací pokoj je situován na jih a západ, kuchyně k východu a jihu, terasa orientována jihozápadně.

Oplocení pozemku betonovým plotem s dřevěnými výplněmi. Blízko pozemku zastávka autobusu na lince Zvíkovec-Zbiroh-Kařez.

Obec Kařez ležící na silniční a železniční spojnici Plzeň–Rokycany–Praha má přibližně 700 obyvatel, je zde základní škola (1. - 5. ročník) a mateřská škola, pošta, zdravotnické zařízení, obecní úřad, čerpací stanice, několik restaurací, prodejna smíšeného zboží. Obec je důležitou železniční zastávkou na trati Praha-Plzeň. Nájezd na dálnici D5 3 minuty jízdy (Cerhovice). Veškerá nadstandardní občanská vybavenost v Rokycanech - několik supermarketů, školy základní i střední, nemocnice, bazén, koupaliště, zimní stadion, obchody, restaurace, mnoho pracovních příležitostí v průmyslových zónách Mýto, Žebrák, Rokycany. Příroda na dosah – nedaleké rybníky, zbirožské a brdské lesy.

Parametry domu

Cena
5 650 000 Kč /za nemovitost Spočítat hypotéku
Aktualizováno
4. 2. 2026
Adresa
Kařez
Stavba
Cihlová
Stav objektu
Ve výstavbě
Druh objektu
Samostatný
Lokalita objektu
Okraj obce
Užitná plocha
119 m2
Plocha pozemku
793 m2
Třída energetické náročnosti
B - Velmi úsporná
Elektřina
230V, 400V
Odpad
ČOV pro celý objekt
Komunikace
Asfaltová
Doprava
Vlak, Dálnice, Silnice, Autobus
Voda
Vodovod

Kontaktovat makléře

Realitní kancelář

Pro-nemovitosti Kraus

Malé náměstí 122, Rokycany, Střed

Chystáte se prodat nemovitost?
Pomůžeme Vám!

Máte zájem o tento dům?

Tímto, v souladu s nařízením Evropského parlamentu a Rady (EU) 2016/679, v platném znění, prohlašuji, že mi je alespoň 16 let a uděluji tak svůj souhlas se zpracováním zadaných údajů (jméno, telefon, e-mail, ip adresa) společnosti B3 Technology, s.r.o., IČ: 07330600, se sídlem Novostavby 126/23, 435 11 Lom (správce dat), za účelem předání dotazu z tohoto formuláře Vámi vybranému inzerentovi a zpětného kontaktování mé osoby. Osobní údaje bude správce zpracovávat manuálně i automaticky přímo prostřednictvím svých zaměstnanců. Informace předané tímto formulářem budou uloženy v databázi správce maximálně po dobu 10 let. Odvolání souhlasu s uložením a zpracováním poskytnutých dat lze e-mailem na info@videobydleni.cz. V případě podezření na neoprávněné použití Vámi poskytnutých údajů máte právo předat podnět k šetření Úřadu pro ochranu osobních údajů. Více informací
Chystáte se prodat nemovitost?
Pomůžeme Vám!

Inzerát si prohlédlo 0 lidí

Prodejce

JUDr. Michal Kraus

JUDr. Michal Kraus

Hlídací pes

Chcete dostávat emailem podobné nabídky prodeje rodinných domů v Kařezu?

Podobné nemovitosti


Nevyhovuje Vám typ domu? Podívejte se na jiné kategorie domů.


Vybrané články z našeho blogu