Prodej rodinného domu, Červený Újezd, U Studny, 120 m2 (ID: 4174051)

U Studny, Červený Újezd

12 995 000 Kč /za nemovitost HYPOTÉKA od 58 080 Kč /za měsíc

(Cena zahrnuje veškeré právní služby a odměnu RK, 4500,-kč EL, 2000,-Kč voda)

Prémioví partneři v Červeném Újezdu

Informace k domu

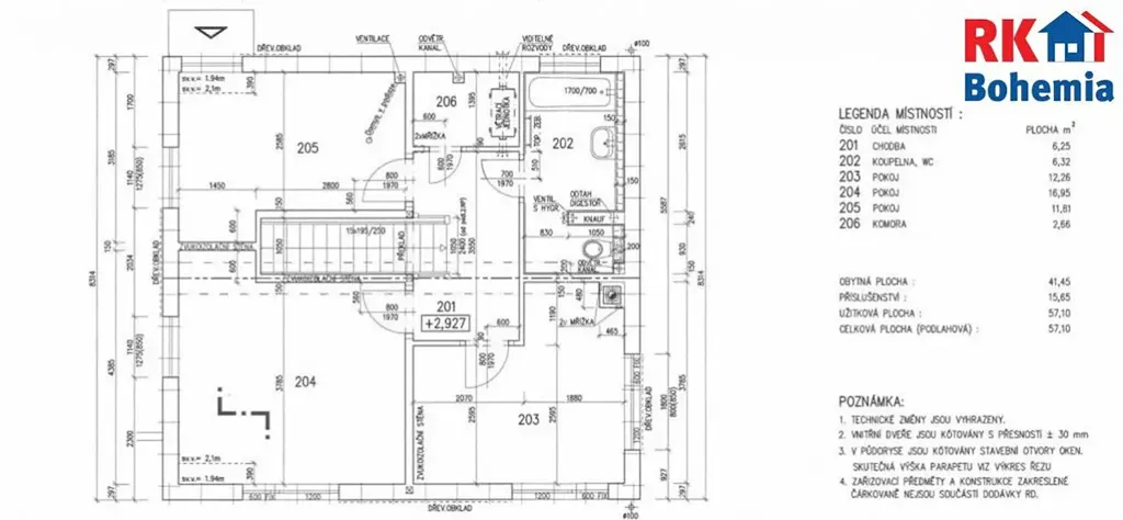
Dovolujeme si nabídnout nízkoenergetickou dřevostavbu RD z roku 2018, která je rozložena ve dvou podlažích. Dispozice domu 4+kk+2xkoupelna+3xkomora.Dům je postaven jako typizovaný Kubis 74/22-Rýmařov. Exklusivně nabízíme dům od společnosti Rýmařov, která se zabývá stavbou rodinných domů již přes 50let, proto je i tento dům atraktivní volbou pro rodinné bydlení.

Dům sestává ze dvou podlažích, přičemž jednotlivá podlaží tvoří:
-přízemí: zádveří-3m2, chodba-3.3m2, koupelna+WC-5.5m2,tech.místnost-4m2,komora-4.2m2,kuchyň-10m2,obývací pokoj-31m2. Celková užitná plocha přízemí je 61m2.

-1.p: 3x pokoj-17m2, 12m2, 12m2, koupelna s vanou a WC-6.3m2,komora-2.7m2,chodba-6.3m2. Celková užitná plocha 1.p je 57m2.

Obě podlaží s příslušenstvím mají užitnou plochu cca 120m2. Přízemí domu nabízí krásný obytný a světlý prostor s kompletně vybavenou kuchyní a krbovými kamny, které přispívají nejen k příjemné atmosféře, ale současně dokáží vytopit celé přízemí a také snížit spotřebu el.energie domu.

Každý určitě ocení vstup přímo z jídelny na prostornou zastřešenou terasu, která poskytuje dostatek prostoru ke grilování, ale i odpočinku na odpolední kávu. Tato terasa, jako i celá zahrada, je situována na jih, takže poskytuje sluneční svit v průběhu celého dne.Střešní rošty jsou regulavatelné na průchod více světla.
Zahrada má dostatek plochy pro posezení u ohniště, kůlnu, tech.místnost na nářadí, trampolínu a další vyžití.

Na pozemku domu se nalézá prostorná plocha na parkování, třeba hned pro 4 automobily (podloží bylo zpevněno i na parkování karavanu). Vjezd na pozemek je bezproblémový, díky automatické posuvné bráně.
Dům je napojen na veškeré IS - El,voda,kanalizace+plyn v případě potřeby na hranici pozemku. Nemovitost dále nabízí detenční nádrž na dešťovou vodu v objemu 4000l a zalévání zahrady přes el. čerpadlo.

Vytápění domu zajišťuje el.digitální centrální vytápění s termostaty v každé místnosti od společnosti Siemens.Tento system je možno také nastavit tak, že budete mít v každé místnosti jinou teplotu. O bezpečnost domu se stará alarmový systém od společnosti Jablotron.

Červený Újezd je vynikající a klidná lokalita pro rodinné bydlení vzdálená jen 7km od hranice Prahy. V obci je obchod se základními potravinami, školka a ZŠ je v nedaleké Unhošti. Základní škola v docházkové vzdálenosti Svárov. Jezdí zde PID , kterou se dostanete do Unhoště a na Zličín metro B.

Celkově mohu tuto nemovitost jen vřele doporučit. Ne jen ohledně velice hezkého provedení domu, ale i cenově v porovnání s nemovitostmi v okolí, věříme, že je to velice zajímavá nabídka. Rád se s vámi osobně setkám na prohlídce tohoto krásného domu, který je možno financovat i hypotečním úvěrem.

Parametry domu

Cena
12 995 000 Kč /za nemovitost Spočítat hypotéku
Poznámka k ceně
Cena zahrnuje veškeré právní služby a odměnu RK, 4500,-kč EL, 2000,-Kč voda
Náklady na bydlení
4500,-kč EL, 2000,-Kč voda
Aktualizováno
6. 2. 2026
Adresa
U Studny, Červený Újezd
ID
3101
Stavba
Dřevěná
Stav objektu
Novostavba
Druh objektu
Samostatný
Lokalita objektu
Klidná část obce
Užitná plocha
120 m2
Zastavěná plocha
74 m2
Podlahová plocha
765 m2
Plocha pozemku
765 m2
Plocha zahrady
691 m2
Třída energetické náročnosti
B - Velmi úsporná
Ukazatel energetické náročnosti
7000 kWh/m2 za rok
Elektřina
230V, 400V
Odpad
Veřejná kanalizace
Topení
Lokální elektrické
Telekomunikace
Internet
Doprava
Dálnice, MHD, Autobus
Voda
Vodovod, Retenční nádrž na dešt’ovou vodu
Topné těleso
Krbová kamna
Bezbarierový přístup
Parkování

Kontaktovat makléře

Realitní kancelář

RK BOHEMIA s.r.o.

náměstí 14. října 1307/2, Praha, Smíchov

Chystáte se prodat nemovitost?
Pomůžeme Vám!

Máte zájem o tento dům?

Tímto, v souladu s nařízením Evropského parlamentu a Rady (EU) 2016/679, v platném znění, prohlašuji, že mi je alespoň 16 let a uděluji tak svůj souhlas se zpracováním zadaných údajů (jméno, telefon, e-mail, ip adresa) společnosti B3 Technology, s.r.o., IČ: 07330600, se sídlem Novostavby 126/23, 435 11 Lom (správce dat), za účelem předání dotazu z tohoto formuláře Vámi vybranému inzerentovi a zpětného kontaktování mé osoby. Osobní údaje bude správce zpracovávat manuálně i automaticky přímo prostřednictvím svých zaměstnanců. Informace předané tímto formulářem budou uloženy v databázi správce maximálně po dobu 10 let. Odvolání souhlasu s uložením a zpracováním poskytnutých dat lze e-mailem na info@videobydleni.cz. V případě podezření na neoprávněné použití Vámi poskytnutých údajů máte právo předat podnět k šetření Úřadu pro ochranu osobních údajů. Více informací
Chystáte se prodat nemovitost?
Pomůžeme Vám!

Inzerát si prohlédlo 1 lidí

Prodejce

Roman  Benda

Roman Benda

Hlídací pes

Chcete dostávat emailem podobné nabídky prodeje rodinných domů v Červeném Újezdu (okr. Praha-západ)?

Podobné nemovitosti


Nevyhovuje Vám typ domu? Podívejte se na jiné kategorie domů.


Vybrané články z našeho blogu