Prodej bytu 4+kk, Písek, Kocínova, 181 m2

Kocínova, Písek

18 982 000 Kč /za nemovitost HYPOTÉKA od 84 838 Kč /za měsíc

(parkovací stání 336 000,-Kč)

Prémioví partneři v Písku

Výkup a prodej starého nábytku

Pojištění a finance

Informace k bytu

V exkluzivní lokalitě ulice Kocínova, v samotném centru města Písek, vzniká jedinečný developerský projekt Hejtmanský dvůr, který spojuje noblesu historické architektury s nejmodernějšími technologiemi současného bydlení. Dům prochází důkladnou a citlivou rekonstrukcí, při níž architekt kladl důraz na zachování původních historických prvků – včetně působivých kleneb ve vybraných bytech – a jejich propojení s nadčasovým designem.

Projekt nabízí komorní rezidenční bydlení s výtahem, promyšlenými a vzdušnými dispozicemi (2+kk – 4+kk) a dostatkem úložných prostor. Každý byt je navržen v luxusním standardu, s důrazem na kvalitu materiálů, funkčnost i estetiku. Samozřejmostí jsou velkorysé sklepy, praktické úložné prostory přímo v bytě a společná kolárna.

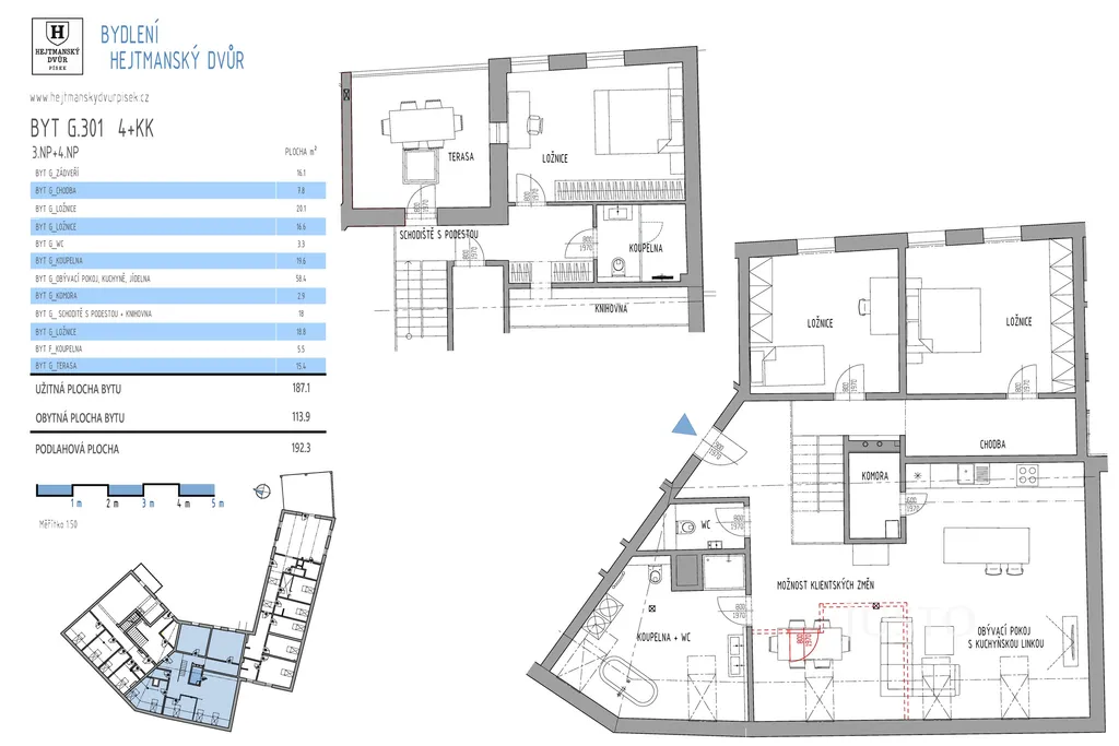
Byt číslo G 301, o dispozici 4+kk je mezonetový byt na 3. a 4. nadzemním podlaží. Tento byt je zcela výjimečný, v přízemí bytu je obývací pokoj s kuchyní, dvě samostatné ložnice, , koupelna s toaletou, samostatná toaleta a komora. V mezonetu je pak další ložnice s vlastní koupelnou a velkorysá terasa.

Plochy bytu:
Podlahová plocha bytu (plocha bytu včetně vnitřních příček, dle vyhlášky č. 366/2013, §2 a §3) je 186 m².
Vnitřní plocha bytu (bez příček, bez balkonu a sklepu) je 181,5 m².
Sklep o výměře 7 m².
Terasa o výměře 15 m²

Koupelna:
Kamenické rohy – bez lišt.
Velkoformátové dlaždice 60×120 cm.
Přesné spáry.
Top zařizovací předměty.
Promyšlené rozvržení a doplňky.
Vybrat si můžete ze dvou nadčasových barevných provedení.

Dveře a podlahy:
Podlahové vytápění, vinylová krytina.
Tři barevná provedení podlah na výběr.
Interiérové dveře s výškou 210 cm ve dvou barevných variantách.

Chytrá domácnost LOXONE:
Ovládání dveří skrze tablet v bytu.
Okamžitá kontrola spotřeby energií za byt.
Ovládání teploty v každé místnosti.
Ovládání předokenních žaluzií.
Ovládání – nabíjení elektromobilu na Wallboxu.

Součástí projektu jsou zastřešená parkovací stání v uzavřeném dvoře, který bude zabezpečen dálkově ovládanými vraty. Ke každému parkovacímu místu je připravena nabíječka pro elektromobil. O komfort a moderní způsob bydlení se stará inteligentní domácnost Loxone, připravenost na klimatizaci a efektivní technické řešení domu – vytápění plynovým kotlem a fotovoltaická elektrárna na střeše, která zajišťuje elektřinu pro společné prostory.

Hejtmanský dvůr představuje harmonii klidu jižních Čech a pohodlí městského života. Elegantní architektura, uzavřený dvůr se zelení a vysoký standard provedení vytvářejí ideální domov pro ty, kteří hledají výjimečné bydlení bez kompromisů – s veškerými službami, kulturou i přírodou na dosah.

Developer realizuje projekt výhradně z vlastních finančních prostředků, takže financování z Vaší strany je velmi jednoduché a bezpečné – na počátku hradíte pouze 10 % z kupní ceny, navíc uložených do advokátní úschovy, přičemž zbývající část kupní ceny se doplácí až po kolaudaci a podpisu kupní smlouvy, což Vám poskytuje dostatečný časový prostor k zajištění financování koupě.

Energetická náročnost budovy je aktuálně uváděna ve třídě D dle projektové dokumentace. Průkaz energetické náročnosti je v současné době přepracováván, neboť původní výpočet nezohledňuje inteligentní řízení domu a bytů systémem Loxone (samostatná regulace teploty v jednotlivých místnostech, meteostanice) ani fotovoltaickou elektrárnu o výkonu cca 10–17 kWp určenou pro denní dohřev teplé vody pro byty.

Parametry bytu

Cena
18 982 000 Kč /za nemovitost Spočítat hypotéku
Poznámka k ceně
parkovací stání 336 000,-Kč
Aktualizováno
17. 4. 2026
Adresa
Kocínova, Písek
ID
J12404
Stavba
Cihlová
Stav objektu
Ve výstavbě
Patro
3. z 4
Druh objektu
Rohový
Lokalita objektu
Centrum obce
Vlastnictví
Osobní
Užitná plocha
181 m2
Podlahová plocha
186 m2
Třída energetické náročnosti
C - Úsporná
Ukazatel energetické náročnosti
102 kWh/m2 za rok
Topení
Ústřední plynové
Topné těleso
Podlahové vytápění
Zdroj topení
Plynový kondenzační kotel
Zdroj teplé vody
Plynový kondenzační kotel
Sklep
Terasa
Výtah
Parkování

Kontaktovat makléře

Máte zájem o tento byt?

Tímto, v souladu s nařízením Evropského parlamentu a Rady (EU) 2016/679, v platném znění, prohlašuji, že mi je alespoň 16 let a uděluji tak svůj souhlas se zpracováním zadaných údajů (jméno, telefon, e-mail, ip adresa) společnosti B3 Technology, s.r.o., IČ: 07330600, se sídlem Novostavby 126/23, 435 11 Lom (správce dat), za účelem předání dotazu z tohoto formuláře Vámi vybranému inzerentovi a zpětného kontaktování mé osoby. Osobní údaje bude správce zpracovávat manuálně i automaticky přímo prostřednictvím svých zaměstnanců. Informace předané tímto formulářem budou uloženy v databázi správce maximálně po dobu 10 let. Odvolání souhlasu s uložením a zpracováním poskytnutých dat lze e-mailem na info@videobydleni.cz. V případě podezření na neoprávněné použití Vámi poskytnutých údajů máte právo předat podnět k šetření Úřadu pro ochranu osobních údajů. Více informací
Chystáte se prodat nemovitost?
Pomůžeme Vám!
Theleadway banner

Inzerát si prohlédlo 68 lidí

Prodejce

Bc. Ilona Vazačová

Bc. Ilona Vazačová

Hlídací pes

Chcete dostávat emailem podobné nabídky prodeje bytů 4+kk v Písku?

Podobné nemovitosti


Nevyhovuje Vám typ bytu? Podívejte se na jiné kategorie bytů.


Vybrané články z našeho blogu