Prodej rodinného domu, Kosmonosy, 127 m2 (ID: 4174732)

Kosmonosy, okres mladá boleslav

10 751 322 Kč /za nemovitost HYPOTÉKA od 48 052 Kč /za měsíc
Prémioví partneři v Kosmonosech

Pojištění a finance

Informace k domu

Představuji k prodeji nově vznikající novostavbu rodinného domu č. 8 v rámci projektu Domy pod platany v Kosmonosích u Mladé Boleslavi.

Kompletní informace o projektu, o samotném domě i o standardech a nadstandardech najdete na webových stránkách projektu: Domy pod platany.

V rámci tohoto projektu vzniká na rovinaté louce jen pár minut od centra Mladé Boleslavi komplex 21 nových rodinných domů navržených renomovaným studiem Hora Architekti s.r.o. Jedná se o moderní dřevostavby realizované specializovanou stavební společností Vexta, která poskytuje na skelet domu 50 letou záruku.

Dispozice domu:
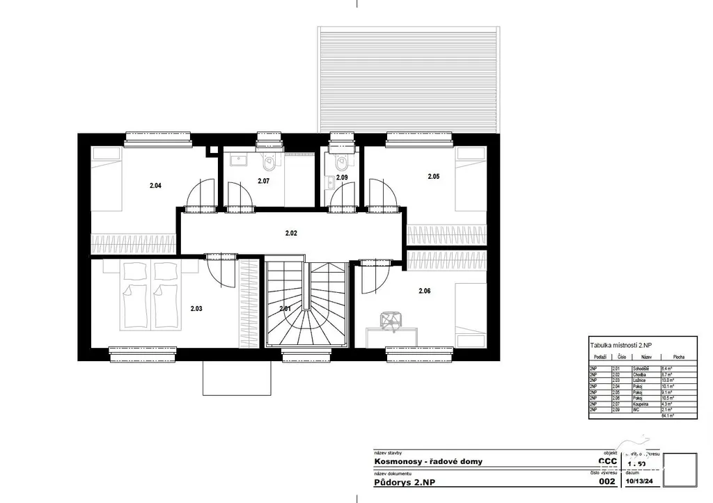
Dům č. 8 je řadový trojdům o dispozici 5+kk a ploše 127 m2, stojící na pozemku o výměře 272 m2. V domě jsou 4 samostatné pokoje, 1 obývací pokoj s kuchyňským prostorem, 2x koupelna s WC, další samostatné WC, úložný prostor pod schodištěm, místo pro technologie a garáž.

Technické informace:
Domy jsou již v základu vybaveny kvalitními standardy a technologiemi a dále je možné vybírat ze široké nabídky nadstandardního vybavení.
Vytápění a ohřev vody jsou zajištěny tepelným čerpadlem vzduch voda zn. Vaillant se zásobníkem na teplou vodu a s možností chlazení v létě. Topným (chladícím) prvkem jsou podlahová teplovodní tělesa. Okna v domě jsou plastová vybavená trojskly. Dům je vybaven tepelnou i zvukovou izolací. Dům je napojen na obecní vodovod, kanalizaci i přípojku elektřiny. Součástí ceny domu je i oplocení, ručně ovládaná otevírací brána, štěrková příprava na chodníčky kolem domu a parkovací stání. Kompletní technické informace o domě a o vybavení obsaženém ve standardu je ke stažení na webových stránkách projektu. Stejně tak i seznam volitelných nadstandardů.

Časový průběh a financování:
Nyní do konce roku 2025 budou na pozemku vybudovány komunikace a přípojky sítí. Samotná výstavba domu dle objednávky klienta může započít na začátku 2026. Realizace domu trvá přibližně 5 měsíců, dům tedy může být hotový do poloviny roku 2026.
S klienty bude postupně podepisována rezervační smlouva, smlouva o smlouvě budoucí a následně kupní smlouva na pozemek a smlouva o dílo na výstavbu domu. Dům je možné financovat prostřednictvím hypotečního úvěru.

Pro koupi domu zajišťujeme s partnery kompletní realitní a právní servis a financování hypotečním úvěrem.
Kontaktujte mě prosím pro další informace:
Jan Štěpánek
TAURUM reality

Uvedené výměry jsou orientační

Parametry domu

Cena
10 751 322 Kč /za nemovitost Spočítat hypotéku
Aktualizováno
7. 5. 2026
Adresa
Kosmonosy, okres mladá boleslav
ID
250108
Stavba
Dřevěná
Stav objektu
Ve výstavbě
Vybaveno
Ne
Typ objektu
Patrový
Druh objektu
Řadový
Vlastnictví
Osobní
Užitná plocha
127 m2
Zastavěná plocha
97 m2
Podlahová plocha
127 m2
Plocha pozemku
273 m2
Třída energetické náročnosti
B - Velmi úsporná
Ukazatel energetické náročnosti
60 kWh/m2 za rok
Elektřina
230V
Odpad
Veřejná kanalizace
Topení
Jiné
Doprava
Dálnice, Silnice, Autobus
Voda
Vodovod
Terasa
Výtah
Parkování

Kontaktovat makléře

Realitní kancelář

TAURUM reality s.r.o.

Americká 1139/1, Plzeň, Jižní Předměstí

Chystáte se prodat nemovitost?
Pomůžeme Vám!

Máte zájem o tento dům?

Tímto, v souladu s nařízením Evropského parlamentu a Rady (EU) 2016/679, v platném znění, prohlašuji, že mi je alespoň 16 let a uděluji tak svůj souhlas se zpracováním zadaných údajů (jméno, telefon, e-mail, ip adresa) společnosti B3 Technology, s.r.o., IČ: 07330600, se sídlem Novostavby 126/23, 435 11 Lom (správce dat), za účelem předání dotazu z tohoto formuláře Vámi vybranému inzerentovi a zpětného kontaktování mé osoby. Osobní údaje bude správce zpracovávat manuálně i automaticky přímo prostřednictvím svých zaměstnanců. Informace předané tímto formulářem budou uloženy v databázi správce maximálně po dobu 10 let. Odvolání souhlasu s uložením a zpracováním poskytnutých dat lze e-mailem na info@videobydleni.cz. V případě podezření na neoprávněné použití Vámi poskytnutých údajů máte právo předat podnět k šetření Úřadu pro ochranu osobních údajů. Více informací
Chystáte se prodat nemovitost?
Pomůžeme Vám!
Theleadway banner

Inzerát si prohlédlo 80 lidí

Prodejce

Jan Štěpánek

Jan Štěpánek

Hlídací pes

Chcete dostávat emailem podobné nabídky prodeje rodinných domů v Kosmonosech?

Podobné nemovitosti


Nevyhovuje Vám typ domu? Podívejte se na jiné kategorie domů.


Vybrané články z našeho blogu