Pronájem rodinného domu, Němčany, 98 m2

Němčany

Rezervováno
24 000 Kč /za měsíc Získejte výhodnou HYPOTÉKU
Prémioví partneři v Němčanech

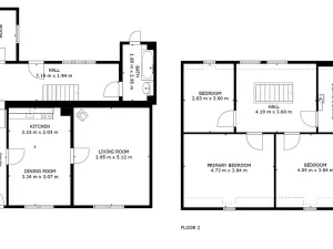
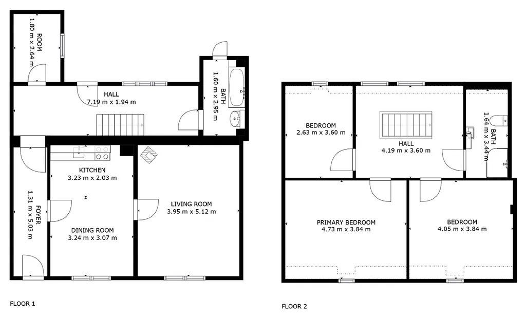
Informace k domu

Pronájem rodinného domu v Němčanech – klidné bydlení pro rodinu

Hledáte pohodové bydlení v klidné lokalitě s dostatkem prostoru? Nabízíme k pronájmu velmi pěkný rodinný dům v obci Němčany, ideální pro rodinu, která ocení soukromí, funkční dispozici a bezstarostné nastěhování.

Základní informace:
• Dispozice: 4 pokoje + kuchyně s jídelnou
• Užitná plocha: cca 98 m²
• Typ domu: cihlový řadový dům, patrový
• Stav: velmi dobrý, bez nutnosti dalších investic
• Sklep: ano, cca 30 m² – dostatek úložného prostoru
• Parkování: 1 parkovací místo přímo u domu
• Volný od: 1. 3. 2026

Finanční podmínky:
• Měsíční nájem: 24.000 Kč
• Zálohy na služby a energie: cca 6.000 Kč / měsíc
• Vratná kauce: 30.000 Kč
• Provize RK: 1 měsíční nájem + DPH

❤️ Proč si tento dům zamilujete?
• klidná a příjemná lokalita vhodná pro rodinné bydlení
• praktická dispozice s dostatkem prostoru pro každého člena rodiny
• mnoho úložných míst včetně prostorného sklepa
• velmi dobrý technický stav – stačí se jen nastěhovat
• parkování pohodlně přímo u domu

K nastěhování od 1. března 2026.
Prohlídky jsou možné po předchozí domluvě.

Máte zájem o více informací nebo si chcete domluvit prohlídku?
Neváhejte nás kontaktovat – rádi vám dům osobně představíme

Parametry domu

Stav
Rezervováno
Cena
24 000 Kč /za měsíc
Aktualizováno
8. 2. 2026
Adresa
Němčany
Stavba
Cihlová
Stav objektu
Velmi dobrý
Druh objektu
Řadový
Užitná plocha
98 m2
Plocha pozemku
118 m2
Sklep
Parkování

Kontaktovat makléře

Realitní kancelář

Komerčky Real

nábř. Přemyslovců 867/8, Olomouc

Chystáte se prodat nemovitost?
Pomůžeme Vám!

Máte zájem o tento dům?

Tímto, v souladu s nařízením Evropského parlamentu a Rady (EU) 2016/679, v platném znění, prohlašuji, že mi je alespoň 16 let a uděluji tak svůj souhlas se zpracováním zadaných údajů (jméno, telefon, e-mail, ip adresa) společnosti B3 Technology, s.r.o., IČ: 07330600, se sídlem Novostavby 126/23, 435 11 Lom (správce dat), za účelem předání dotazu z tohoto formuláře Vámi vybranému inzerentovi a zpětného kontaktování mé osoby. Osobní údaje bude správce zpracovávat manuálně i automaticky přímo prostřednictvím svých zaměstnanců. Informace předané tímto formulářem budou uloženy v databázi správce maximálně po dobu 10 let. Odvolání souhlasu s uložením a zpracováním poskytnutých dat lze e-mailem na info@videobydleni.cz. V případě podezření na neoprávněné použití Vámi poskytnutých údajů máte právo předat podnět k šetření Úřadu pro ochranu osobních údajů. Více informací
Chystáte se prodat nemovitost?
Pomůžeme Vám!

Inzerát si prohlédlo 0 lidí

Prodejce

Michaela Maníková

Michaela Maníková

Hlídací pes

Chcete dostávat emailem podobné nabídky pronájmu rodinných domů v Němčanech?

Podobné nemovitosti


Nevyhovuje Vám typ domu? Podívejte se na jiné kategorie domů.


Vybrané články z našeho blogu