Pronájem kanceláře, Mladá Boleslav - Mladá Boleslav III, Novákova, 46 m2

Novákova, Mladá Boleslav III

16 000 Kč /za měsíc Získejte výhodnou HYPOTÉKU

(+ENERGIE)

Prémioví partneři v Mladé Boleslavi

Pojištění a finance

Informace k nemovitosti

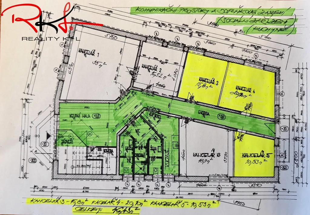
Nabízíme k pronájmu kancelářské / obchodní prostory, Mladá Boleslav
Dovolujeme si Vám nabídnout k pronájmu kancelářské nebo obchodní prostory v centru města Mladá Boleslav. Jedná se o soubor tří neprůchozích místností o celkové výměře 46,5 m², které jsou vyznačeny na půdorysu.

Dispozice
• tři samostatné neprůchozí místnosti
• možnost variabilního využití (kanceláře, služby, menší provoz)

Technické informace
• ústřední plynové vytápění
• zateplená budova s plastovými okny
• bezpečnostní systém
• sdílené sociální zázemí na patře (kuchyňka, toalety, sprcha)

Další možnosti
• možnost stavebních úprav dle dohody a délky nájmu
• možnost oddělení prostoru a vytvoření samostatného vstupu ze zadní části budovy

Parkování
• parkoviště přímo před budovou

Občanská vybavenost
Výborná poloha v rámci Mladá Boleslav – centrum města v docházkové vzdálenosti, kompletní občanská vybavenost v okolí.

Podmínky pronájmu
• nájemné 16 000 Kč / měsíc
• zálohy na energie a služby cca 2 800 Kč / měsíc
• vratná kauce 20 000 Kč
• služby RK 20 000 Kč
• k dispozici od dubna 2026

Pro více informací mě prosím kontaktujte telefonicky v pracovních dnech 8:00–18:00, případně kdykoliv prostřednictvím SMS nebo e-mailu.
Speaking English. Reality K+L – profesionální realitní služby od roku 2005.

Parametry nemovitosti

Cena
16 000 Kč /za měsíc
Poznámka k ceně
+ENERGIE
Aktualizováno
15. 4. 2026
Adresa
Novákova, Mladá Boleslav III
ID
2377
Stavba
Smíšená
Stav objektu
Velmi dobrý
Vybaveno
Částečně
Typ objektu
Patrový
Lokalita objektu
Klidná část obce
Užitná plocha
46 m2
Třída energetické náročnosti
C - Úsporná
Plyn
Plynovod
Odpad
Veřejná kanalizace
Telekomunikace
Internet
Převod do OV

Kontaktovat makléře

Realitní kancelář

Logo REALITY K+L

REALITY K+L

třída T. G. Masaryka 989, Roudnice nad Labem

Chystáte se prodat nemovitost?
Pomůžeme Vám!

Máte zájem o tuto nemovistost?

Tímto, v souladu s nařízením Evropského parlamentu a Rady (EU) 2016/679, v platném znění, prohlašuji, že mi je alespoň 16 let a uděluji tak svůj souhlas se zpracováním zadaných údajů (jméno, telefon, e-mail, ip adresa) společnosti B3 Technology, s.r.o., IČ: 07330600, se sídlem Novostavby 126/23, 435 11 Lom (správce dat), za účelem předání dotazu z tohoto formuláře Vámi vybranému inzerentovi a zpětného kontaktování mé osoby. Osobní údaje bude správce zpracovávat manuálně i automaticky přímo prostřednictvím svých zaměstnanců. Informace předané tímto formulářem budou uloženy v databázi správce maximálně po dobu 10 let. Odvolání souhlasu s uložením a zpracováním poskytnutých dat lze e-mailem na info@videobydleni.cz. V případě podezření na neoprávněné použití Vámi poskytnutých údajů máte právo předat podnět k šetření Úřadu pro ochranu osobních údajů. Více informací
Chystáte se prodat nemovitost?
Pomůžeme Vám!
Theleadway banner

Inzerát si prohlédlo 9 lidí

Prodejce

Libor Kašička

Libor Kašička

Hlídací pes

Chcete dostávat emailem podobné nabídky pronájmu kanceláří v Mladé Boleslavi?

Podobné nemovitosti


Nevyhovuje Vám typ nemovitosti? Podívejte se na jiné kategorie komerčních.


Vybrané články z našeho blogu