Pronájem komerční nemovitosti, Hradec Králové, Velké náměstí, 290 m2

Velké náměstí, Hradec Králové

34 900 Kč /za měsíc Získejte výhodnou HYPOTÉKU
Prémioví partneři v Hradci Králové

Informace k nemovitosti

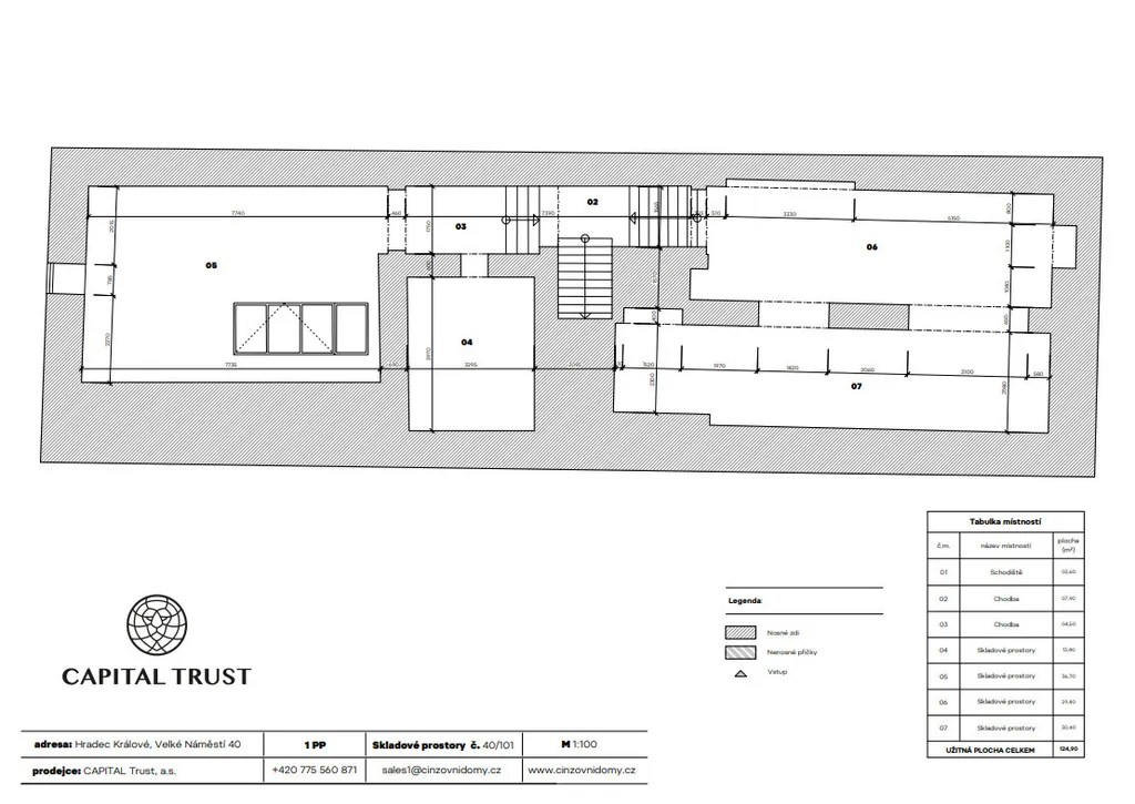
Dovolujeme si vám v zastoupení majitele nabídnout komerční prostory umístěné v podzemních podlažích měšťanských domech č.p. 39 a 40 na Velkém náměstí v samotném centru Hradce Králové.

Сelková plocha 290 m², umístěný v 1. a 2. podzemním podlaží domu. Vstup do prostoru je veden přes chodbu přímo z domu. Interiér se vyznačuje původními cihlovými klenbami, které vytvářejí jedinečnou a autentickou atmosféru. Prostor působí velmi útulně a má výrazný charakter, díky čemuž je ideální například pro vinárnu, degustační místnost, kulturní či společenské akce, soukromé eventy nebo jiný koncept s důrazem na atmosféru a zážitek.

Dispozice umožňuje rozdělení až na tři plnohodnotné sály pro hosty a několik technických místností, které lze využít jako zázemí, sklady či technické prostory. WC je na chodbě společný s restaurace, která se nachází v přízemí. Prostor nabízí velkou flexibilitu a lze jej přizpůsobit individuálním potřebám budoucího nájemce.

Provoz je umístěn v objektu středověkého původu, který prošel řadou mladších přestaveb, z nichž nejvýznamnější je klasicistní. Domy s restaurací se nachází vedle Katedrály Sv. Ducha z r. 1307. Dům je již od r. 1958 zapsán v Památkovém katalogu Národního Památkového ústavu jako Kulturní památka ČR.

Nemovitost je pronajímána bez vybavení a bez odstupného.

Pokud Vás zaujala možnost jednat o pronájmu tohoto objektu, kontaktujte nás. Poskytneme všechny podklady a zajistíme prohlídku.

Parametry nemovitosti

Cena
34 900 Kč /za měsíc
Aktualizováno
10. 2. 2026
Adresa
Velké náměstí, Hradec Králové
ID
N463
Stavba
Cihlová
Stav objektu
Dobrý
Vybaveno
Ne
Typ objektu
Patrový
Lokalita objektu
Centrum obce
Užitná plocha
290 m2
Třída energetické náročnosti
E - Nehospodárná

Kontaktovat makléře

Máte zájem o tuto nemovistost?

Tímto, v souladu s nařízením Evropského parlamentu a Rady (EU) 2016/679, v platném znění, prohlašuji, že mi je alespoň 16 let a uděluji tak svůj souhlas se zpracováním zadaných údajů (jméno, telefon, e-mail, ip adresa) společnosti B3 Technology, s.r.o., IČ: 07330600, se sídlem Novostavby 126/23, 435 11 Lom (správce dat), za účelem předání dotazu z tohoto formuláře Vámi vybranému inzerentovi a zpětného kontaktování mé osoby. Osobní údaje bude správce zpracovávat manuálně i automaticky přímo prostřednictvím svých zaměstnanců. Informace předané tímto formulářem budou uloženy v databázi správce maximálně po dobu 10 let. Odvolání souhlasu s uložením a zpracováním poskytnutých dat lze e-mailem na info@videobydleni.cz. V případě podezření na neoprávněné použití Vámi poskytnutých údajů máte právo předat podnět k šetření Úřadu pro ochranu osobních údajů. Více informací
Chystáte se prodat nemovitost?
Pomůžeme Vám!

Inzerát si prohlédlo 1 lidí

Prodejce

Call Centrum CAPITAL Trust, a.s .

Call Centrum CAPITAL Trust, a.s .

Hlídací pes

Chcete dostávat emailem podobné nabídky pronájmu komerčních nemovitostí v Hradci Králové?

Podobné nemovitosti


Nevyhovuje Vám typ nemovitosti? Podívejte se na jiné kategorie komerčních.


Vybrané články z našeho blogu