Prodej rodinného domu, Vodice, Chorvatsko, 150 m2 (ID: 4177400)

Vodice

675 000 € /za nemovitost
Prémioví partneři

Informace k domu

V nové rezidenční zóně města Vodice byla zahájena výstavba moderního projektu tří luxusních řadových vil, které spojují atraktivní architekturu, soukromí a komfortní bydlení u moře. Lokalita na mírné vyvýšenině nabízí otevřené výhledy na moře a okolí, přičemž pláž je vzdálena pouhých 800 metrů a centrum města 1 200 metrů. Tato kombinace klidného prostředí a dostupnosti služeb vytváří ideální podmínky pro celoroční bydlení i investici s vysokým potenciálem pronájmu.

Každá vila disponuje vlastním bazénem, upravenou a oplocenou zahradou a soukromým parkováním. Projekt je navržen s důrazem na kvalitu provedení a dlouhodobou hodnotu. Použity budou prémiové materiály a moderní technologie včetně 10 cm zateplené fasády, bezpečnostních a protipožárních vstupních dveří, hliníkových oken v antracitové barvě, velkoformátových posuvných stěn se skly Sun Gard s ochranou proti slunci, elektrických rolet, integrovaných sítí proti hmyzu, podlahového vytápění s tepelnými čerpadly, klimatizace ve všech místnostech, kvalitních podlahových krytin, moderního sanitárního vybavení, skleněných zábradlí a kamerového systému. Předpokládaný termín dokončení je listopad 2026.

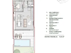
Vila S1 má celkovou čistou užitnou plochu 168,08 m² a zahrnuje obytnou část 137,06 m², bazén 15 m², dvůr 79,32 m² a parkovací plochu 32,35 m². Dispozice je řešena do dvou podlaží. Přízemí nabízí vstup, ložnici, koupelnu a otevřený obývací prostor s kuchyní a jídelnou se vstupem na krytou terasu a k vyhřívanému bazénu. V patře se nachází hlavní ložnice s vlastní koupelnou, šatnou a krytou terasou, další ložnice a koupelna. Cena činí 675 000 eur.

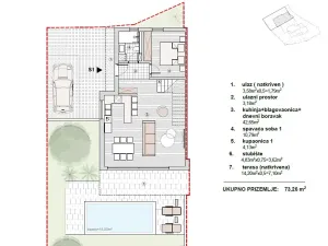
Vila S2 disponuje celkovou plochou 193,67 m² a třemi podlažími včetně střešní terasy s panoramatickým výhledem na moře. Střešní prostor je připraven pro instalaci vířivky a vytvoření relaxační zóny. Cena činí 793 750 €eur.

Vila S3 nabízí 204,04 m² celkové plochy a rovněž střešní terasu s výhledem na moře. Větší zahrada a prostornější dispozice poskytují ještě vyšší míru komfortu a soukromí. Cena činí 825 000 eur.

Kromě toho jsou domy osvobozeny od 3% daně z převodu nemovitostí, což znamená další finanční úsporu.

Vodice patří mezi nejvyhledávanější destinace střední Dalmácie. Nabízí upravené pláže, moderní marinu, restaurace, kavárny i celoroční infrastrukturu. Blízkost Šibeniku a národních parků zvyšuje atraktivitu oblasti nejen pro rekreaci, ale i jako stabilní investici. Nemovitosti v této lokalitě si dlouhodobě drží hodnotu a představují jistotu v segmentu prémiového bydlení u moře.

Všechny údaje uvedené v tomto inzerátu slouží pouze k informačním účelům. Před jakýmkoli rozhodnutím nebo jednáním založeným na těchto informacích je nutné všechny údaje ověřit v naší realitní kanceláři.

Parametry domu

Cena
675 000 € /za nemovitost
Aktualizováno
10. 2. 2026
Adresa
Vodice
ID
F23580
Stavba
Cihlová
Stav objektu
Ve výstavbě
Vybaveno
Částečně
Druh objektu
Řadový
Lokalita objektu
Klidná část obce
Užitná plocha
150 m2
Zastavěná plocha
85 m2
Podlahová plocha
150 m2
Plocha pozemku
150 m2
Elektřina
230V
Odpad
Veřejná kanalizace, ČOV pro celý objekt
Topení
Lokální elektrické
Telekomunikace
Internet
Doprava
Dálnice, Silnice, Autobus
Voda
Místní zdroj vody
Parkování
Bazén

Kontaktovat makléře

Realitní kancelář

Moje nemovitost u moře

Bubenská 122/20, Praha, Holešovice

Chystáte se prodat nemovitost?
Pomůžeme Vám!

Máte zájem o tento dům?

Tímto, v souladu s nařízením Evropského parlamentu a Rady (EU) 2016/679, v platném znění, prohlašuji, že mi je alespoň 16 let a uděluji tak svůj souhlas se zpracováním zadaných údajů (jméno, telefon, e-mail, ip adresa) společnosti B3 Technology, s.r.o., IČ: 07330600, se sídlem Novostavby 126/23, 435 11 Lom (správce dat), za účelem předání dotazu z tohoto formuláře Vámi vybranému inzerentovi a zpětného kontaktování mé osoby. Osobní údaje bude správce zpracovávat manuálně i automaticky přímo prostřednictvím svých zaměstnanců. Informace předané tímto formulářem budou uloženy v databázi správce maximálně po dobu 10 let. Odvolání souhlasu s uložením a zpracováním poskytnutých dat lze e-mailem na info@videobydleni.cz. V případě podezření na neoprávněné použití Vámi poskytnutých údajů máte právo předat podnět k šetření Úřadu pro ochranu osobních údajů. Více informací
Chystáte se prodat nemovitost?
Pomůžeme Vám!

Inzerát si prohlédlo 1 lidí

Prodejce

Nikša Marinkovič

Nikša Marinkovič

Hlídací pes

Chcete dostávat emailem podobné nabídky prodeje rodinných domů?

Podobné nemovitosti


Nevyhovuje Vám typ domu? Podívejte se na jiné kategorie domů.


Vybrané články z našeho blogu