Prodej rodinného domu, Horní Moštěnice, Havlíčkova, 350 m2 (ID: 4177416)

Havlíčkova, Horní Moštěnice

Cena na vyžádání /za nemovitost Získejte výhodnou HYPOTÉKU

(cena u makléře)

Prémioví partneři v Horní Moštěnici

Informace k domu

NOVÁ CENA! Dům, který je reálně dělitelný až na 3 samostatné bytové jednotky.

Hledáte prostorný, technicky kvalitní dům, který nabízí okamžité bydlení, možnost pronájmu i podnikání, a to vše s nízkými provozními náklady?
Pak je tento dům v obci Horní Moštěnice přesně pro vás.

Základní informace
• vícegenerační rodinný dům
• užitná plocha cca 350 m²
• pozemek cca 781 m²
• slepá ulice – klid, soukromí, minimum provozu
• energetická náročnost B – velmi úsporná
• dům po rozsáhlé rekonstrukci

Dispozice – hlavní konkurenční výhoda
Dům je reálně dělitelný až na 3 samostatné bytové jednotky, případně ideální pro kombinaci bydlení + podnikání.
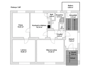
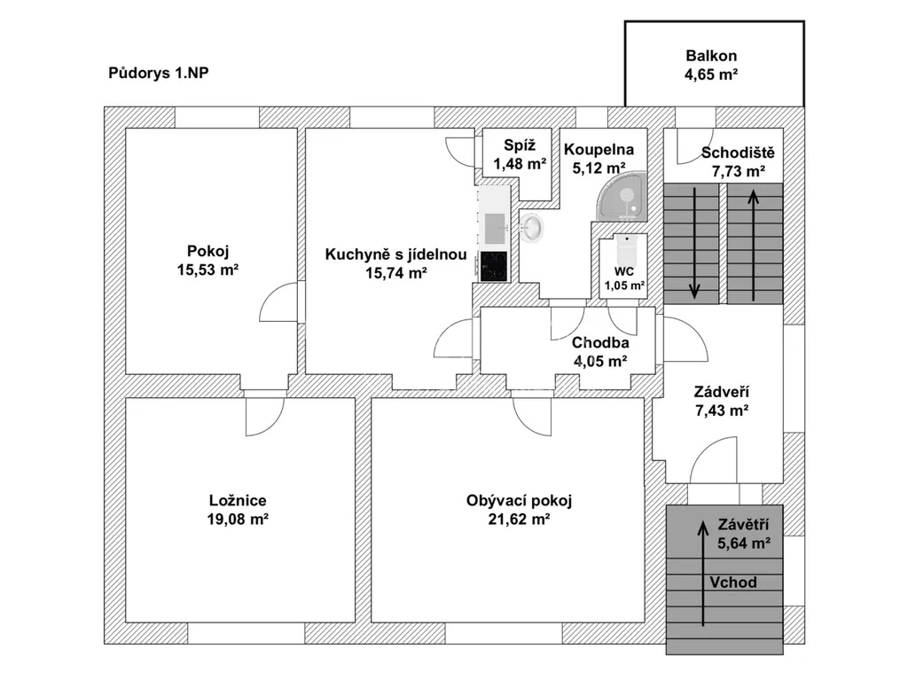
Přízemí – byt 3+1
• kuchyně se špajzem
• tři obytné pokoje
• koupelna se sprchovým koutem
• samostatné WC

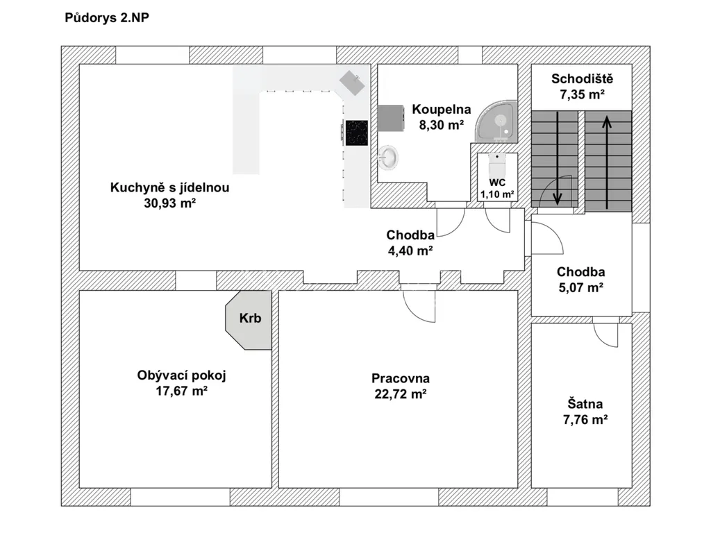
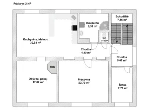
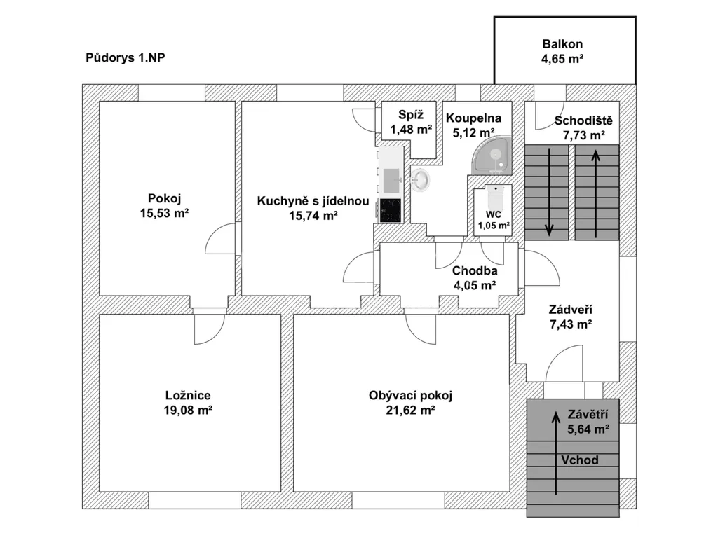
1. patro – byt 3+kk
• prostorná kuchyně s jídelnou
• obývací pokoj s krbem
• šatna
• koupelna se sprchovým koutem
• samostatné WC

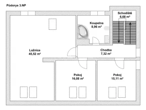
Podkroví – samostatná bytová jednotka / mezonet
• dva samostatné pokoje
• plus velký pokoj s přípravou na kuchyňský kout
• koupelna s vanou, wc

Ideální řešení pro:
• vícegenerační bydlení
• samostatný pronájem bytů
• kanceláře, služby
• sídlo firmy s bydlením

Technický stav a vybavení
• kompletní rekonstrukce rozvodů (elektřina, voda, odpady)
• tepelné čerpadlo (2023)
• fotovoltaika (2023)
• zateplená fasáda (12–15 cm)
• masivní zdivo cca 50 cm
• zateplené sklepy i štíty
• pálená střešní krytina Tondach
• plastová okna s dvojskly
• internet + datové rozvody v každé místnosti
Výsledkem jsou velmi nízké provozní náklady, a to i vzhledem k velikosti domu.

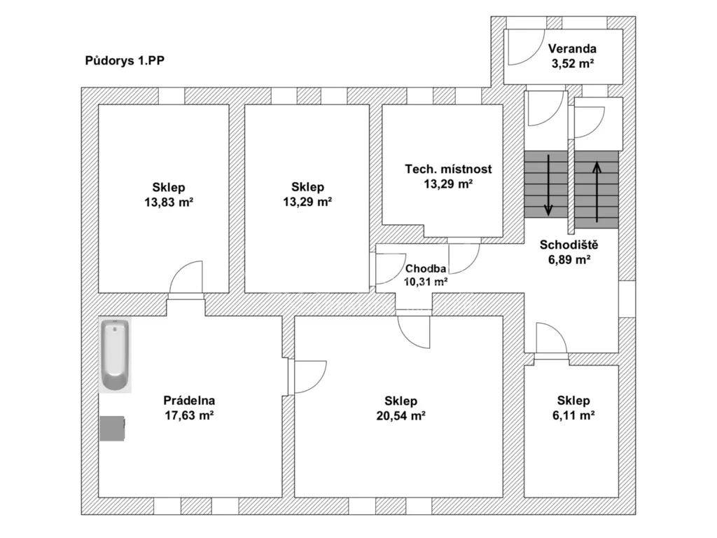
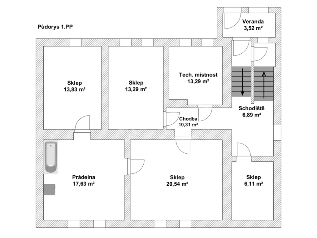
Sklep a hospodářské zázemí
• sklepní prostory cca 100 m²
• technická místnost
• prádelna
• sklad
• výborné zázemí pro provoz domu i podnikání
Díky velkorysé ploše se zde navíc přímo nabízí možnost vybudování domácí posilovny nebo wellness zóny.

Exteriér a pozemek
• uzavřený dvůr – maximální soukromí
• garáž
• sklad a hospodářská místnost
• zahrada 258m2
• bezproblémové parkování přímo na pozemku

Lokalita
• plná občanská vybavenost v obci
• školka, škola, lékař, obchody
• vlak, autobus i MHD v docházkové vzdálenosti
• Přerov pár minut jízdy, dobrá dostupnost z Olomouce – a s novou dálnicí ještě lepší

Potenciál
• k rodinnému bydlení
• možnost samostatného pronájmu jednotlivých bytů
• vhodné pro investory, podnikatele i kombinaci bydlení + příjem
• energetická třída B = dlouhodobě udržitelný provoz

Velký, energeticky úsporný vícegenerační dům po rekonstrukci, který nabízí okamžité bydlení, silný investiční potenciál a flexibilní využití v klidné lokalitě.
V případě zájmu o více informací, příp. o prohlídku mne prosím kontaktujte. Cena na požádání.

Parametry domu

Cena
Cena na vyžádání Spočítat hypotéku
Poznámka k ceně
cena u makléře
Aktualizováno
18. 3. 2026
Adresa
Havlíčkova, Horní Moštěnice
ID
18734
Stavba
Cihlová
Stav objektu
Velmi dobrý
Typ objektu
Patrový
Druh objektu
Řadový
Užitná plocha
350 m2
Zastavěná plocha
148 m2
Podlahová plocha
450 m2
Plocha pozemku
781 m2
Plocha zahrady
258 m2
Třída energetické náročnosti
B - Velmi úsporná
Plyn
Plynovod
Odpad
Veřejná kanalizace
Komunikace
Betonová, Dlážděná
Telekomunikace
Internet
Doprava
Vlak, Dálnice, Silnice, Autobus
Voda
Vodovod, Studna
Garáž
Sklep
Převod do OV

Kontaktovat makléře

Realitní kancelář

Logo QARA, s.r.o.

QARA, s.r.o.

Šafaříkova 201/17, Praha

Chystáte se prodat nemovitost?
Pomůžeme Vám!

Máte zájem o tento dům?

Tímto, v souladu s nařízením Evropského parlamentu a Rady (EU) 2016/679, v platném znění, prohlašuji, že mi je alespoň 16 let a uděluji tak svůj souhlas se zpracováním zadaných údajů (jméno, telefon, e-mail, ip adresa) společnosti B3 Technology, s.r.o., IČ: 07330600, se sídlem Novostavby 126/23, 435 11 Lom (správce dat), za účelem předání dotazu z tohoto formuláře Vámi vybranému inzerentovi a zpětného kontaktování mé osoby. Osobní údaje bude správce zpracovávat manuálně i automaticky přímo prostřednictvím svých zaměstnanců. Informace předané tímto formulářem budou uloženy v databázi správce maximálně po dobu 10 let. Odvolání souhlasu s uložením a zpracováním poskytnutých dat lze e-mailem na info@videobydleni.cz. V případě podezření na neoprávněné použití Vámi poskytnutých údajů máte právo předat podnět k šetření Úřadu pro ochranu osobních údajů. Více informací
Chystáte se prodat nemovitost?
Pomůžeme Vám!

Inzerát si prohlédlo 6 lidí

Prodejce

Eva Andrášiová

Eva Andrášiová

Hlídací pes

Chcete dostávat emailem podobné nabídky prodeje rodinných domů v Horní Moštěnici?

Podobné nemovitosti


Nevyhovuje Vám typ domu? Podívejte se na jiné kategorie domů.


Vybrané články z našeho blogu