Pronájem bytu 2+kk, Praha - Modřany, Mezi vodami, 63 m2 (ID: 4177884)

Mezi Vodami, Praha, Modřany

26 000 Kč /za měsíc Získejte výhodnou HYPOTÉKU
Prémioví partneři v Praze 4

Stěhovací služby

Výkup a prodej starého nábytku

Informace k bytu

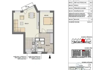
Nabízíme k pronájmu slunný a prostorný byt o dispozici 2+kk a celkové ploše 63 m², který se nachází v oblíbené lokalitě Praha 4 – Modřany.
Byt se skládá z předsíně, ložnice, koupelny s vanou a prostorného, světlého obývacího pokoje s kuchyňským koutem, ze kterého je vstup na balkonek. Díky své orientaci je byt velmi světlý a vzdušný.
Velkou výhodou je poloha domu přímo u tramvajové zastávky s rychlou a přímou dostupností do centra města.
K bytu náleží vyhrazené parkovací stání.
Byt se pronajímá bez vybavení a je k dispozici od 1. 4. 2026.
Nájemné činí 26 000 Kč měsíčně, zálohy na služby jsou ve výši 3 500 Kč měsíčně, přičemž elektřina se převádí na nájemníka.
Požadována je vratná kauce ve výši jednoho měsíčního nájmu a provize rovněž ve výši jednoho měsíčního nájmu.

Parametry bytu

Cena
26 000 Kč /za měsíc
Aktualizováno
10. 2. 2026
Adresa
Mezi Vodami, Praha, Modřany
ID
0115
Stavba
Cihlová
Stav objektu
Velmi dobrý
Patro
6. z 6
Vlastnictví
Osobní
Užitná plocha
63 m2
Třída energetické náročnosti
B - Velmi úsporná
Balkon
Parkování

Kontaktovat makléře

Máte zájem o tento byt?

Tímto, v souladu s nařízením Evropského parlamentu a Rady (EU) 2016/679, v platném znění, prohlašuji, že mi je alespoň 16 let a uděluji tak svůj souhlas se zpracováním zadaných údajů (jméno, telefon, e-mail, ip adresa) společnosti B3 Technology, s.r.o., IČ: 07330600, se sídlem Novostavby 126/23, 435 11 Lom (správce dat), za účelem předání dotazu z tohoto formuláře Vámi vybranému inzerentovi a zpětného kontaktování mé osoby. Osobní údaje bude správce zpracovávat manuálně i automaticky přímo prostřednictvím svých zaměstnanců. Informace předané tímto formulářem budou uloženy v databázi správce maximálně po dobu 10 let. Odvolání souhlasu s uložením a zpracováním poskytnutých dat lze e-mailem na info@videobydleni.cz. V případě podezření na neoprávněné použití Vámi poskytnutých údajů máte právo předat podnět k šetření Úřadu pro ochranu osobních údajů. Více informací
Chystáte se prodat nemovitost?
Pomůžeme Vám!

Inzerát si prohlédlo 1 lidí

Prodejce

Radek Procyk

Radek Procyk

Hlídací pes

Chcete dostávat emailem podobné nabídky pronájmu bytů 2+kk v Praze 4?

Podobné nemovitosti


Nevyhovuje Vám typ bytu? Podívejte se na jiné kategorie bytů.


Vybrané články z našeho blogu