Dražba výrobních prostor, Pardubice, 5239 m2

Pardubice, Semtín

20 230 000 Kč /za nemovitost Získejte výhodnou HYPOTÉKU
Prémioví partneři v Pardubicích

Informace k nemovitosti

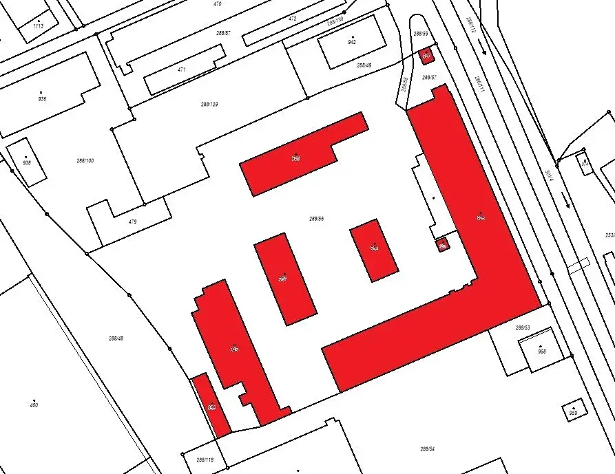
VEŘEJNÁ DRAŽBA – předmětem dražby je soubor 8 budov (staveb) ve výrobně skladovacím areálu; podlahová plocha 5239 m2, část Semtín, Pardubice

Veškeré podrobné informace vč. popisů, informačního memoranda, znaleckého posudku a dalších jsou k dispozici na www.verejnedrazby.cz/A7842, kde tato elektronická dražba probíhá.

Budovy (stavby) jsou situovány v areálu průmyslové zóny, kde dominantní část tvoří areál společnosti Synthesia, a.s. Stavby jsou umístěny na pozemcích ve vlastnictví společnosti Synthesia, a.s. a tvoří relativně samostatný soubor uvnitř průmyslové zóny, který ale není od okolních staveb v areálu nijak oddělen. Lokalita se nachází v jihozápadní části průmyslové zóny, nedaleko od oblouku komunikace č. 211, která v této části vytváří hranici průmyslové zóny. Komunikace je vedena z Pardubic severozápadním směrem do města Lázně Bohdaneč a následně do Chlumce nad Cidlinou.

Předmět dražby:
Předmětem veřejné dražby jsou věci nemovité se všemi součástmi a příslušenstvím, a to:

- stavba v části obce Semtín č.p. 273, výroba, stavba stojí na pozemku parc.č. St. 946, zastavěná plocha a nádvoří (LV 312),
- stavba bez čp/če, výroba, stavba stojí na pozemku parc.č. St. 947, zastavěná plocha a nádvoří (LV 312),
- stavba bez čp/če, výroba, stavba stojí na pozemku parc.č. St. 948, zastavěná plocha a nádvoří (LV 312),
- stavba bez čp/če, výroba, stavba stojí na pozemku parc.č. St. 949, zastavěná plocha a nádvoří (LV 312),
- stavba bez čp/če, výroba, stavba stojí na pozemku parc.č. St. 951, zastavěná plocha a nádvoří (LV 312),
- stavba bez čp/če, výroba, stavba stojí na pozemku parc.č. St. 953, zastavěná plocha a nádvoří (LV 312),
- stavba bez čp/če, výroba, stavba stojí na pozemku parc.č. St. 955, zastavěná plocha a nádvoří (LV 312),
- stavba bez čp/če, výroba, stavba stojí na pozemku parc.č. St. 956, zastavěná plocha a nádvoří (LV 312)
to vše zapsáno v katastru nemovitostí na listu vlastnictví č. 551 v katastrálním území Semtín, obec Pardubice, u Katastrálního úřadu pro Pardubický kraj, katastrální pracoviště Pardubice (veškeré shora uvedené nemovité věci se všemi součástmi a příslušenstvím.

Navrhovatel upozorňuje, že k předmětu veřejné dražby má ve smyslu ust. § 3056 odst. 1 občanského zákoníku zákonné předkupní právo vlastník pozemků parc.č. St. 946, St. 947, St. 948, St. 949, St. 951, St. 953, St. 955 a St. 956, zapsaných na LV č. 312 pro k.ú. Semtín, obec Pardubice, neboť na těchto pozemcích stojí stavby, jež tvoří Předmět veřejné dražby, přičemž tyto stavby nejsou součástí citovaných pozemků, zapsaných na LV č. 312 pro k.ú. Semtín, obec Pardubice.

Datum zahájení veřejné dražby: 15.4.2026
Čas zahájení veřejné dražby: 13:00 hod.

Datum ukončení veřejné dražby: 15.4.2026
Čas ukončení veřejné dražby: 14:00 hod.
(automatické prodlužování o 3 min. v případě příhozu před stanoveným koncem dražby - viz. dražební vyhláška)

Vyvolávací cena: 20.230.000,- Kč (slovy: dvacet milionů dvě stě třicet tisíc korun českých)
Obvyklá cena předmětu veřejné dražby: 28.900.000,- Kč (slovy dvacet osm milionů devět set tisíc korun českých)

Výše dražební jistoty: 1.000.000,- Kč (slovy: jeden milion korun českých)
Minimální příhoz: 10.000,- Kč (slovy: deset tisíc korun českých).

Parametry nemovitosti

Cena
20 230 000 Kč /za nemovitost
Aktualizováno
27. 3. 2026
Adresa
Pardubice, Semtín
ID
53335
Stavba
Cihlová
Stav objektu
Dobrý
Užitná plocha
5239 m2
Třída energetické náročnosti
G - Mimořádně nehospodárná

Kontaktovat makléře

Realitní kancelář

Gaute realitní společnost

Lidická 2006/26, Brno, Černá Pole

Chystáte se prodat nemovitost?
Pomůžeme Vám!

Máte zájem o tuto nemovistost?

Tímto, v souladu s nařízením Evropského parlamentu a Rady (EU) 2016/679, v platném znění, prohlašuji, že mi je alespoň 16 let a uděluji tak svůj souhlas se zpracováním zadaných údajů (jméno, telefon, e-mail, ip adresa) společnosti B3 Technology, s.r.o., IČ: 07330600, se sídlem Novostavby 126/23, 435 11 Lom (správce dat), za účelem předání dotazu z tohoto formuláře Vámi vybranému inzerentovi a zpětného kontaktování mé osoby. Osobní údaje bude správce zpracovávat manuálně i automaticky přímo prostřednictvím svých zaměstnanců. Informace předané tímto formulářem budou uloženy v databázi správce maximálně po dobu 10 let. Odvolání souhlasu s uložením a zpracováním poskytnutých dat lze e-mailem na info@videobydleni.cz. V případě podezření na neoprávněné použití Vámi poskytnutých údajů máte právo předat podnět k šetření Úřadu pro ochranu osobních údajů. Více informací
Chystáte se prodat nemovitost?
Pomůžeme Vám!

Inzerát si prohlédlo 12 lidí

Prodejce

Petr Charvát

Petr Charvát

Hlídací pes

Chcete dostávat emailem podobné nabídky dražby výrobních prostor v Pardubicích?

Podobné nemovitosti


Nevyhovuje Vám typ nemovitosti? Podívejte se na jiné kategorie komerčních.


Vybrané články z našeho blogu