Prodej rodinného domu, Třebíč - Nové Dvory, Tkalcovská, 140 m2

Tkalcovská, Třebíč, Nové Dvory

Rezervováno
6 350 000 Kč /za nemovitost HYPOTÉKA od 28 381 Kč /za měsíc

(cena včetně provize RK)

Prémioví partneři v Třebíči

Informace k domu

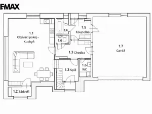
Ve výhradním zastoupení nabízíme k prodeji rodinný cihlový dům v řadové zástavbě, situovaný v klidné části Třebíče na ulici Tkalcovská, v docházkové vzdálenosti do centra města.
Nemovitost disponuje zastavěnou plochou 178 m² včetně menšího uzavřeného dvora a nabízí praktickou dispozici 5+kk s prostornou garáží, která poskytuje komfortní parkování i dostatek úložného prostoru.
Dům je postaven z cihelného zdiva, stropy jsou trámové, střecha sedlová s pálenou taškou. V rámci úprav byla provedena výměna oken, oprava a nový nátěr vnějších omítek. Rozvody vody a odpadů jsou v plastu, elektroinstalace v mědi.
Interiér nabízí dvě koupelny a kuchyňskou linku včetně spotřebičů. Vytápění je řešeno elektricky, přičemž plynová přípojka se nachází u domu. Alternativně je možné využít lokální vytápění tuhými palivy prostřednictvím krbu.
Velkou výhodou je lokalita s kompletní občanskou vybaveností v bezprostředním okolí – školy, školky, obchody, zdravotnická zařízení i zastávky MHD.
Veškerá projektová dokumentace je k dispozici k nahlédnutí při osobní prohlídce.
V případě zájmu Vám rádi zajistíme kompletní realitní a finanční servis včetně výhodného financování této nemovitosti.

Parametry domu

Stav
Rezervováno
Cena
6 350 000 Kč /za nemovitost Spočítat hypotéku
Poznámka k ceně
cena včetně provize RK
Aktualizováno
5. 3. 2026
Adresa
Tkalcovská, Třebíč, Nové Dvory
ID
143-NP07281
Stavba
Cihlová
Stav objektu
Dobrý
Vybaveno
Částečně
Typ objektu
Patrový
Druh objektu
Řadový
Užitná plocha
140 m2
Zastavěná plocha
178 m2
Plocha pozemku
178 m2
Plyn
Plynovod
Odpad
Veřejná kanalizace
Voda
Vodovod
Převod do OV

Kontaktovat makléře

Realitní kancelář

Logo RE/MAX A-City

RE/MAX A-City

Březinova 4690/144, Jihlava

Chystáte se prodat nemovitost?
Pomůžeme Vám!

Máte zájem o tento dům?

Tímto, v souladu s nařízením Evropského parlamentu a Rady (EU) 2016/679, v platném znění, prohlašuji, že mi je alespoň 16 let a uděluji tak svůj souhlas se zpracováním zadaných údajů (jméno, telefon, e-mail, ip adresa) společnosti B3 Technology, s.r.o., IČ: 07330600, se sídlem Novostavby 126/23, 435 11 Lom (správce dat), za účelem předání dotazu z tohoto formuláře Vámi vybranému inzerentovi a zpětného kontaktování mé osoby. Osobní údaje bude správce zpracovávat manuálně i automaticky přímo prostřednictvím svých zaměstnanců. Informace předané tímto formulářem budou uloženy v databázi správce maximálně po dobu 10 let. Odvolání souhlasu s uložením a zpracováním poskytnutých dat lze e-mailem na info@videobydleni.cz. V případě podezření na neoprávněné použití Vámi poskytnutých údajů máte právo předat podnět k šetření Úřadu pro ochranu osobních údajů. Více informací
Chystáte se prodat nemovitost?
Pomůžeme Vám!

Inzerát si prohlédlo 9 lidí

Prodejce

David Chaloupka

David Chaloupka

Hlídací pes

Chcete dostávat emailem podobné nabídky prodeje rodinných domů v Třebíči?

Podobné nemovitosti


Nevyhovuje Vám typ domu? Podívejte se na jiné kategorie domů.


Vybrané články z našeho blogu