Pronájem kanceláře, Jihlava, Masarykovo náměstí, 73 m2

Masarykovo náměstí, Jihlava

11 163 Kč /za měsíc Získejte výhodnou HYPOTÉKU
Prémioví partneři v Jihlavě

Pojištění a finance

Informace k nemovitosti

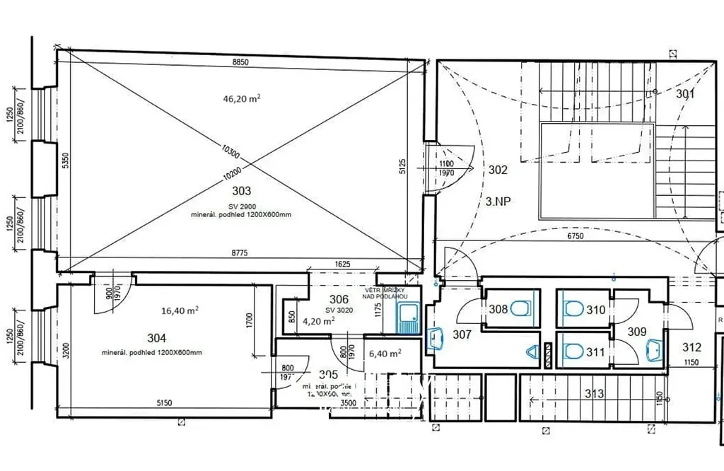
Nabízíme k pronájmu moderní kancelářské prostory o celkové výměře 73 m², nacházející se ve 2. nadzemním podlaží administrativní budovy přímo v centru Jihlavy.

Dispozice prostor:
- Hlavní otevřená kancelář (46,20m2)
- Samostatná administrativní místnost vhodná pro jednání či zázemí týmu (16,40m2)
- Samostatná místnost (6,40m2)
- kuchyňka pro zázemí zaměstnanců (4,20m2)

Technický stav a vybavení:
- Reprezentativní prostory vhodné pro kancelářskou či administrativní činnost
- Nová kvalitní okna zajišťující dostatek světla a zvukovou izolaci

Lokalita a dostupnost:
- Budova se nachází ve velmi frekventované části města s výbornou občanskou vybaveností
- V blízkosti se nachází bankovní domy a kompletní služby
- Parkování přímo před budovou je zajištěno

Ideální pro:
- Firmy hledající dobře dostupné a profesionální zázemí v centru města

Cena nájmu: 11 163,- Kč (+ DPH v případě, že nájemce je plátcem)
Záloha za služby: 8 630,-Kč včetně DPH v zákonné výši (obsahuje: záloha - elektřina, záloha - plyn, záloha - vodné -stočné, srážkové vody, záloha - úklid společných prostor, záloha - odvoz komunálního odpadu). Zálohy za služby jsou napočítány na 3. osoby, v případě jiného počtu dochází k přepočtu
Kauce: 0,-Kč. Místo kauce je požadována platba nájemného + zálohy za služby na daný Q + násl. Q.
Platby nájemného: 3M předem


V případě zájmu rádi poskytneme další informace nebo domluvíme prohlídku prostor

Parametry nemovitosti

Cena
11 163 Kč /za měsíc
Aktualizováno
25. 5. 2026
Adresa
Masarykovo náměstí, Jihlava
ID
00772
Stavba
Cihlová
Stav objektu
Velmi dobrý
Lokalita objektu
Centrum obce
Užitná plocha
73 m2
Třída energetické náročnosti
G - Mimořádně nehospodárná
Elektřina
120V
Plyn
Plynovod
Odpad
Veřejná kanalizace
Doprava
Silnice, MHD, Autobus
Voda
Vodovod
Výtah

Kontaktovat makléře

Máte zájem o tuto nemovistost?

Tímto, v souladu s nařízením Evropského parlamentu a Rady (EU) 2016/679, v platném znění, prohlašuji, že mi je alespoň 16 let a uděluji tak svůj souhlas se zpracováním zadaných údajů (jméno, telefon, e-mail, ip adresa) společnosti B3 Technology, s.r.o., IČ: 07330600, se sídlem Novostavby 126/23, 435 11 Lom (správce dat), za účelem předání dotazu z tohoto formuláře Vámi vybranému inzerentovi a zpětného kontaktování mé osoby. Osobní údaje bude správce zpracovávat manuálně i automaticky přímo prostřednictvím svých zaměstnanců. Informace předané tímto formulářem budou uloženy v databázi správce maximálně po dobu 10 let. Odvolání souhlasu s uložením a zpracováním poskytnutých dat lze e-mailem na info@videobydleni.cz. V případě podezření na neoprávněné použití Vámi poskytnutých údajů máte právo předat podnět k šetření Úřadu pro ochranu osobních údajů. Více informací
Chystáte se prodat nemovitost?
Pomůžeme Vám!
Theleadway banner

Inzerát si prohlédlo 11 lidí

Prodejce

Ing. Pavel Vetchý

Ing. Pavel Vetchý

Hlídací pes

Chcete dostávat emailem podobné nabídky pronájmu kanceláří v Jihlavě?

Podobné nemovitosti


Nevyhovuje Vám typ nemovitosti? Podívejte se na jiné kategorie komerčních.


Vybrané články z našeho blogu