Prodej bytu 3+1, Strážnice, Kovářská, 77 m2 (ID: 4178510)

Kovářská, Strážnice

4 250 000 Kč /za nemovitost HYPOTÉKA od 18 995 Kč /za měsíc
Prémioví partneři v Strážnici

Informace k bytu

Hledáte stylové a praktické bydlení bez nutnosti dalších investic?

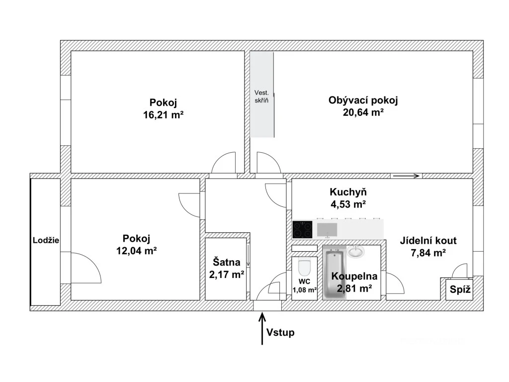
Tento byt o dispozici 3+1 a podlahové ploše 77 m² vás zaujme nejen rekonstrukcí, ale i promyšleným dispozičním řešením a skvělou polohou v přízemí.

Dispozice:
• Vstupní chodba s úložnými prostory (2,7 m²), které zvenku působí jako vestavěná skříň – ideální pro kabáty, boty i domácí potřeby
• Dva neprůchozí pokoje – vhodné jako ložnice, dětský pokoj nebo pracovna
• Obývací pokoj se vstupem jak z kuchyně, tak z chodby – možnost propojit i oddělit podle nálady
• Samostatná kuchyně s nadstandardní kuchyňskou linkou na míru
• Koupelna s vanou
• Samostatné WC
• Balkon – ideální pro ranní kávu nebo posezení na čerstvém vzduchu

Venkovní žaluzie zajišťují soukromí, tlumí hluk i prach z okolí. Byt má zděné jádro a je po kompletní rekonstrukci, stačí se jen nastěhovat. Přízemní umístění potěší jak rodiny s dětmi, tak seniory.

Byt se nachází v klidné části Strážnice s výbornou dostupností a plnou občanskou vybaveností v docházkové vzdálenosti.

Zaujala vás tato nabídka? Zavolejte a domluvte si prohlídku – tento byt vás přesvědčí naživo ještě víc!

Parametry bytu

Cena
4 250 000 Kč /za nemovitost Spočítat hypotéku
Aktualizováno
11. 2. 2026
Adresa
Kovářská, Strážnice
ID
128
Stavba
Panelová
Stav objektu
Velmi dobrý
Patro
1.
Vybaveno
Částečně
Druh objektu
Řadový
Lokalita objektu
Centrum obce
Vlastnictví
Osobní
Užitná plocha
77 m2
Odpad
Veřejná kanalizace
Topení
Ústřední dálkové
Komunikace
Asfaltová
Voda
Vodovod
Topné těleso
Radiátory
Zdroj teplé vody
Centrální dálkový ohřev
Sklep
Lodžie
Výtah

Kontaktovat makléře

Máte zájem o tento byt?

Tímto, v souladu s nařízením Evropského parlamentu a Rady (EU) 2016/679, v platném znění, prohlašuji, že mi je alespoň 16 let a uděluji tak svůj souhlas se zpracováním zadaných údajů (jméno, telefon, e-mail, ip adresa) společnosti B3 Technology, s.r.o., IČ: 07330600, se sídlem Novostavby 126/23, 435 11 Lom (správce dat), za účelem předání dotazu z tohoto formuláře Vámi vybranému inzerentovi a zpětného kontaktování mé osoby. Osobní údaje bude správce zpracovávat manuálně i automaticky přímo prostřednictvím svých zaměstnanců. Informace předané tímto formulářem budou uloženy v databázi správce maximálně po dobu 10 let. Odvolání souhlasu s uložením a zpracováním poskytnutých dat lze e-mailem na info@videobydleni.cz. V případě podezření na neoprávněné použití Vámi poskytnutých údajů máte právo předat podnět k šetření Úřadu pro ochranu osobních údajů. Více informací
Chystáte se prodat nemovitost?
Pomůžeme Vám!

Inzerát si prohlédlo 0 lidí

Prodejce

Pavla Šimková

Pavla Šimková

Hlídací pes

Chcete dostávat emailem podobné nabídky prodeje bytů 3+1 v Strážnici?

Podobné nemovitosti


Nevyhovuje Vám typ bytu? Podívejte se na jiné kategorie bytů.


Vybrané články z našeho blogu